Mercedes-Benz Museum | UNStudio

The 35,000 m² Mercedes-Benz Museum designed by UN Studio and located in Stuttgart, Germany is not a brand new building- in fact I remember being awe struck by its beauty and grace no less than a few years ago- but the ideas and concepts of design worked out in this exhibition for one of the greatest innovators in automobile technologies, are just as pertinent and perhaps more important now- having the benefit of a few years of backing momentum and growing understanding of where architecture and technology are taking us.

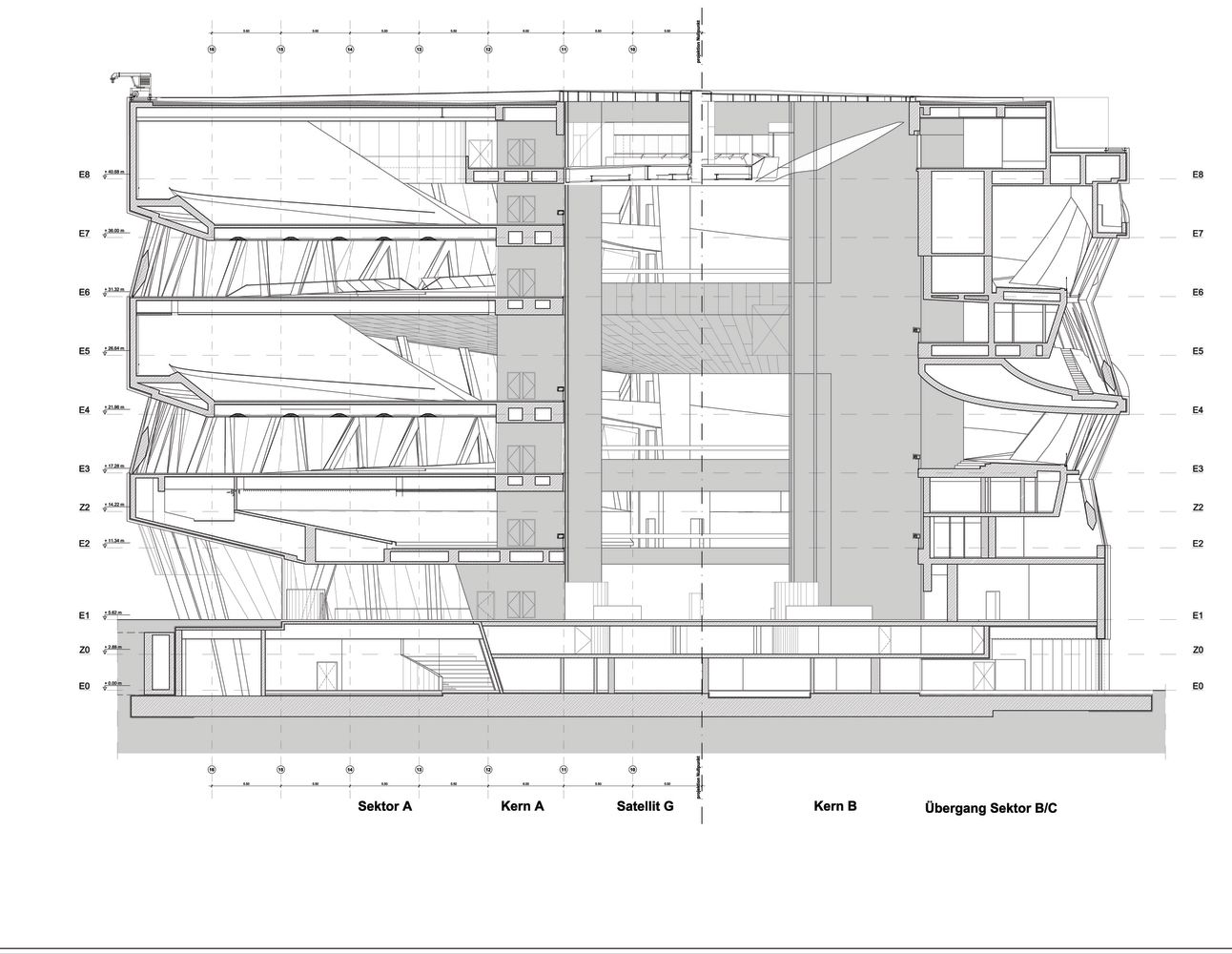
Designed between 2001 and 2006, the museum features exhibition and display spaces, a restaurant, stores, offices and an auditorium. Two helical ascending ramps weave around each other around a central atrium and in the general form of a clover, to connect the spaces within the museum. Out of this spacial configuration comes an (almost- Guggenheim) entirely new typology of building- the ramped building. In fact the building shares some key features with FLW’s Guggenheim. Like the Guggenheim, the experience begins for visitors with a ride on a lift to the top floor. From here occupants can choose one of two paths (the Collections tour or the Legend tour) to descend along. These paths meet and slip past each other on every floor, offering many possible experiences of the museum. The fluid forms and convex walls melding in to one another creates an atmosphere for these tours to move within which speaks very clearly of Mercedes-Benz’s tenacity in the areas of innovation- never standing still or coasting along, but always in flux, growing into something new.

photography by © Eva Bloem

Matt Davis
Show full profile Matt Davis

Matt Davis is a Virginia Tech graduate and one of the founding editors behind Arch2O. Launching the platform in mid‑2012 alongside fellow Hokies, he helped shape its identity as an international hub for design innovation and critical dialogue . With a foundation in architectural education and a passion for uncovering unconventional design approaches, Matt has contributed significantly—both editorially and strategically—to Arch2O’s growth, ensuring that emerging architects, academics, and creatives have a space to question, explore, and elevate the built environment.

Arch2O.com
Logo