Following an international design competition JWA and NADAAA were appointed as architects to design the new Melbourne School of Design building for the University of Melbourne. The University embraced the unusual creative relationship proposed between the two practices as collaborative design partners across all aspects of the project. The project integrates the requirements of both the University’s Property and Campus Services and the Faculty.
The design process has involved regular briefing meetings, workshops and presentations with various faculty user groups, University Committees and Reference groups. The building design responds to the planning principles set out in the 2008 University of Melbourne Parkville Campus Master Plan.
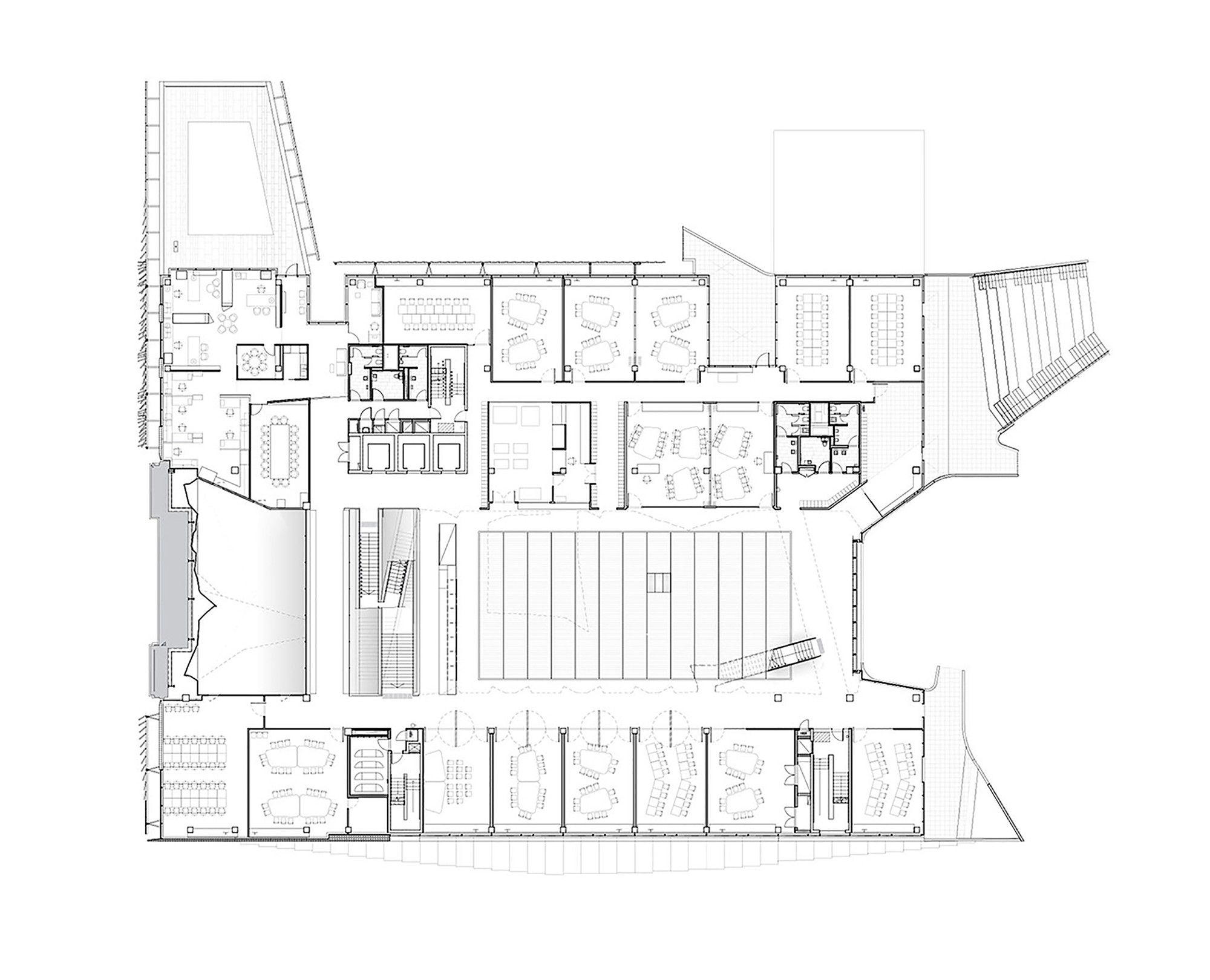
The building design meets its briefed area and budget targets, comprising of 6 levels (basement plus five levels) and incorporates two lecture theatres, workshop, library, two exhibition spaces, cafe, a series of studios over three levels, a studio hall, and a series of associated academic and professional workspaces captured within the briefed 15,772 m2 GFA.
Central to the design is the Studio Hall, a large flexible space that provides for informal occupation over all times of the day. The Studio Hall is enclosed to the west side by the former Bank of New South Wales façade, and to the east side the Studio Hall overlooks the new courtyard. It is spatially book ended at the east side by the heritage façade of the Elisabeth Murdoch building.
The Studio Hall is enclosed by a coffered timber roof that mediates natural daylight and assists natural ventilation. The building has been designed to incorporate a number of innovative structural and services systems that combined with the building’s façade system contribute to achieving the targeted 6 star green star rated building.
Project Info:
Architects: John Wardle Architects , NADAAA
Location: Melbourne VIC, Australia
Architects in Charge: John Wardle, Stefan Mee (JWA), Nader Tehrani (NADAAA)
Area: 15772.0 sqm
Project Year: 2014
Photographs: Peter Bennetts, John Horner, John Gollings
















































