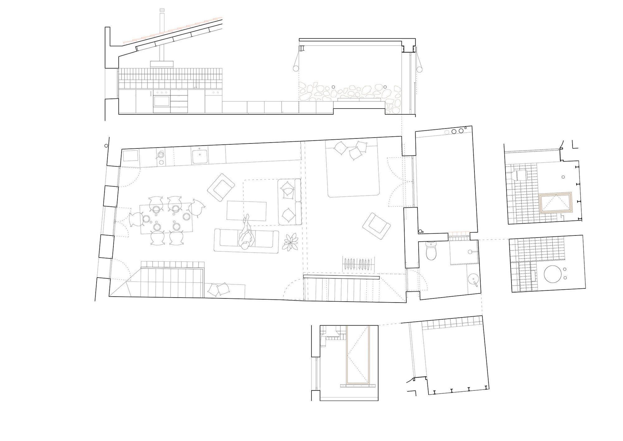
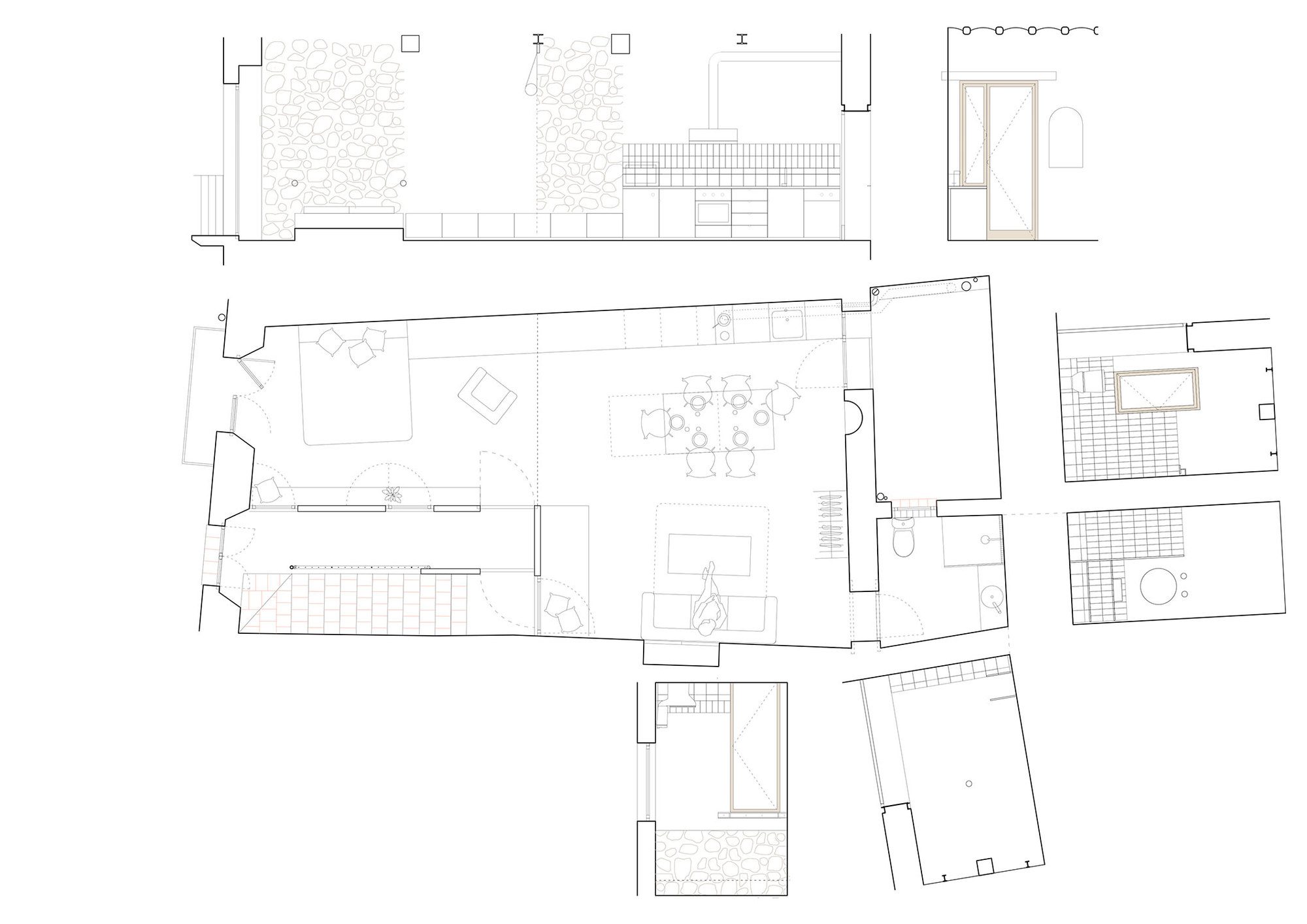
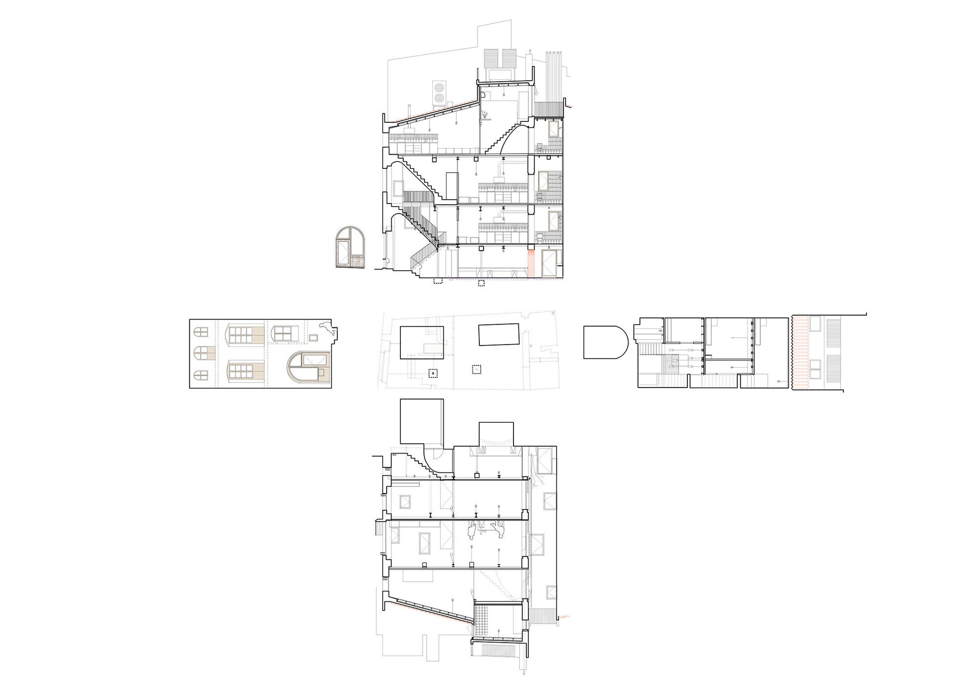
Mediona 13 House is the rehabilitation of one of the numerous uninhabited houses of the historical center of Tarragona. The intervention consists in allowing more flexible use of the space, bringing natural light, and preserving as much as possible the existing construction.
The new gateway allows light to travel through the heart of the house, the inner square that receives its inhabitants and transports them to their private units. The existing courtyard is widened and new windows are opened.
The existing structure is reinforced and the walls are consolidated. Colors that are used in the new structural elements were discovered in the existing walls.
The ‘light blue’ is chosen for the common space, a color traditionally used for hygienic and spiritual reasons in windows, facades and entrances.
Project Info
Architects: NUA arquitectures
Country: Spain, Tarragona
Area: 300 m²
Year: 2021
Photographs: Courtesy ofNUA arquitectures
Team: Lluis Delclòs, Rebeca López
Technical Architect: Jordi Ventura
Sponsors: Noemà Juncosa, Ã’scar MartÃ
Structure: Gemma Humbert
Engineering: Enric Sanz
Phase 1 Construction: Baumester
Phase 2 Construction: Construcciones Silvio












































