Mass Timber Pavillion | Jesús Vassallo
Mass Timber Pavillion, Located within the Rice University campus, the Harris Gully Natural Area is a restored watershed consisting of several microhabitats, from wet savannah to dense forests and shrublands.
Thanks to Harris Gully, and despite being located in the heart of Houston, Rice is one of the most biodiverse universities in the country, with the highest bird species list of any campus in North America. The Laminated Wood Pavilion, an observation platform immersed in the landscape, represents the first step in a long-term plan to manage this ecosystem.
The pavilion itself is an abstract object, conceived and located in the picturesque tradition. Like the ruins of a small temple, it invites and accommodates nature around it. In its simplicity, indeterminacy, and openness, it suggests the lightness that should guide the management of the natural area in the future.
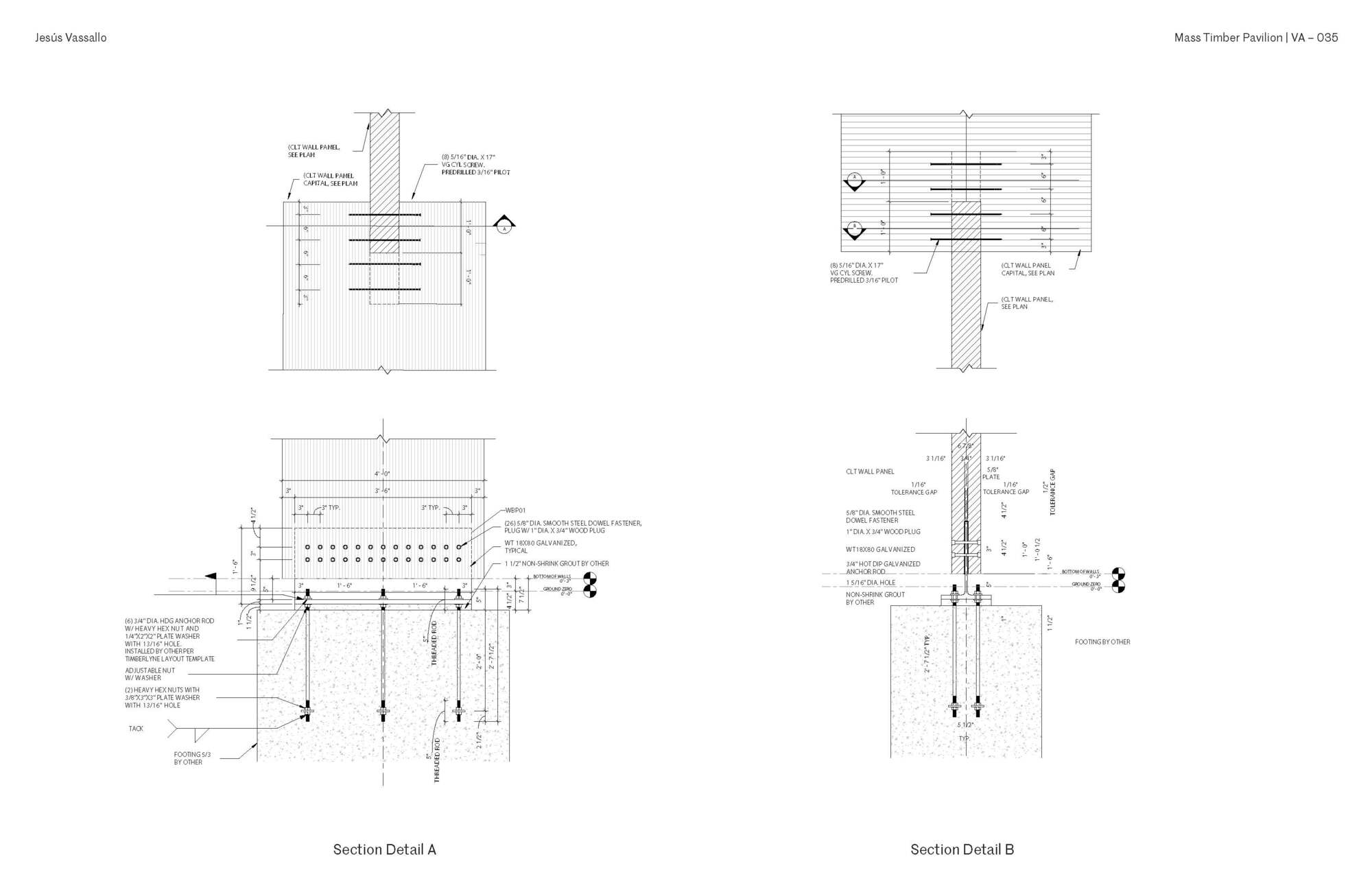
Made of Cross-Laminated Timber (CLT) from local southern pine forests, the pavilion is a negative structure in its carbon use and a test of the possibilities of this sustainable construction technology.
With a didactic design, the building shows the CLT panels in their purest form, as a giant piece of furniture that makes the logic of their assembly evident. The immediate way in which the material is presented underscores its structural versatility, presenting CLT as a forged, pillar, and capital.
The project was designed by Professor Jesus Vassallo’s wood construction seminar at Rice University, with a team consisting of graduate students Pouya Khadem and Lene Sollie in collaboration with structural engineer Tracy Huynh.
Funding for the project was obtained through a federal grant from the United States Forest Service, with additional funds provided by generous donations to the School of Natural Sciences and the Lynn R. Lowrey Arboretum.
Project Info
Architects: Jesús Vassallo
Country: United States, Houston
Area: 100 m²
Year: 2023
Photographs: Brandon Martin
Lead Architect: Jesús Vassallo, Pouya Khadem, Lene Sollie
Madeline Brooks is a Projects Editor at Arch2O, where she has been shaping and refining architectural content since March 2024. With over a decade of experience in editorial work, she has curated, revised, and published an array of projects covering architecture, urbanism, and public space design. A graduate of the Harvard University Graduate School of Design, Madeline brings a strong academic foundation and a discerning editorial eye to each piece she oversees. Since joining Arch2O, she has played a pivotal role in shaping the platform’s editorial direction, with a focus on sustainability, social relevance, and cutting-edge design. Madeline excels at translating complex architectural ideas into clear, engaging stories that resonate with both industry professionals and general readers. She works closely with architects, designers, and global contributors to ensure every project is presented with clarity, depth, and compelling visual narrative. Her editorial leadership continues to elevate Arch2O’s role in global architectural dialogue.





























