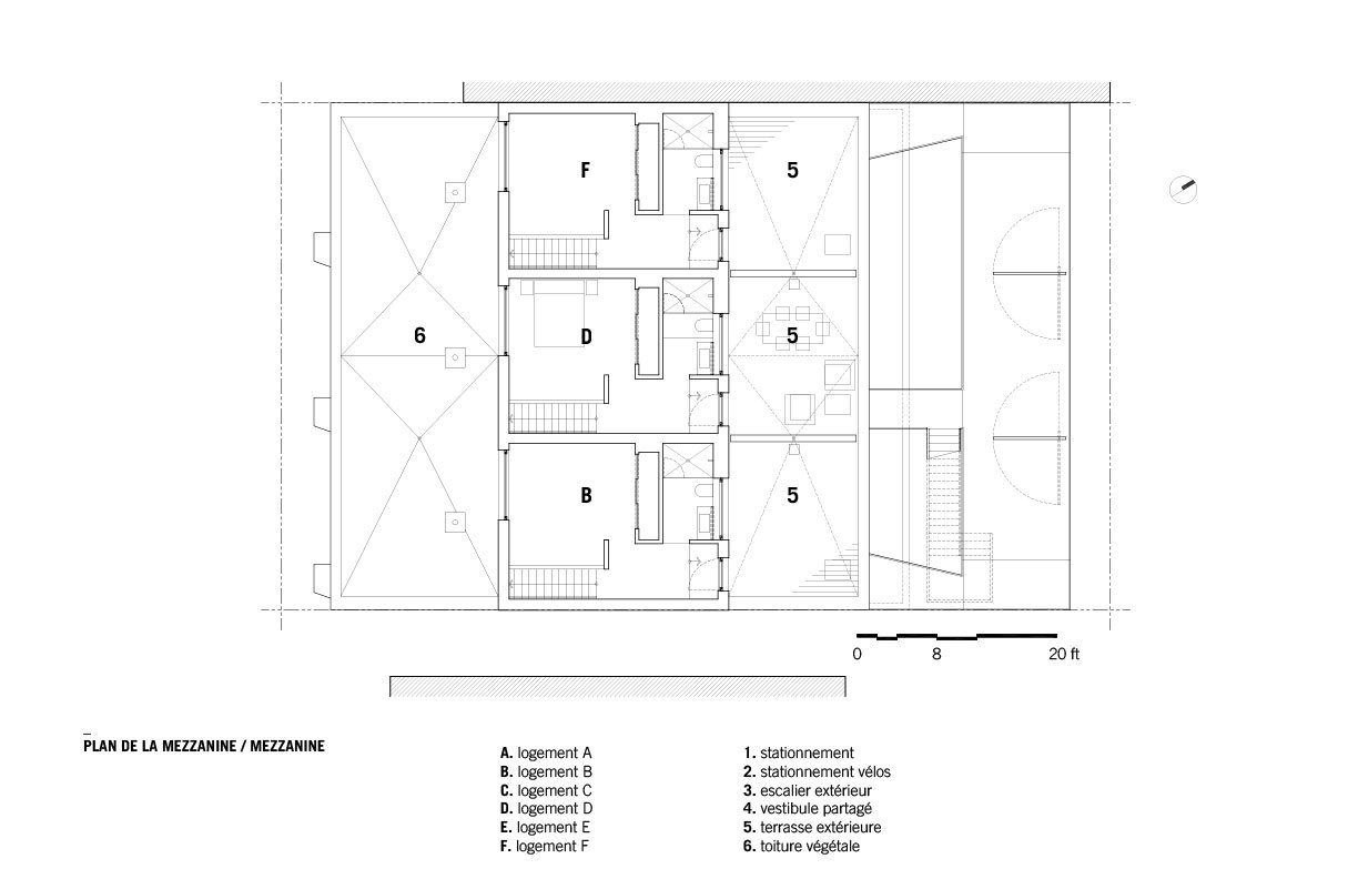
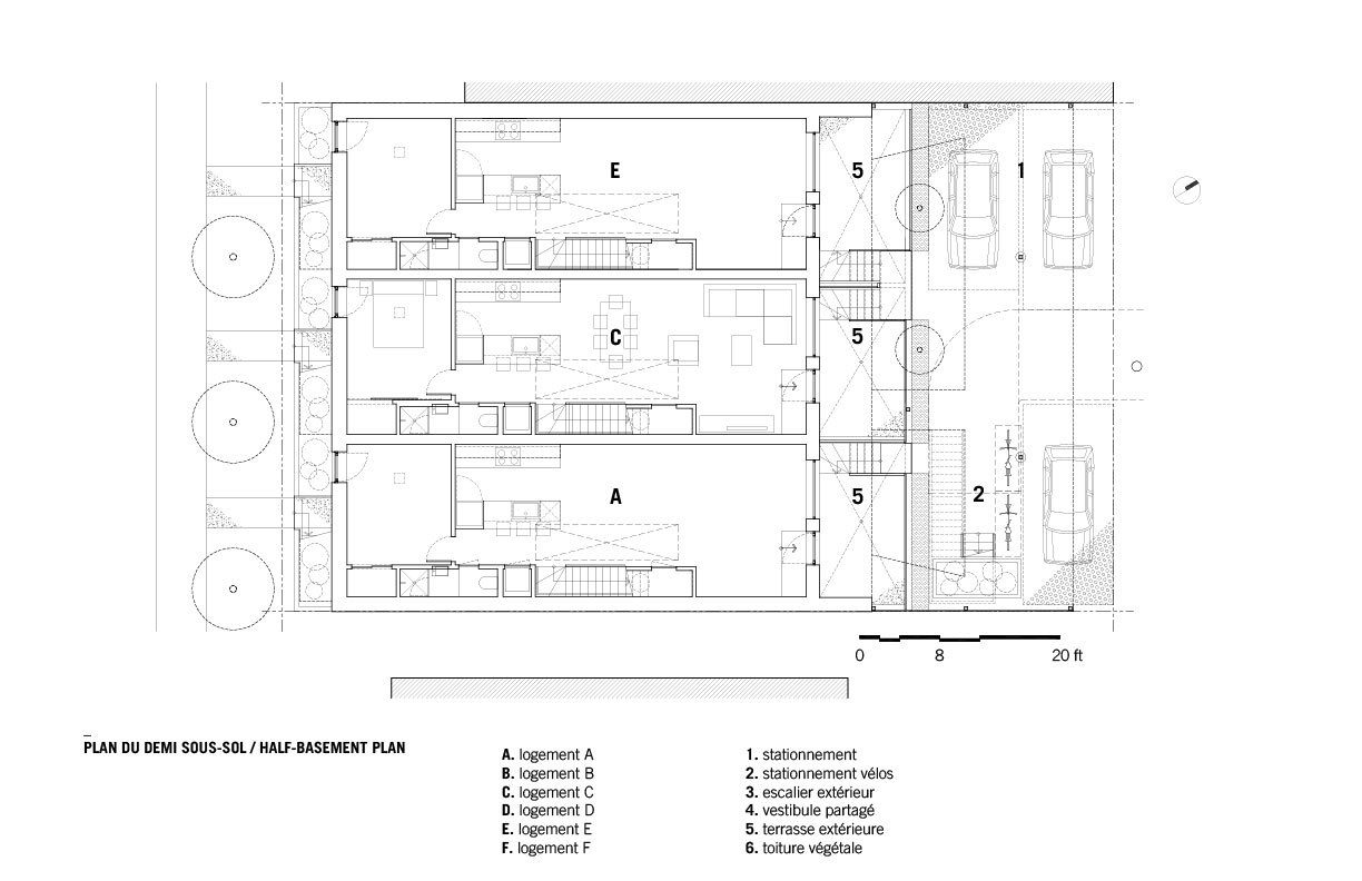
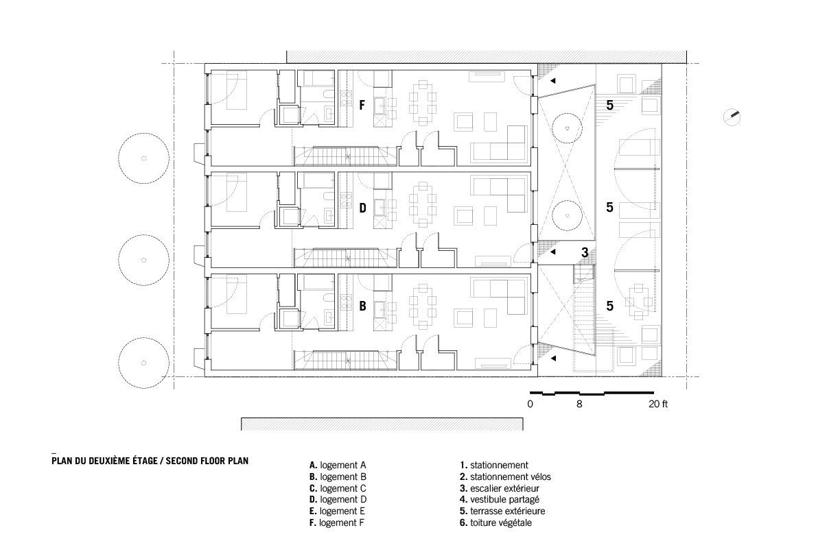
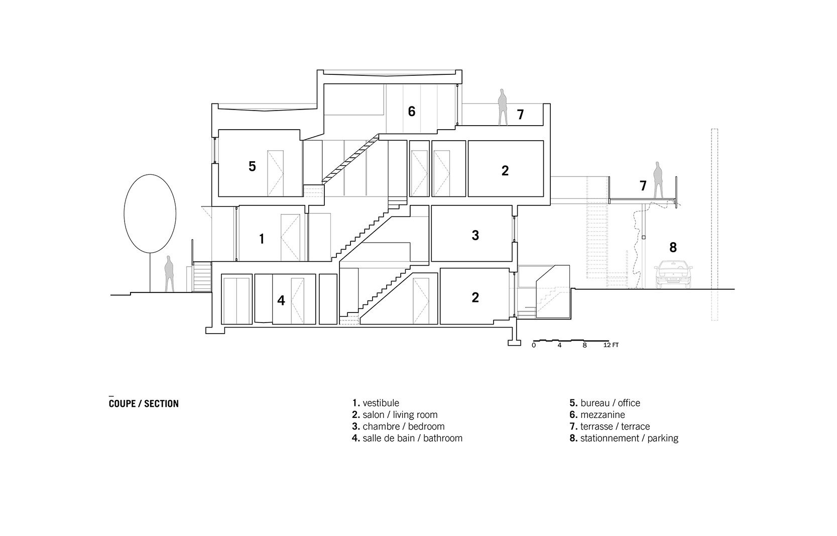
Marquette Residence is located in the Rosemont-Petite-Patrie facing the backyard of Papineau Street, a busy commercial street in Montreal. The project consists of 6 housing units each boasting a private access. Forward, the project is characterized by its simple volume, uniformly coated with a brown brick. For their variable dimensions and offset openings instill dynamism to the front. Street side, 3 parking spaces are covered by a large terrace.
To maximize the contribution of light on the first floor, it was found detached from the facade and the glass walkways with railings. Expanded metal coating covers the exterior structure of the terrace. Copper, the steel cladding covering the lower levels reminds the tone of windows that give rhythm the project.
Project Info
Architects: NatureHumaine
Country: Canada, Montreal
Area: 7200 ft²
Year: 2015
Photographs: Adrien Williams






















