Manifesto House, Infiniski designs and builds eco-friendly houses and buildings based on the use of recycled, reused and non-polluting materials and the integration of alternative and renewable energy.
The Infiniski projects are designed by James&Mau – Architects and designers, Jaime Gaztelu and Mauricio Galeano, founders and partners of Infiniski. James & Mau offer Innovative and contemporary designs based on bioclimatic and modular architecture. Infiniski is not only green, but it is also cheaper and faster … it tries to think the values of architecture and construction differently; a contribution to the needs of our changing environment.
Project Info:
Architects: James & Mau
Location: Curacaví, Chile
Landscaping: Infiniski
Execution Time: 90 days
Furniture: Cómodo Studio, gt_2P
General Contractor: And Manager Infiniski
Total Cost: 79.000 €
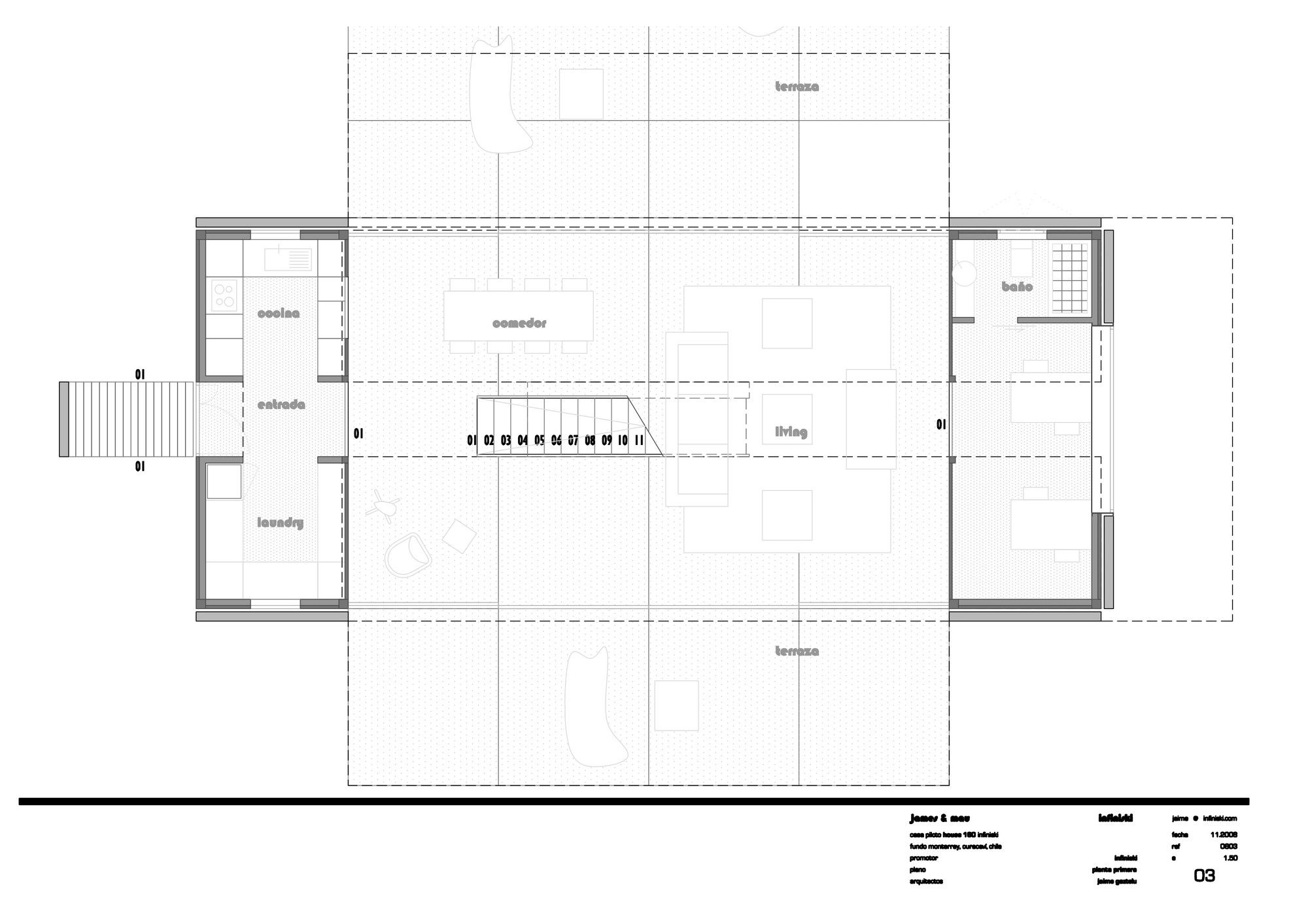
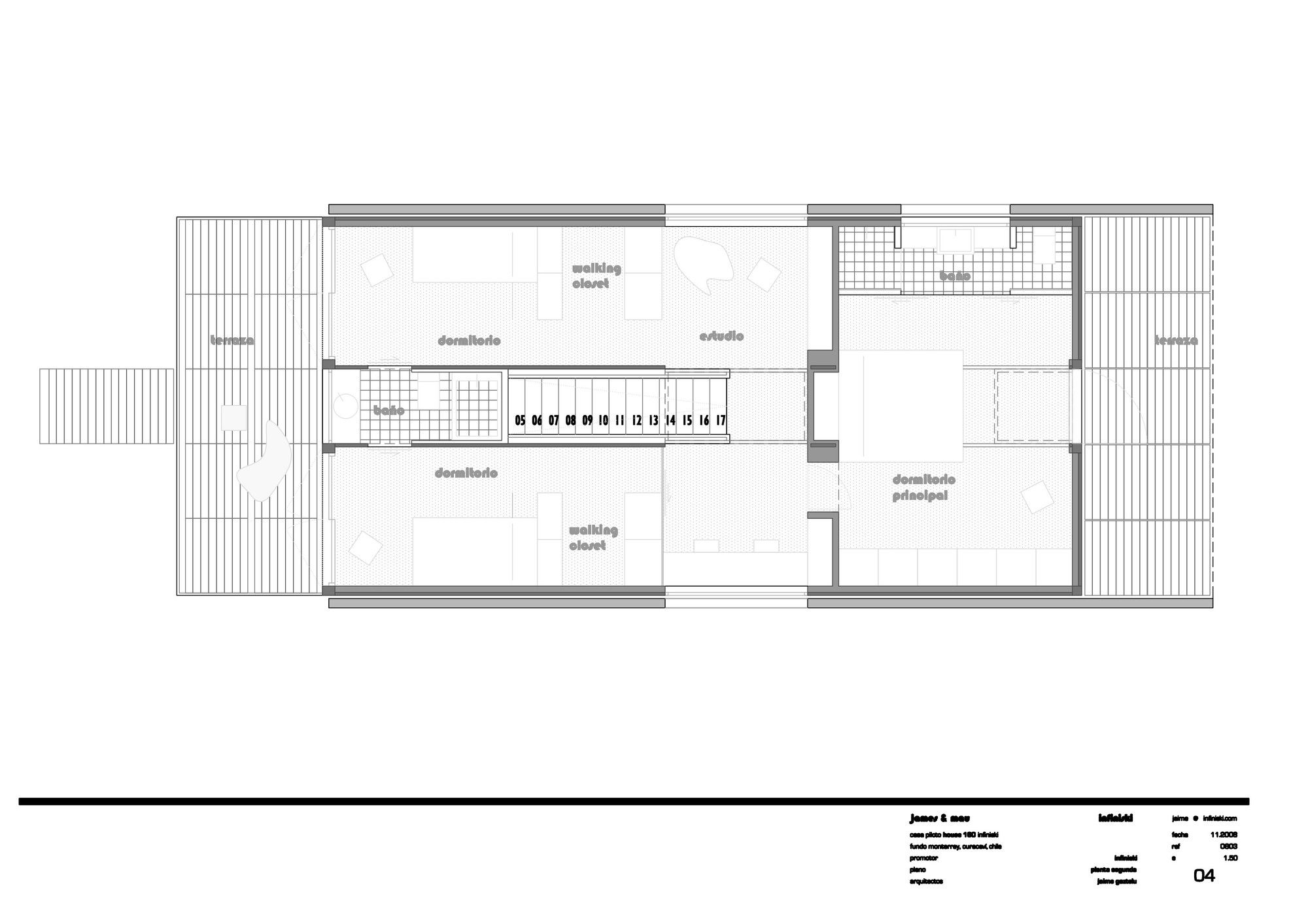
Area: 160.0 sqm
Project Year: 2009
Project Name: Manifesto House
All Images Courtesy Of James & Mau



























