Maison Atelier | YH2 Architecture

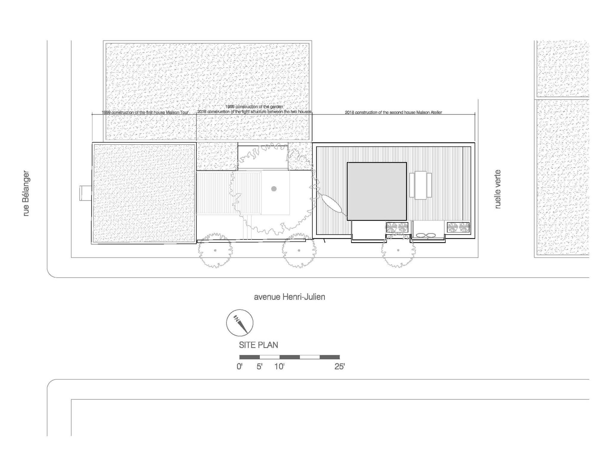
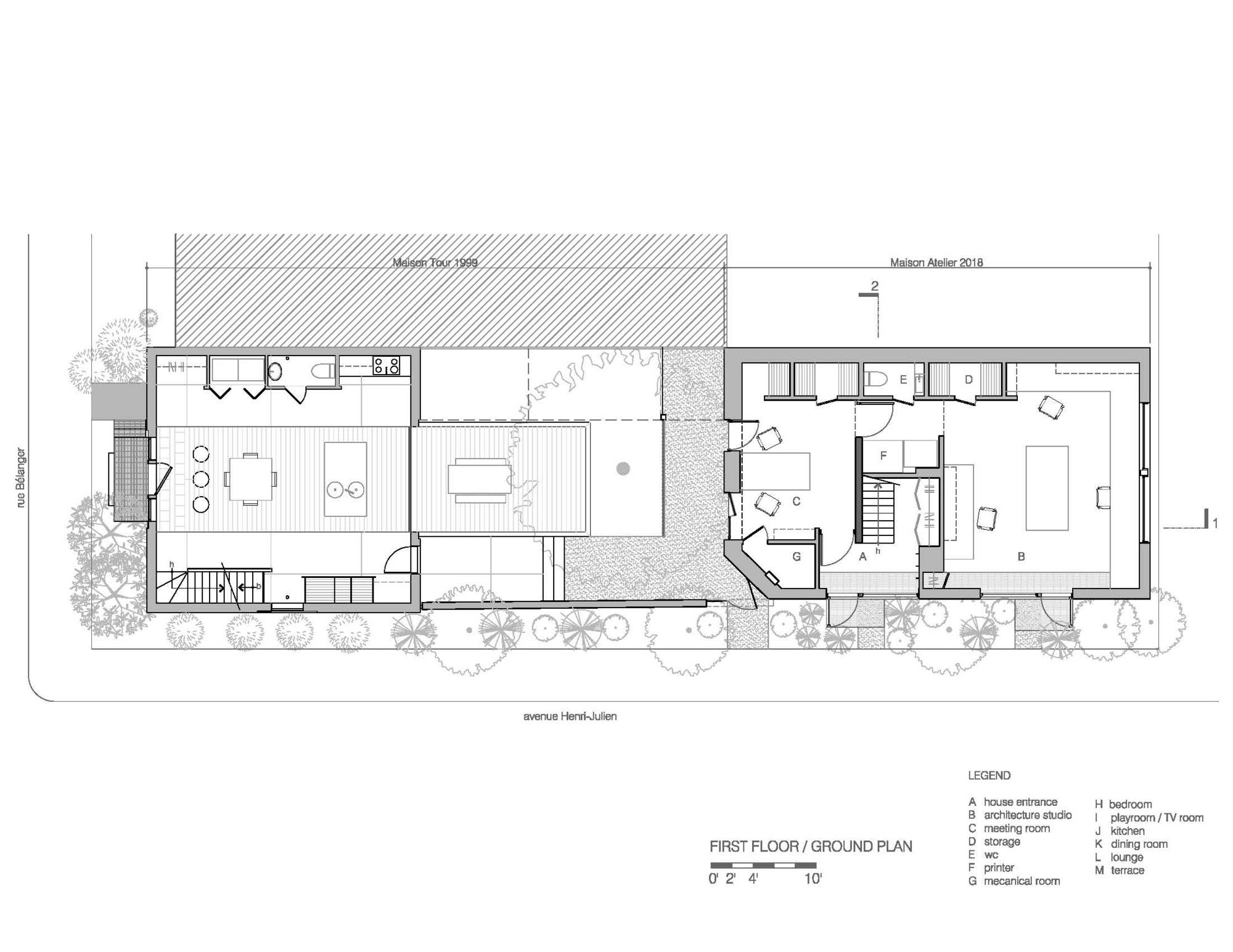
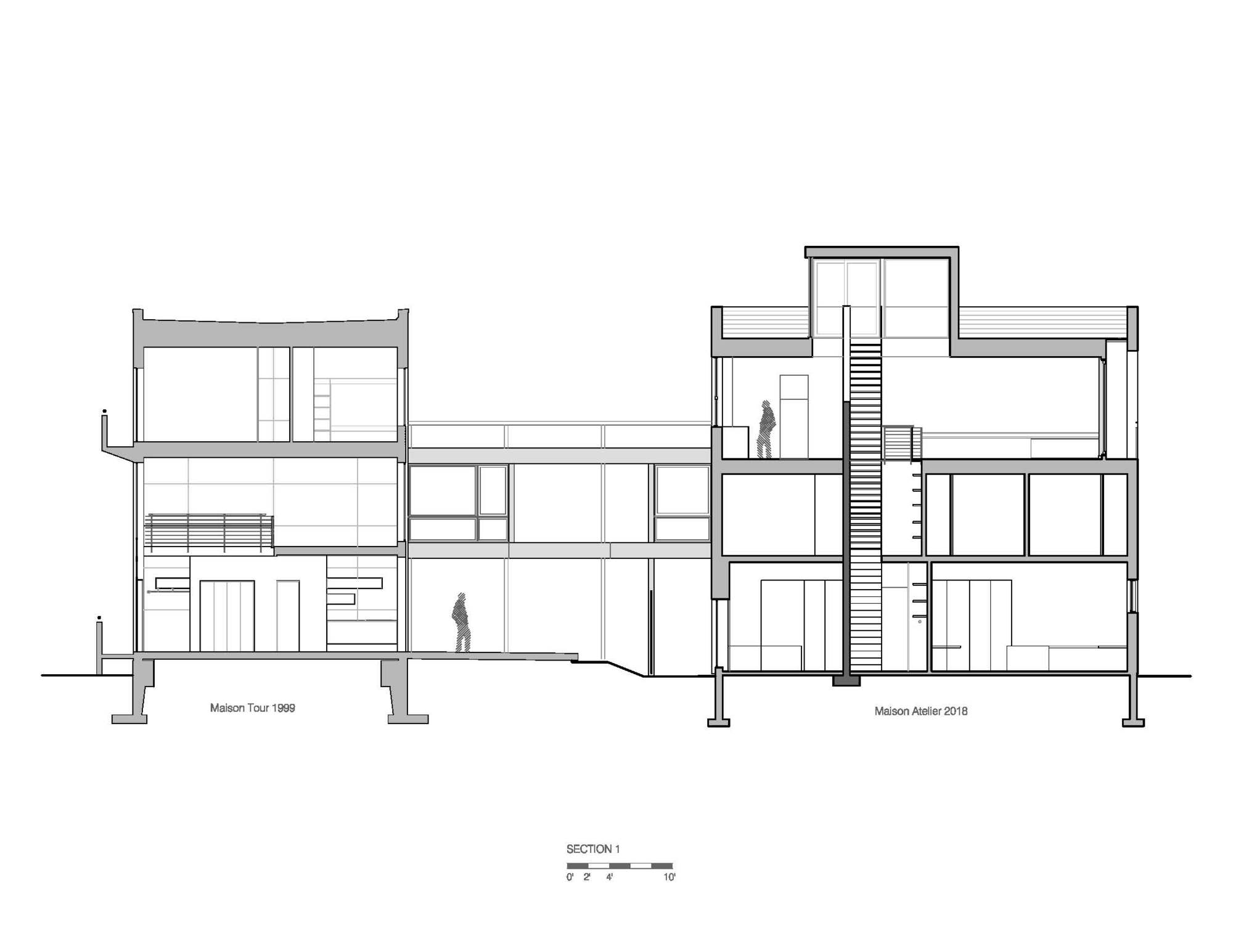
Maison Atelier, The project reflects the natural evolution of this typical lot of Montreal towards greater densification. Over the last 20 years, the architectural firm has transformed this typical Montreal lot twice: First, with the creation in 2000 of the Maison Tour, a home/studio combination organized around an inner courtyard bracketed by a three-story vertical house and a workshop in a former garage at the back of the yard. Second, with the creation, based on the existing building at the back of the yard, of a second three-story home, the Maison Atelier yh2, independent of the original Maison Tour.

© Maxime Brouillet

In place of the traditional Montreal plex typology, the project offers a new model of urban housing by proposing the construction of two independent urban residences on the same lot. Each house has its own ground and offers spacious indoor spaces and intimate and private outdoor spaces.

© Maxime Brouillet

The new Maison Atelier, completed in 2018, includes the yh2 offices on the ground floor and a new dwelling on the upper floors. The corresponding living spaces in each house are on different levels, giving both residences maximum privacy.

© Francis Pelletier

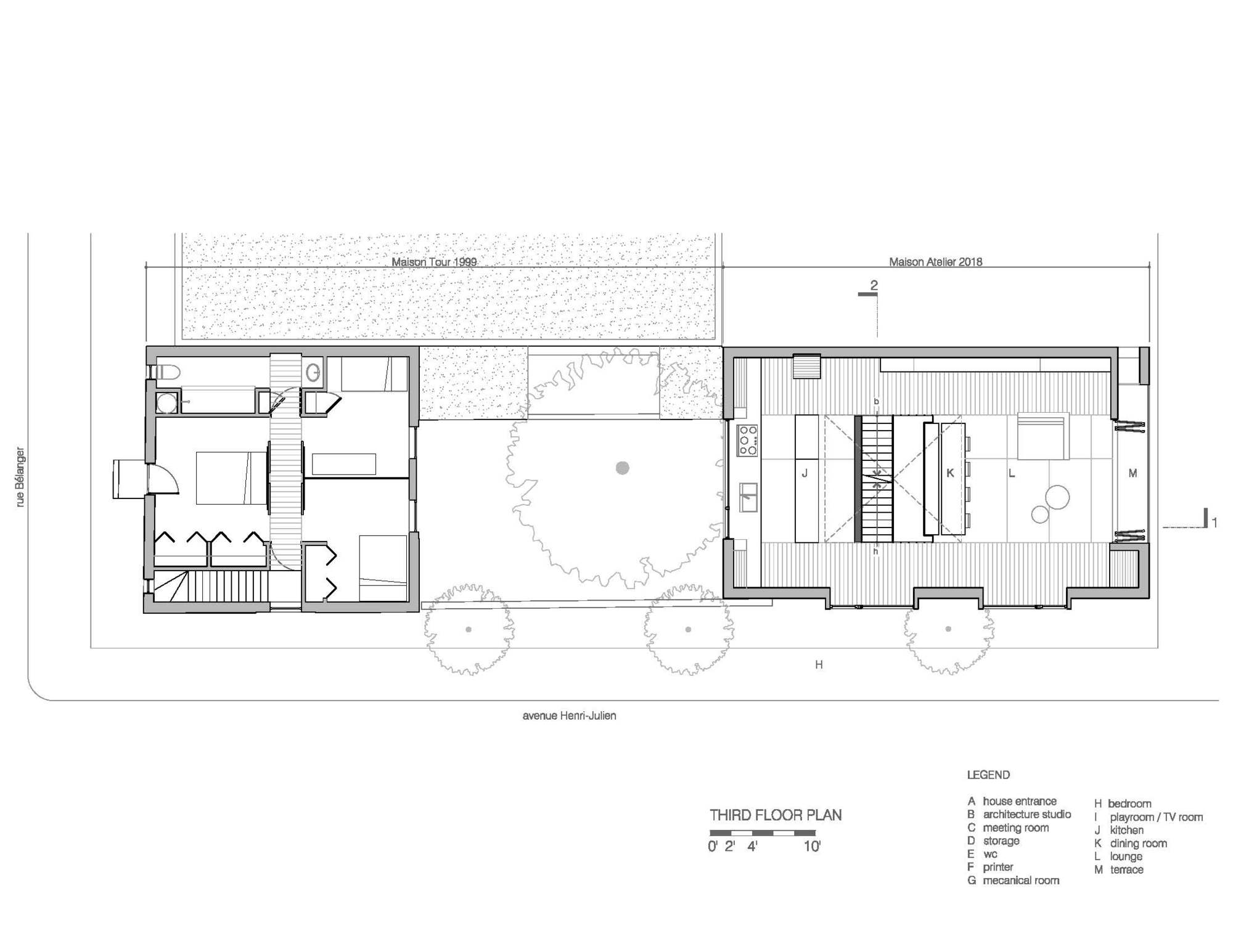
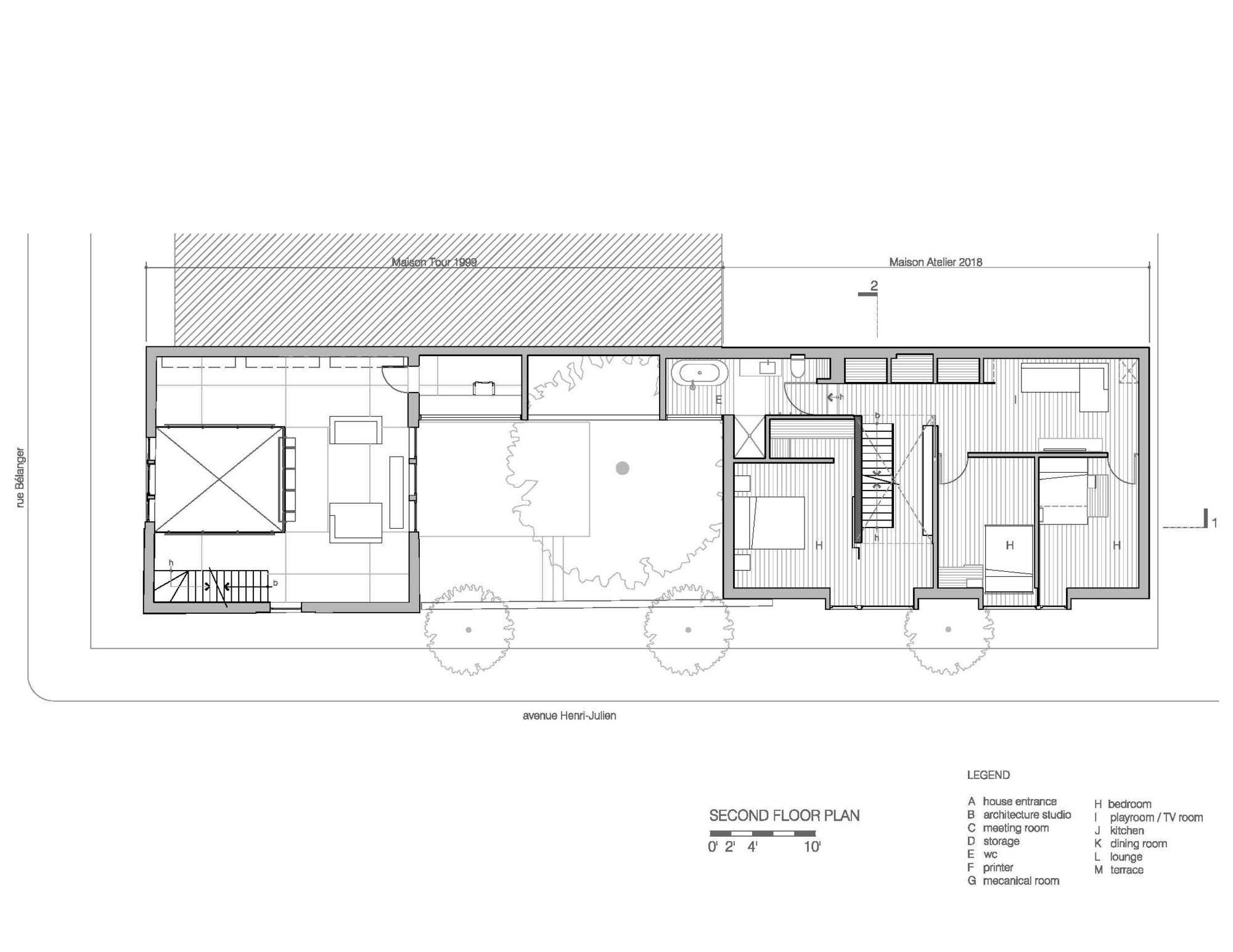
Accessed directly from the street, the yh2 architecture studio is located on the ground floor of the new structure, in two minimalist spaces. Above the studio, but with its own street entrance, the dwelling in the new Maison Atelier yh2 occupies the top two floors of the building. The second floor, completely separate from the office, includes the bedrooms and family room. On the third floor, the living spaces boast expansive views of the cityscape.

© Maxime Brouillet

The spaces are organized around a large raw-concrete wall. This wall/stairway crosses the house on all levels, from the ground floor to the rooftop patio. It serves as a backbone for the building as well as a vertical passage that brings light from the penthouse along a circuitous route to all three floors.

© Francis Pelletier

On the roof, two patios are accessible from the penthouse, providing outdoor space, at once private and open to the city. All built-in furnishings were custom-designed for the project. Collectively these furnishing are an integral part of the architectural whole, and use the same materials as the rest of the project: steel – patinated, raw, white, perforated and stainless – mahogany and white marble.

© Francis Pelletier

A lightweight structure on the second level links the two buildings, to comply with municipal by-laws prohibiting two detached buildings on a single lot. This aerial volume gives each house an extra room above the garden, without reducing the size of the courtyard.

© Maxime Brouillet

The two vertical houses organized around the century-old maple are a green oasis in the heart of the neighbourhood, despite their high-density character. These are both spacious single-family homes with the privacy families’ demand, and a group of dwellings providing the high density needed to meet 21st century urban needs.

Project Info
Architects: YH2 Architecture
Country: Canada, Montreal
Area: 2800 ft²
Year: 2018
Photographs: Maxime Brouillet, Francis Pelletier, Loukas Yiacouvakis
Manufacturers AutoDesk, Chaos Group, Arancia lighting, Lambert & fils, McNeel, Meubles du Québec: AutoDesk

Anastasia Andreieva
Anastasia Andreieva

Anastasia Andreieva is an accomplished Architectural Projects Editor at Arch2O, bringing a unique blend of linguistic expertise and design enthusiasm to the team. Born and raised in Ukraine, she holds a Master’s degree in Languages from Taras Shevchenko National University of Kyiv. Her deep passion for architecture and visual storytelling led her to transition from translation and editorial roles into the world of design media. With a keen eye for conceptual clarity and narrative structure, Anastasia curates and presents global architectural projects with precision and flair. She is particularly drawn to parametric and digital design, cultural context, and emerging voices in architecture. When I’m not analyzing the latest architectural trends, you’ll probably find me searching for hidden gems in cityscapes or appreciating the beauty of well-crafted spaces. After all, great design—like great connections—can be found in the most unexpected places. Speaking of connections, because architecture isn’t the only thing that brings people together.

Arch2O.com
Logo
Send this to a friend