A housing development in Hyderabad, India will have a landscape designed by Penda. In a country where trees are being cut to make way for the increasing population, and properly designed landscaped areas within housing communities are not found in abundance, this is a very welcome addition.
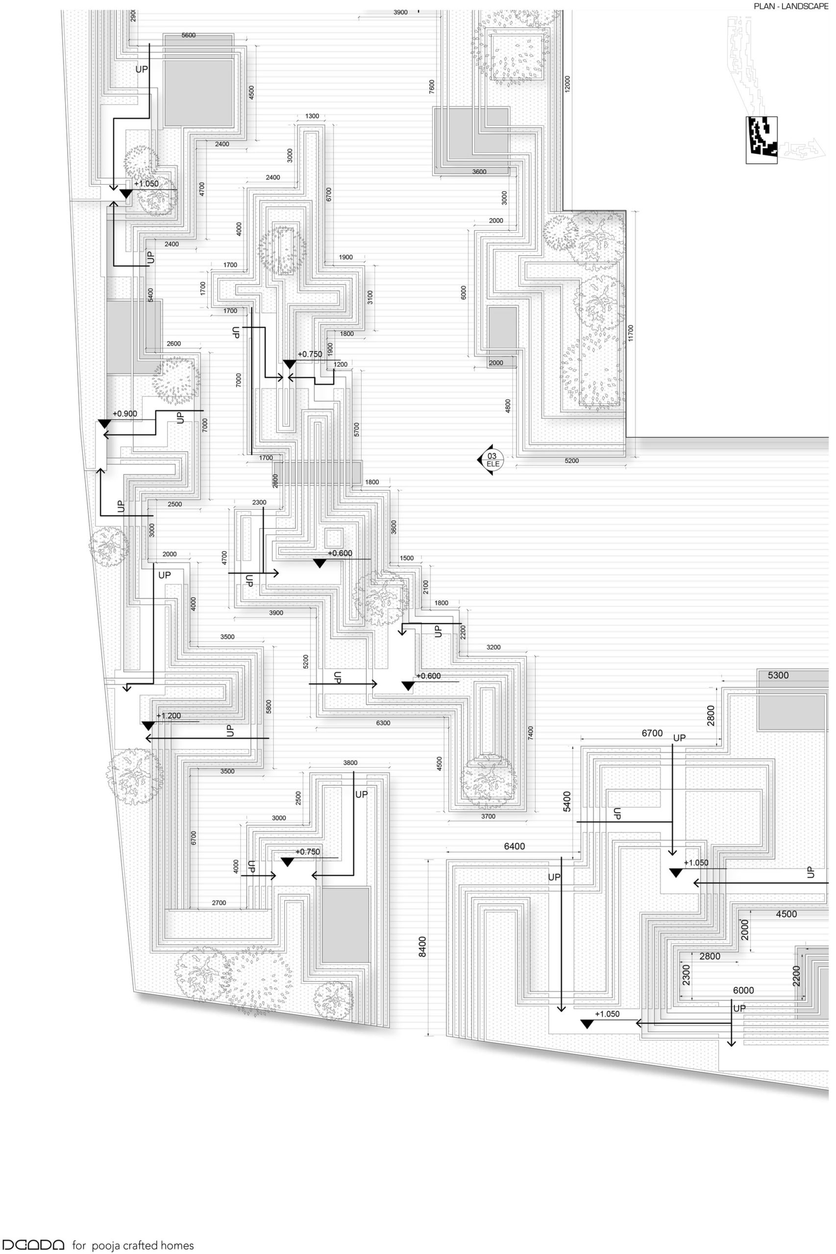
The architects explored Indian techniques and traditions for design inspiration. Indian Step-wells and mazes became the guiding force. Step wells were primarily designed with the aim of maintaining and accessing the water through steps reaching towards the well, irrespective of fluctuations in seasonal water availability. They also became places of leisure as it would get cooler as one would descend the steps.
The architects brought together the design of the step wells and traditional maze designs to define the landscape. A maze has been used to define the boundaries and lines along which the steps would run. The steps will be used to plant trees, bushes, grass and in the end to place water.
The 8000 square meter paved landscape is not just for aesthetic purposes. It has been integrated with inbuilt sitting and three different types of walkways. One may choose to take a path that runs completely straight, intended for runners and emergency vehicles. The second option is for people who would like to reach their homes unimpeded via a narrow walking path. The third is for those times when one would like to stroll, and enjoy the landscape and all the facets it has to offer- the steps, the plants and water. Water will cut through the heat in Hyderabad and help to naturally keep the hard landscape cool.
The design takes a modern take on traditional Indian techniques, reaffirming the fact that there is a multitude of inspiration to be found in each country’s own local crafts, sustainable techniques and traditions. The construction of this Magic Breeze landscape will start this year, it is much awaited.
Project Information :
Architect :Â Penda
Client : Pooja Crafted Homes
Project Year :Â 2016
Design Team : Chris Precht, Sun Dayong, Zi Zhi, Xue Bai, Anna Andronova
Location:Â Hyderabad, India


























