M 5605 Housing questioned us about the possible ways of approaching our design practice. The proposal recognizes the temporal and spatial instances inherent to the project, based on the recognition of the categories of contextualization (between insertion and implementation), configuration (between a material object and the system), and disposition (between what is determined and the indeterminate).
Contextualization. M 5605 is a horizontal property building located in the Villa Urquiza neighborhood with ten functional units, on a small corner lot measuring 8.80 × 12.72 m. It is located in a medium residential fabric, adjacent to the F.F.C.C. Mitre. Multiple contextual relationships are proposed, from incorporating the public space into the interior of its entire ground floor to a single floor. Like the recognition of its pre-existing boundaries, inferring possible relationships and distances from its expansions. In addition, it incorporates the upper setbacks to the envelope in a sensitive way that promotes greater empathy in its environment.
Configuration. The building maximizes its constructive capacity, from a mono-material envelope using the Bricko brick from Corblock. In this sense, material experimentation is allowed based on various precise morphological operations (repetition, section, linking) to assume its own complexity, and investigate the encounters, arrangements, modes of union, and fixations with the intention of configuring an atmosphere desired. (light and space in a constant interpellation).
The treatment of the expansions as bellows in the perimeters of the façade has the purpose of mitigating the noise and allow to regulate the gradients of privacy, luminosity, and opacity in relation to the exterior.
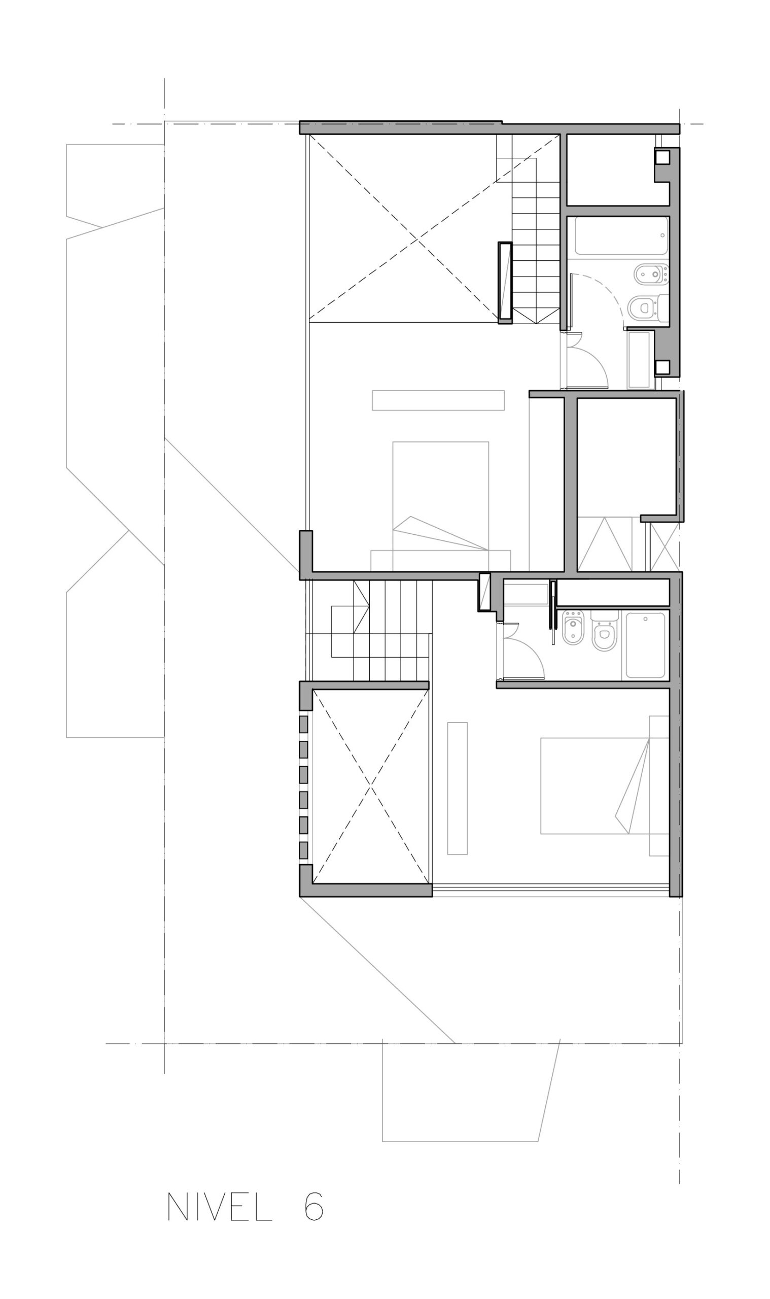
Layout. The building is arranged on the ground floor and 6 levels high, proposing a tension between form, space, and matter, based on the search for identity. The housing units investigate new configurative possibilities of living, which allow their adaptability and contemporaneity.
Project Info
Architects: Arqtipo
Country: Argentina, Buenos Aires
Area: 665 m²
Year: 2022
Photographs: Federico Kulekdjian
Architect: Juan Pablo Negro, Martin Giani, Catarina Staric, Belen Canosa, Marcelo Sigrist, Leonardo Pulzoni
Project Architect: Lucas Gorroño








































Sophie Tremblay is a Montreal-based architectural editor and designer with a focus on sustainable urban development. A McGill University architecture graduate, she began her career in adaptive reuse, blending modern design with historical structures. As a Project Editor at Arch2O, she curates stories that connect traditional practice with forward-thinking design. Her writing highlights architecture's role in community engagement and social impact. Sophie has contributed to Canadian Architect and continues to collaborate with local studios on community-driven projects throughout Quebec, maintaining a hands-on approach that informs both her design sensibility and editorial perspective.





