LLM Hous
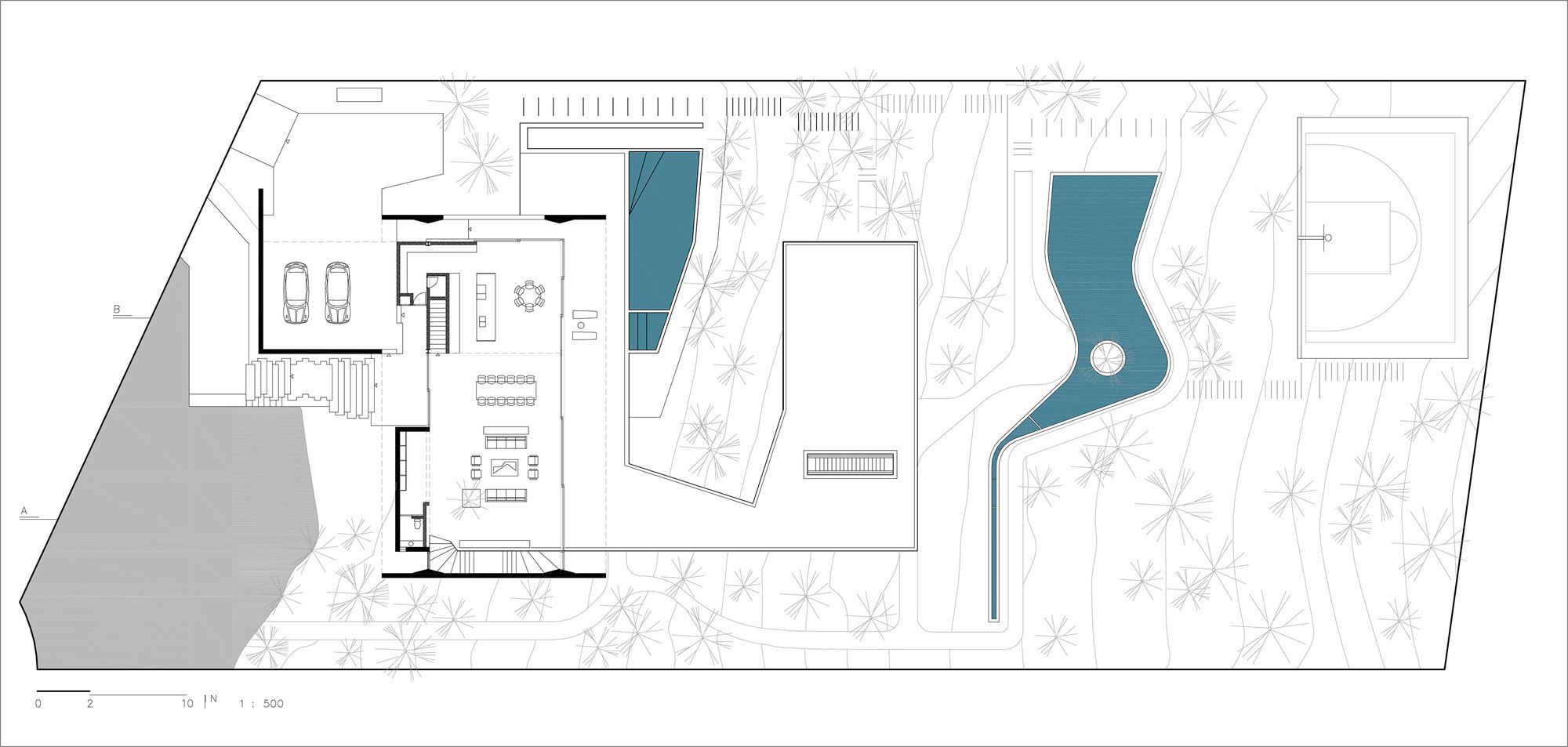
Situated on a site with a large number of native trees to be preserved and an average slope of 30%, the implementation of the project suggests an intense dialogue with the existing topography and vegetation.
Considering the built area of 1187,60m, suggested by the customer and necessary to resolve the entire program, we tried to develop a project where people could have direct eye contact, despite being in different environments and levels of the house. This prevents the isolation and facilitate meetings of its residents with greater objectivity.
The program was arranged so that the collective spaces, being, working and cooking, have a relationship with the larger landscape views and higher light intensity. The rooms and more intimate settings were positioned below the treetops, forming a courtyard with tree trunks.
The house was designed in mixed structure. Retaining walls in reinforced concrete and 2 gables also specifically serve for adjustment of some quotas of the land and anchoring to the metal frame, hoisted on the trees.
The room has a span of 24 meters, won with two metal beams with 1.50m. One of these beams supports the suspended mezzanine. This alternative was considered after the structural analysis of the own weight and loading the beams were much higher than the load request from the mezzanine. Moreover, the structure creates great piles and pleasant shaded area at the bottom.
Project Info
Architects: Obra Arquitetos
Location: Sao Paulo, Brazil
Architects in Charge: João Paulo Daolio, Thiago Natal Duarte
Area: 1187.6 m2
Year: 2015
Type: Residential
Photographs: Nelson Kon
















































Hadeer Shahin is the Built Projects Editor at Arch2O, where she curates innovative architectural works from around the globe. With a background in architecture from Alexandria University and hands-on experience in design and digital content, she bridges the gap between technical precision and editorial vision. Hadeer’s keen eye for spatial storytelling and her passion for contemporary design trends make her a vital contributor to Arch2O’s mission of highlighting excellence in the built environment.
