Let There Be (Intelligent) Light in Eindhoven | LAVA

Designed by LAVA, Golden light shines through a canopy of leaves to create a unique gathering space in the atrium of the new Philips Lighting headquarters in Eindhoven.
Intelligent lights in the parametric designed ‘tree’ generate different scenarios, boosting communication, interchange, and wellbeing for staff and visitors.
LAVA, with partners INBO and JHK, designed the adaptation of the mid 20th-century building for the new headquarters. The aim was to design public and workspaces that embrace the innovative, people-centric values of lighting technology company Philips.

Photography by © Jonathan Andrew

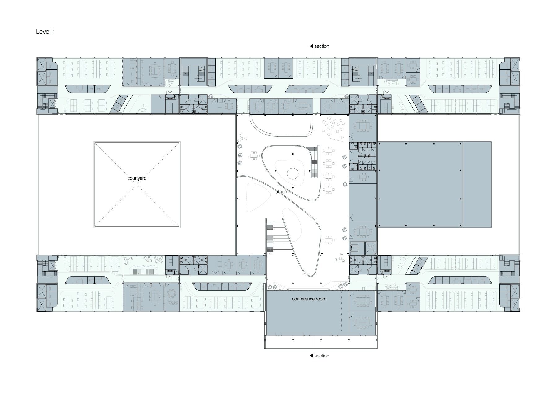
“The atrium, originally the central courtyard of the 1950s building, was designed as a place of welcome, wayfinding, branding and staff interaction, and therefore had to be strong spatially,” said LAVA director Alexander Rieck.
The atrium also brings people together by congregating core activities such as exhibitions, meeting rooms, coffee bar, public talks and staff meetings, and is also the entrance to the new Philips Lighting Application Centre.
Staff and visitors are greeted in the central atrium by LAVA’s huge parametrically designed interactive light ‘tree’ comprised of 1500 ‘leaves’, hanging pyramidal panels suspended from the ceiling. The concept is of light filtering through trees.
Covering the whole atrium ceiling the sculpture demonstrates the behavior of light, both natural and artificial: reflection, diffusion, and emission.

“Light was obviously the main driver but LAVA’s design goes beyond just showcasing technical solutions – it explores a deeper understanding of the nature of light. Light is only visible to the human eye when it reflects on something, so the sculpture gives shape and visibility to light,” added Rieck.
“Light is used for information, visualization, emotion and enabling – our tool to create a volume of space.”
Mr. Rieck explained: “The sun gives our sense of time. Working in an office means people miss the subtle light changes during the day. So LAVA programmed the panels using low-level artificial intelligence to create daily light scenarios in an organic and non-repetitive way for the whole calendar year. Scenarios respond to different seasons, times of the day and the architectural layout of the atrium space and are used to activate or relax the users throughout the day.”
“It’s a bit like an ecosystem, with light effects turning golden, for example, as an energy boost in the morning.”
A reflective surface on the back of each panel creates a play of light and shadow. It also filters and reflects natural light from the atrium side windows and skylights.

v

Five hundred panels use self-emitting Philips Ecophon Soundlight – an integral product that consists of comfortable LED lighting with sound absorption in an integrated light and acoustic ceiling system.
“We know from Fraunhofer Institute research that generating different lighting effects is a cost-effective way to bring variety and productivity to the lives of workers who quickly become oblivious to their surroundings, no matter how attractive.”
“The iconic design not only gives visitors an amazing experience and a transition from the entrance to offices and the LAC but also reflects this innovative and forward-thinking company,” he added.

Photography by © Jonathan Andrew

The offices were designed to foster creativity with a more flexible and efficient use of space. Spaces were designed to encourage informal ‘accidental’ interactions, known to be a key enhancer of success in R&D businesses.
Special environments were created for different work situations – from concentration to communication, activation to relaxation.
Other factors such as various visual fields, perceived security, acoustics, smell, lighting, materials, and textures contribute to an effective and harmonious work environment, which meets the highest standards of the innovative workspace layout WPI (workplace innovation).
The design was developed using the latest workspace research and Philip’s experience with recent fit-out experiments plus an intensive cycle of interviews and design meetings involving the end users and building management.

Photography by © Jonathan Andrew

Project Info:
Architects: LAVA
Location: EindhovenThe Netherlands
LAVA team: Alexander Rieck, Tobias Wallisser, Chris Bosse
Project Architects: Nuno Galvao, Matthijs la Roi, Stephan Markus Albrecht, Sebastian Schott, Mariusz Polski
Design Team: Marvin Bratke, Mircea Mogan, Barbora Srpkova, Miroslav Striga, Diana Schlebe, Rashmi Katkar, Roxelane Güllmeister, Paolo Alborghetti, Ruis Dervishi, Aida Ramirez, Julian Wengzinek, Benjamin Hitscherich, Simone Tchonova, Erik Didar, Jeroen van Lith, David Stieler
Project Year: 2016
Photographs: Jonathan Andrew
Project Name: Let There Be (Intelligent) Light

LAVA
Arch2O.com
Logo
Send this to a friend