Laurie House | Joseph Mills Architects

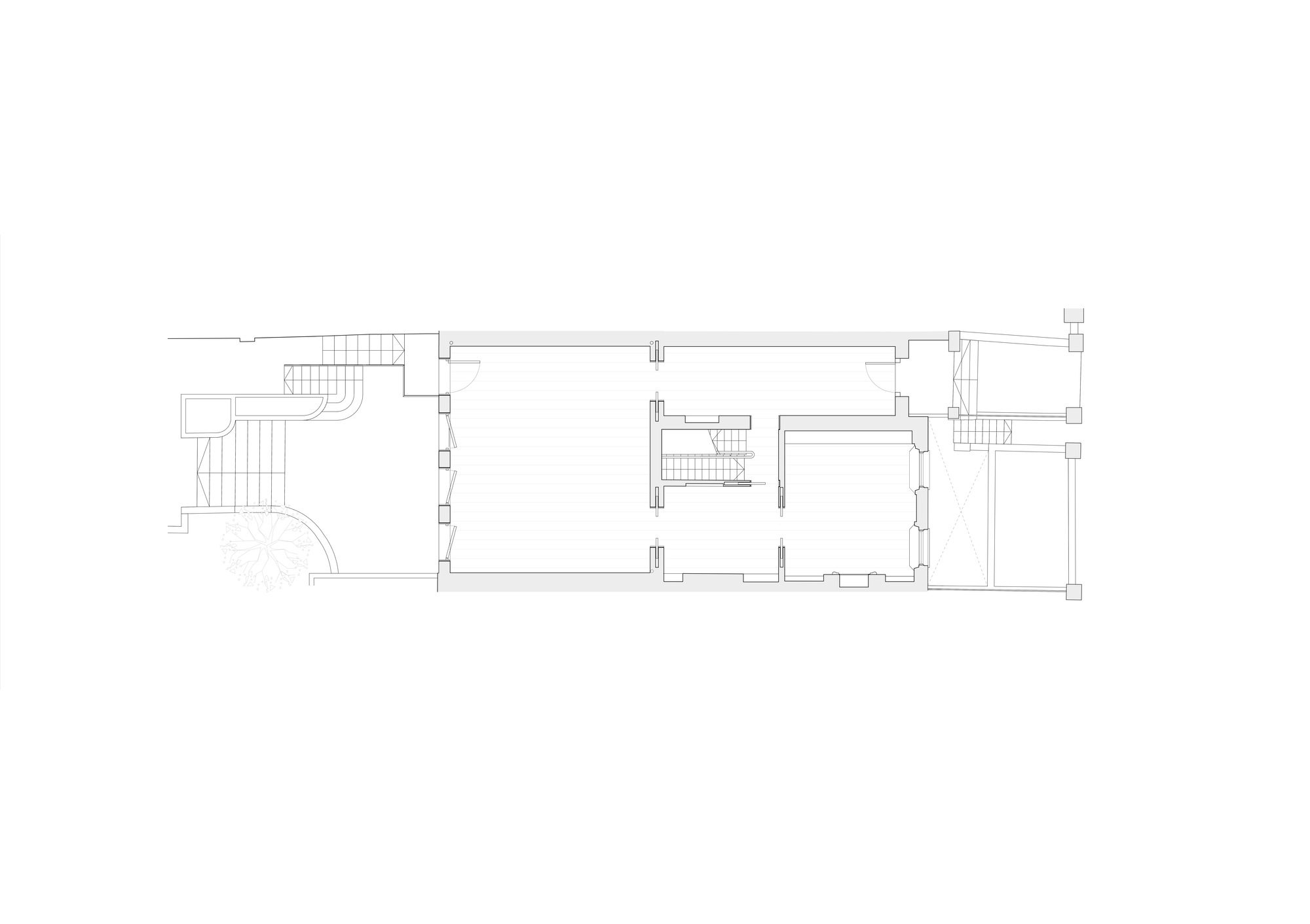
Laurie House, The extension and renovation was designed to make the most of the views of garden and the owner’s art collection. Large format arched windows were used to reflect the existing arched windows on the street-facing elevation. All the bricks for the extension are reclaimed London Stock Bricks with a lime mortar to tie in with the existing building.

© Martin Morrell1

© Martin Morrell

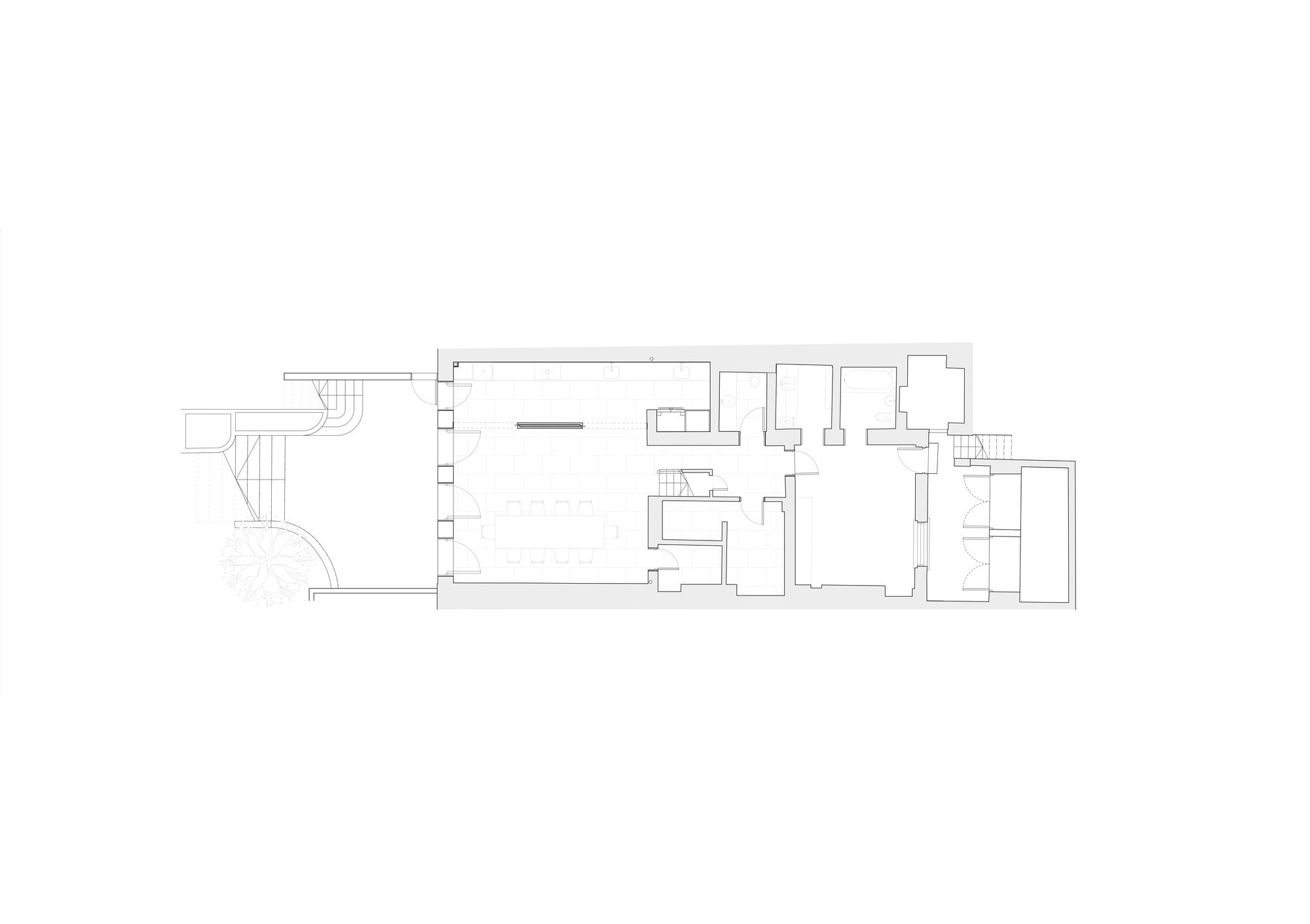
Internally, a simple palette of painted plaster walls and solid oak floors give emphasis to views of the garden and bespoke furniture pieces designed and fabricated by Joseph Mills Architects.

© Martin Morrell2

© Martin Morrell

Soft furnishings, such as a silk rug in the sitting room, were also designed by Joseph Mills. The open plan layout is broken up by sliding glass doors which are left open most of the time.

© Martin Morrell3

© Martin Morrell

A new stair down to the garden was built using reclaimed bricks, limestone pavers and a black metal handrail carefully set out to penetrate each brick in the center.

© Martin Morrell4

© Martin Morrell

The kitchen and dining room table were designed in house and are made from dark-stained oak

Project Info
Architects: Joseph Mills Architects
Country: United Kingdom, London
Year: 2024
Photographs: Martin Morrell
Manufacturers Dinesen, iGuzzini, Minotti: Dinesen
Design: Joseph Mills
Program / Use / Building Function: Private House

Mohamed Saleh
Arch2O.com
Logo
Send this to a friend