LAM – Lisser Art Museum | KVDK architecten

Op de monumentale buitenplaats van Kasteel Keukenhof is door KVDK architecten het LAM (Lisser Art Museum) gerealiseerd.

LAM – Lisser Art Museum

© Sjaak Henselmans

Dit ‘food & consumption art museum’ is opgericht door de familiestichting ‘VandenBroek Foundation’ van het supermarktconcern Dirk. Ingebed in een historische dijk maakt het museum op vanzelfsprekende wijze deel uit van het omringende cultuurpark Keukenhof.

LAM – Lisser Art Museum

© Sjaak Henselmans

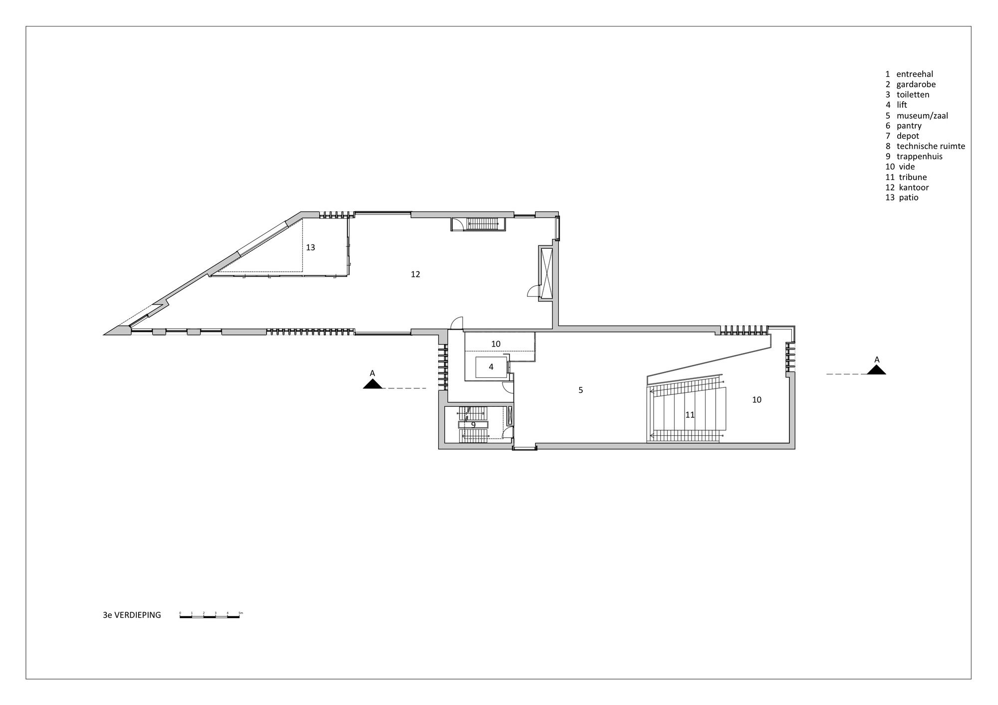
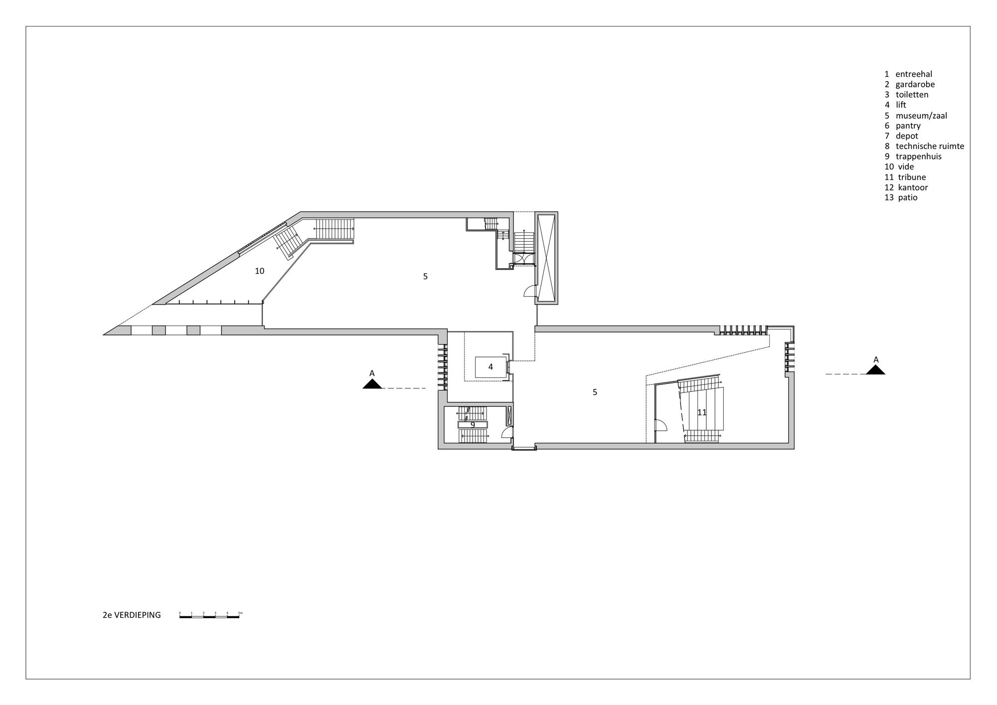
Door het open karakter, de routing en de natuurlijke materialen gaat het museum een duidelijke relatie met de omgeving aan. Kunst en park versterken elkaar in dit daglichtmuseum; de wandelaar geniet van het ingetogen gebouw en enkele ‘kunstwerketalages’ en de museumbezoeker ontdekt de bijzondere collectie zonder contact te verliezen met de aanwezige natuur.

LAM – Lisser Art Museum

© Sjaak Henselmans

Project Info:
Architects: KVDK architecten
Location: LisseThe Netherlands
Architect in Charge: Arie Korbee
Design Team: Wim van der Ham, Tim Stolwijk, Guido Kaas, Albert van der Niet
Urban Design: Rho
Installations Advisor: Deerns Raadgevende Ingenieurs B.V.
Area: 2140.0 m2
Project Year: 2018
Photographs: Sjaak HenselmansRonald TillemanPaul Kozlowski
Manufacturers: Petersen Tegl
Project Name: LAM – Lisser Art Museum

Arie Korbee
Arch2O.com
Logo