Lagos Building | Estudio Aire
Lagos Building is located in a downtown lot in the city of Rosario, in the midst of a formal and material heterogeneity, product of the changing urban regulation policy. The New Building Code restricts the height and the market demands the best soil optimization. The project aims to address an architectural response to a strictly commercial requirement.
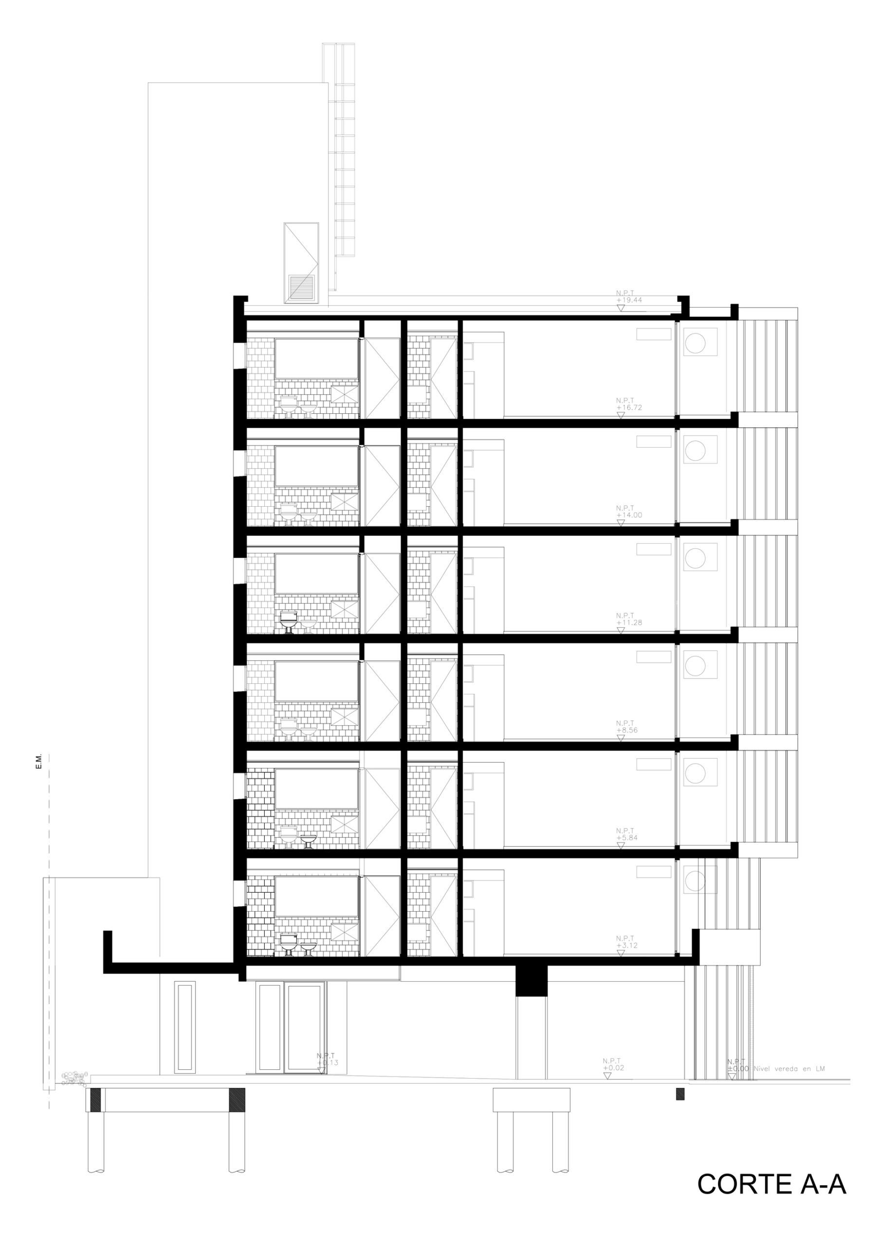
The project seeks a contextual quality from within and not only in relation to its insertion in the plot. To answer this, the balconies of the 18 apartments are conceived within the mass built to generate an open intermediate space but with close link to the domestic space. The facade constitutes a filter of the noisy street and calibrates the visual relationships. The volume is solved assuming objective conditions, product of the low height of the boundaries but understanding that the urban code seeks the consolidation of the block.
The work addresses the issue of real estate speculation from the construction of collective housing for rent. This is why the project tries to reflect on the design guidelines for equivalent actions looking for a differentiated result in the impact produced by the continuous replacement by its inhabitants in the transformation of the piece of origin. The emphasis is placed on the design of the facade, which ensures a unique urban appearance that can be sustained over time and that resists the actions of the user that were not foreseen (spaces for laying clothes, outdoor units of air conditioning equipment, awnings, separations between neighbors, deposits, etc)
Material decisions try to activate the relationship between outer and inner space.
The ground floor is conceived as an extension of the public conditions of the street, the perforated sheet allows transmitting the open atmosphere to the domestic space, without generating an explicit exhibition.
The concrete helps to extend the physical perception of the interior space towards the exterior of each house, collaborating in the possibility of understanding the spaces of the balconies as extensions and not as residual or deposit spaces. The material left to the natural ensures a low maintenance of the construction. The project seeks to leave an expressive trace of the constructive system used. The brutality of the material does not intend to hide; the table formwork leaves a mark on the vertical and horizontal surfaces.
The use of concrete in view conjugates structure of support, spatial structure and expression of the building. The set is resolved with the minimum amount of formal actions. The medians of bricks seen seek a contextualized response and extend into the lot surrounding the counterfacing and a sequence of vertical concrete elements are added to the expression of slabs and columns.
We believe that the contemporary has nothing to do with the production of something completely new nor with the indiscriminate repetition of recipes. We are interested in reviewing what has already been produced and intervening as little as possible. We are very clear that it is an almost ridiculous approach since our activity lies in occupying free space. This paradox is what leads us obsessively to focus on the space resulting from the manipulation of the form.
Project Info
Architects: Estudio Aire
Area: 10634 ft²
Year: 2017
Country: Rosario, Argentina
Photographs: Walter Salcedo
Manufacturers: Cañuelas, Domec, FV, ferrum
Lead Architects: Juan Germán Guardati, Román Renzi, Virginia Kahanoff
Developer: Gustavo Sattler
Collaborators: Valeria del Vecchio




















