La Roca Student Housing, We built the last piece of an overall project located in the Bordeaux sector of Brazza. After the silo parking and the « sports cathedral », the new student residence accentuates the dynamism and mix of uses of this new district. The proportions of the plot allowed us to go beyond the classic layout of batteries of rooms on either side of a corridor without natural light. On the contrary, the heart of the project here is an open-air patio around which circulation wraps. These passageways open onto the gaps between each building, framing the new urban landscape and promoting natural ventilation throughout. The rooms are therefore open and through, both towards the street and towards the planted and shaded patio. It constitutes a real island of freshness for the benefit of students.
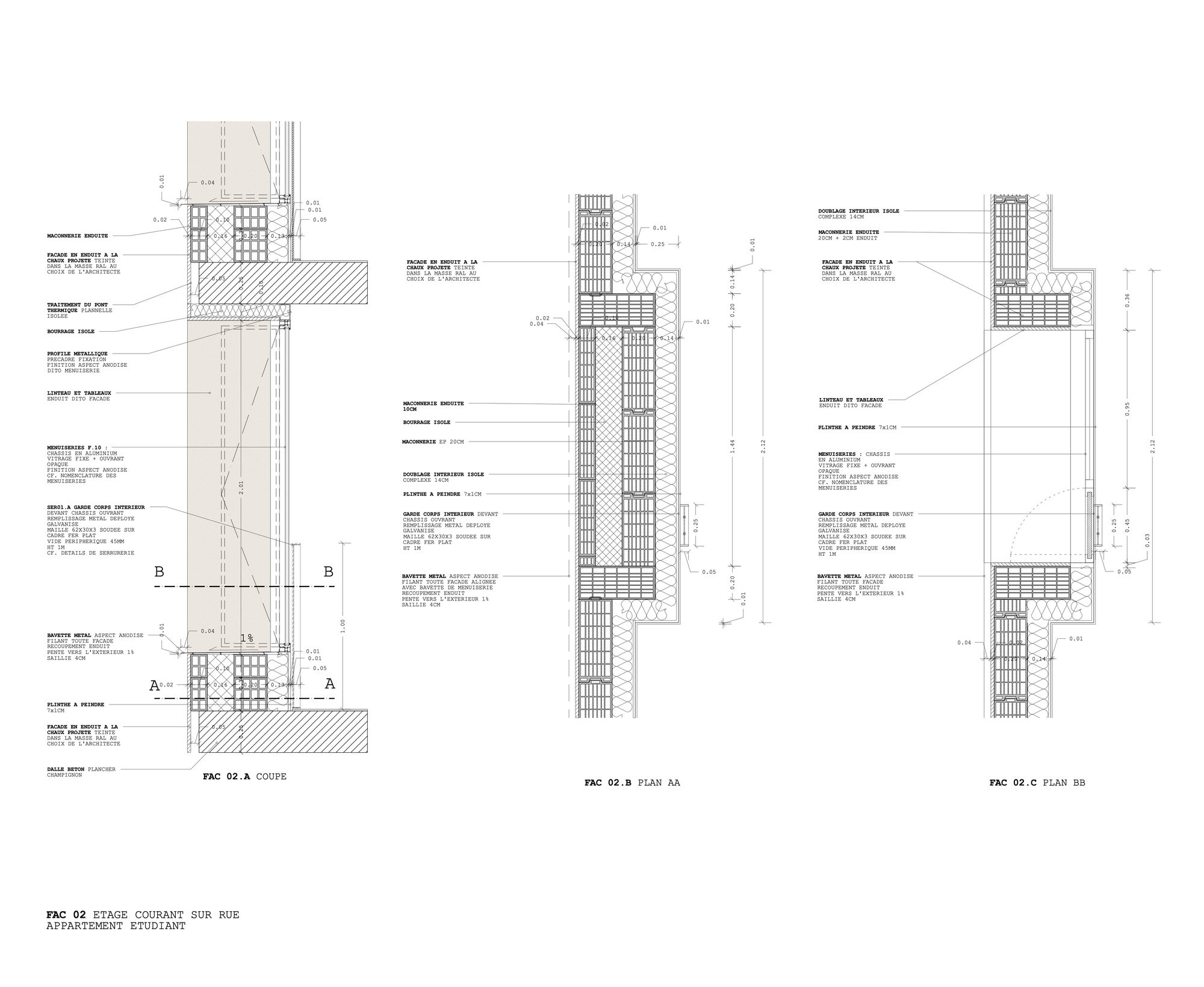
The construction is sober and is manifested by its raw materiality. To save money and highlight the constructed material as a reflection of the hand of man, we have limited the finishing materials. This choice pushed the companions to take care of each of their interventions: the concrete floors are left raw, the walls are coated with lime by a simple projection, and the electrical networks are left exposed without a false ceiling. Very few common areas need to be heated or cooled, since they are in the open air, which greatly reduces the energy consumption of the building and facilitates its maintenance. The facades are characterized by the multiplication of a single window. We accentuated their depth to create a shaded area which protects the rooms from direct sunlight and makes the thin and slender built volumes even more abstract.
The roughness of the coating on the upper floors contrasts with the smooth and generously glazed surfaces of the ground floor. Here, the reception and work spaces are very open to the street. They are connected to each other by a deep access porch which opens onto the patio. The natural light is subdued and soft, encouraging the use of the stairs and wide landings. They could become places for neighbors to meet and share, supporting varied and inventive uses.
Project Info
Architects: A6A
Country: France
Year: 2024
Photographs: Agnes Clotis
Design Team: A6A, Cetab, Borteq






























Isabelle Laurent is a Built Projects Editor at Arch2O, recognized for her editorial insight and passion for contemporary architecture. She holds a Master’s in Architectural Theory from École Nationale Supérieure d’Architecture de Paris-Belleville. Before joining Arch2O in 2016, she worked in a Paris-based architectural office and taught as a faculty adjunct at the École Spéciale d’Architecture in Paris. Isabelle focuses on curating projects around sustainability, adaptive reuse, and urban resilience. With a background in design and communication, she brings clarity to complex ideas and plays a key role in shaping Arch2O’s editorial



