La Chupalla House | Juan Carlos Sabbagh Arquitectos
La Chupalla House, The commission was for a house for a large family, requiring many bedrooms and spacious common areas.
Since there were many rooms that would eventually become unused, it was decided to separate the program, placing the children’s rooms on the second level and the parents’ rooms and their main common areas on the first level. This way, on the day the children leave the house, the parents can continue to use it in the same way without the nostalgia of seeing unoccupied spaces.
Under the same concept, the rooms on the second level were left flexible, with the possibility of being transformed for other uses according to new needs, such as converting the living room into an office or combining bedrooms to create larger guest rooms.
The lot was the first of a condominium with four houses, sloping down three meters from the street to the interior, and it was crossed by an irrigation canal, which left the space for the house in a very buried situation.
The first decision was to orient the house to the north and position it as far back as possible from the street to seek the best sunlight and visual spaciousness.
Next, it was decided to elevate the house by one meter so it wouldn’t be buried. Subsequently, three platforms were created to allow for a gradual ascent in functional spaces with the topography.
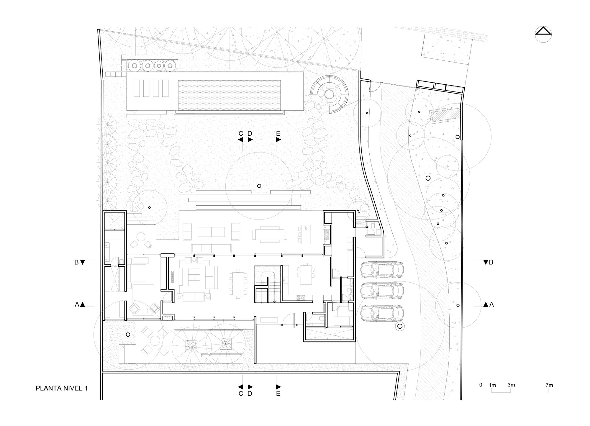
The first platform is that of the house at the lower part; then, one meter higher, the grassy area is formed, which connects with the house through a large staircase that serves as seating, expanding the terrace, and finally, the platform of the pool against the street, which, taking advantage of the elevation difference, creates a waterfall that runs its entire length towards the house.
The interior space of the first floor was designed to be completely open, with the minimum necessary walls, so it would be fully integrated with the garden.
The house was separated from its southern limit to create an access patio from the parking areas and another patio along the dining room, living room, and master bedroom, reinforcing the effect of being in the middle of the garden, as the house has complete transparency in the north-south direction.
In this last patio, a water basin was incorporated, which, thanks to the prevailing south wind in the summer that is accelerated as it passes through the house due to the Venturi effect, helps cool the interior when the sliding windows on both facades are opened.
The first level, with exposed concrete walls, supports a completely wooden volume on the second floor.
A platform made of laminated wooden beams spaced every 40 cm supports the second floor, creating a texture inside that enhances and warms the space, while also configuring an eave to the north that shades the main terrace in summer but allows sunlight to enter in winter.
The volume of the second level is made up of lightweight panels covered with a ventilated skin of thermally treated wood, and the openings have wooden slats of the same material, providing protection against the strong summer sun.
The shape of the house resembles a “Chupalla,” a straw hat typically used by rural people in central Chile, from which it gets its name.
Project Info
Architects: Juan Carlos Sabbagh Arquitectos
Country: Chile, Vitacura
Area: 400 m²
Year: 2023
Photographs: Cristobal Palma / Estudio Palma
Design Team: Trinidad Fernandez Cox
Interior Design: Tfc diseño / Trinidad Fernandez cox
Landscape Design: Area Arquitectura y paisaje / Magdalena Sabbagh Cruz
Engineering And Consulting > Structural: Ingevsa SA / Eduardo Valenzuela Sabbagh
Engineering And Consulting > Electrical: ICGSA Ingenieria Electrica / Carlos Gana Undurraga
Engineering And Consulting > Services: RyV Ingenieros / Ing. Sanitaria y mecánica de Suelos
























Tags: 2023ChileConcreteCristobal Palma / Estudio PalmaJuan Carlos Sabbagh ArquitectosLa Chupalla HouseVitacura
Anastasia Andreieva is an accomplished Architectural Projects Editor at Arch2O, bringing a unique blend of linguistic expertise and design enthusiasm to the team. Born and raised in Ukraine, she holds a Master’s degree in Languages from Taras Shevchenko National University of Kyiv. Her deep passion for architecture and visual storytelling led her to transition from translation and editorial roles into the world of design media. With a keen eye for conceptual clarity and narrative structure, Anastasia curates and presents global architectural projects with precision and flair. She is particularly drawn to parametric and digital design, cultural context, and emerging voices in architecture. When I’m not analyzing the latest architectural trends, you’ll probably find me searching for hidden gems in cityscapes or appreciating the beauty of well-crafted spaces. After all, great design—like great connections—can be found in the most unexpected places. Speaking of connections, because architecture isn’t the only thing that brings people together.














