Kunstpalast Düsseldorf Museum | Sieber Architekten
Kunstpalast Düsseldorf Museum, Built within less than one year between 1925 and 1926 according to Wilhelm Kreis’ extensive plans, the Ehrenhof contains an ensemble of cultural buildings. The perception of the Kunstpalast was previously characterized by 2 existing separate wings. Both buildings were now connected under a common name.
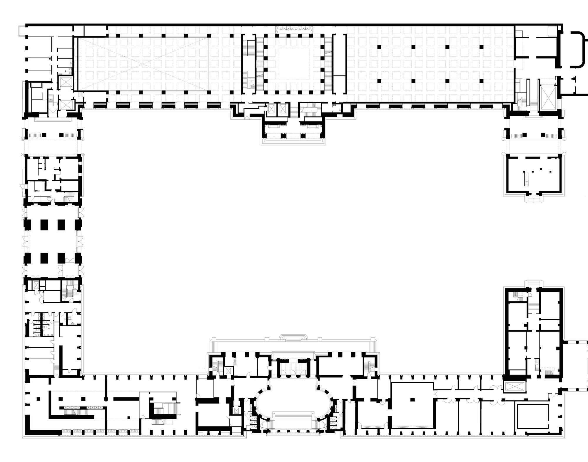
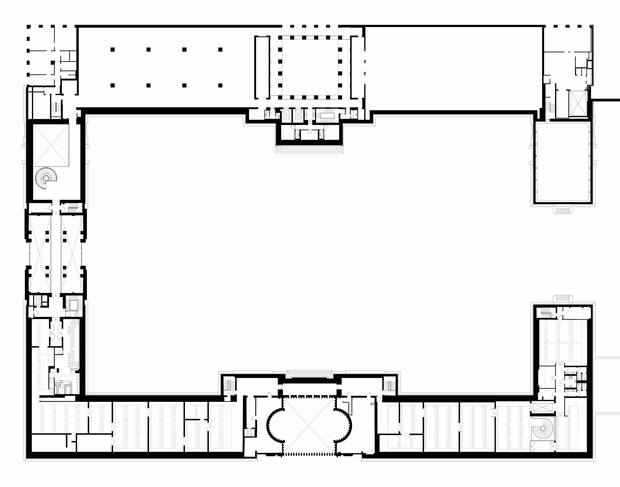
The imbalance between the exhibition wing in the east and the collection wing in the west, resulting from the demolition of the original Kunstpalast, which remained preserved behind the Kreis façade, and the subsequent new construction by Ungers in the early noughties, was exacerbated by large areas of the collection wing becoming inaccessible to the public due to water damage and structural problems. With the additional orientation of the new exhibition wing in the lower foyer to the east and the partially removed connection between the collection and temporary exhibition spaces, the two wings of the building were no longer perceptible as one unit.
When we began planning the new Kunstpalast in 2017, we aimed to ensure that the building, with its different areas, would now become a single museum in a lively urban location. The interior appearance of the building was to regain a unity that is appropriate to the overall ensemble, but without destroying the traces of time.
The relationship between the rooms is given a contemporary, appropriate form. It is not just an enfilade with hierarchically defined dominants, main, and secondary axes. Instead, it is a meandering sequence of clearly defined rooms of different sizes, which repeatedly ensures a change of direction and perspective, in the course of which carefully curated highlights are to be found: The two halls with the new spiral staircases connecting the floors of the collection, the two foyers, and the Belvedere.
Further motifs encompass the strategic placement of thematically defined special rooms, bespoke children’s rooms characterized by their distinct scale and aesthetics, as well as the targeted opening of the façade to the outside and the rooms to the inside. These placements provide visitors with orientation along their route, open views towards the Ehrenhof and the multi-story foyers, and at the same time increase the building’s complexity.
The vertical connection of both floors of the tour is made appropriate to the building through the installation of two new personnel elevators and two large spiral staircases. By closing the paths to form a circular exhibition walk and positioning the restaurant, Ehrenhof becomes an urban space. The focus of our interest was to make the Kunstpalast tangible as a building that enters into a dialogue with its outdoor space, from which the site and the building benefit equally.
To find the right balance between existing substances and newly added ones. To address and answer the question of how to deal with what previous generations left to us, and contemplate the building’s significance for its location and the community in the future.
Project Info
Architects: Sieber Architekten
Country: Düsseldorf, Germany
Area: 12 m²
Year: 2024
Photographs: Stefan Müller
Manufacturers Dinesen: Dinesen


























Sophie Tremblay is a Montreal-based architectural editor and designer with a focus on sustainable urban development. A McGill University architecture graduate, she began her career in adaptive reuse, blending modern design with historical structures. As a Project Editor at Arch2O, she curates stories that connect traditional practice with forward-thinking design. Her writing highlights architecture's role in community engagement and social impact. Sophie has contributed to Canadian Architect and continues to collaborate with local studios on community-driven projects throughout Quebec, maintaining a hands-on approach that informs both her design sensibility and editorial perspective.







