Kreg Tool Corporate Headquarters | Neumann Monson Architects

A 50,000-square-foot office and a 105,000-square-foot manufacturing facility merge into global headquarters “Kreg Tool Corporate Headquarters” for a leading pocket joinery tool manufacturer. Located on a sustainably managed 25-acre campus, the facility is master-planned to accept two-fold growth. Its design amplifies innovation and agility by deconstructing previously siloed teams.

kreg tool corporate headquarters neumann monson architects 5

© Cameron Campbell Integrated Studio

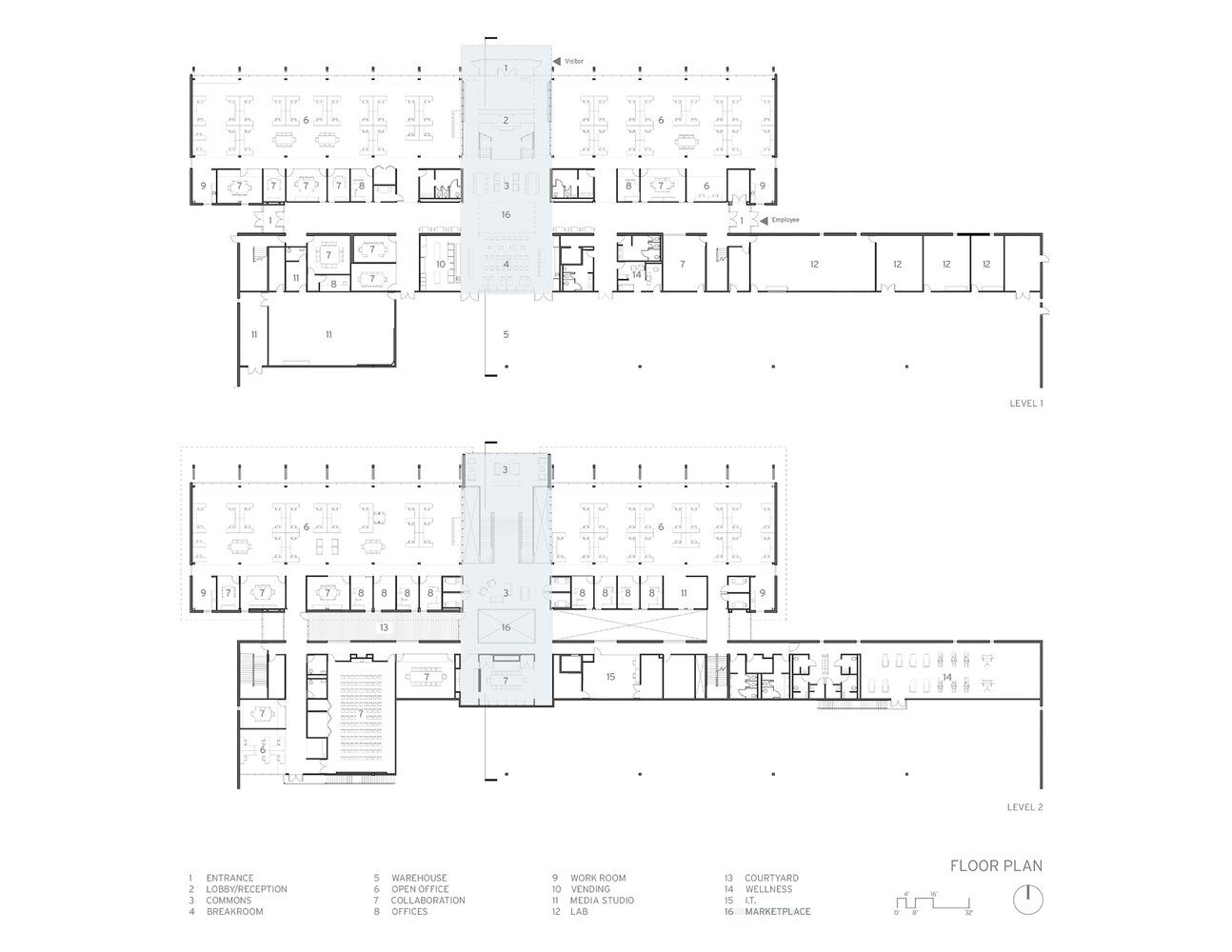
A central Marketplace serves as the facility’s “heart,” connecting its “hands” (manufacturing) with its “head” (office). Its location at the intersection of two major axes aids in wayfinding. The central stair, designed to reflect the company’s mission, promotes impromptu gatherings and serves as a platform for all-staff meetings.

kreg tool corporate headquarters neumann monson architects 9

© Cameron Campbell Integrated Studio

Throughout the facility, various formal and informal meeting spaces provide flexibility and choice. Ample daylighting, scenic views, a state-of-the-art fitness center, an outdoor walking path, and an open-air courtyard support employee wellness.

Kreg Tool Corporate Headquarters

Diagram

The office’s structure is steel framed with laminated wood and roof decks. The north façade’s full-height glazing maximizes daylight and views in the office. East and west façades are clad in a black metal rainscreen assembly with clerestory windows for additional daylight. 14ʺ x 40ʺ precast concrete panels comprise the manufacturing component’s perimeter, and a tall curtain wall provides natural light. Reducing the facility’s energy load, the warehouse roof contains a photovoltaic system.

kreg tool corporate headquarters neumann monson architects 8

© Cameron Campbell Integrated Studio

Together, the facility’s massing and materiality blur the lines between the office and manufacturing components to break down silos and represent this employee-owned company’s values. The materiality creates a balanced and pragmatic response that speaks to the company’s Midwestern roots.

Project Info:

  • Country: Ankeny, United States
  • Area: 154500 ft²
  • Year: 2021
  • Manufacturers: Delta MillworksLock-DeckMillennium FormsPDM PrecastTubelite
  • Lead Architect: Khalid Khan
  • Civil Engineering: Civil Engineering Consultants, Inc.
  • Contractor: Graham Construction
  • Structural Engineering: Raker Rhodes Engineering
  • Project Manager: Cheung Chan
  • Project Architect: Eric Neuhaus

 Khalid Khan
Arch2O.com
Logo