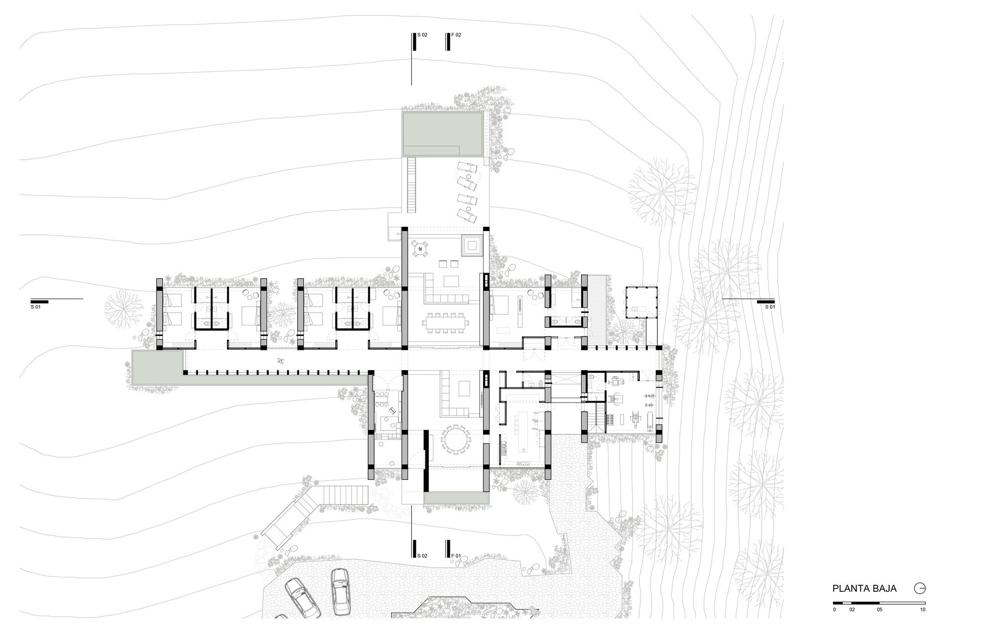
KM House, The house is defined by its close relationship with the natural environment, integrating noble materials such as wood, stone, concrete, and compacted earth. Its design seeks to emphasize light and shadow, using a rhythmic repetition of beams and columns to create a visual play throughout the day.
The layout consists of two axes: the main one where the public areas are developed, and the secondary one for the private areas, both connected by a corridor framed by pigmented concrete panels that filter light and create a series of shadows on a broken plate-style stone floor.
The repetition and contrast of patterns provide a sense of continuity and depth throughout the interior space and interact with the exterior space through visual terminations oriented towards water mirrors and landscaped areas that create spaces for contemplation and serenity.
The orientation of the house was of utmost importance to optimize the thermal comfort of the interior, which is achieved with compacted earth walls, aligned perpendicularly to the south, keeping the dwelling cool during the day by reducing direct sunlight, while at night the same walls release the accumulated heat, providing natural warmth.
Together, this work achieves a harmonious balance between materiality, light, and landscape, generating a spatial experience that invites calm and introspection, while sensitively adapting to the natural context that surrounds it.
Project Info
Architects: Grupo Lateral Arquitectura y Construcción
Country: Mexico, Los Saucos
Area: 1320 m²
Year: 2024
Photographs: Camila Cossio
Engineering And Consulting > Environmental Sustainability: Taller Híbrido
General Construction: Taller AF




























