Kayak.com Offices | ACTWO Architects

kayak.com Offices was designed by ACTWO Architects, Following the successful response to the first office design, ACTWO Architects were charged with extending the ethos of the workplace for this now well-known travel/software company.

kayak.com Offices

© Robert Benson

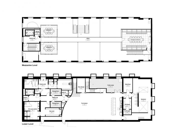
The second phase provides, on a level below the existing office, new breakout, recreational and collaboration spaces, a large sub-dividable conference room, and additional open office spaces, connected to the existing office by a new stair. This stair slices through space and dynamically transforms into a 30’ long coffee bar that focuses casual interactions between members of different teams.

kayak.com Offices

Lower Level

 The provocative color reinforces the KAYAK brand, and it juxtaposes against the varying degrees of transparency of spaces grouped close to the stair on both levels.

kayak.com Offices

© Robert Benson

Project Info:
Architects: ACTWO Architects
Type: Commercial, Office
Year: 2011
Project Name: kayak.com Offices
All Images Courtesy Of ACTWO Architects

CnT Architects
Arch2O.com
Logo
Send this to a friend