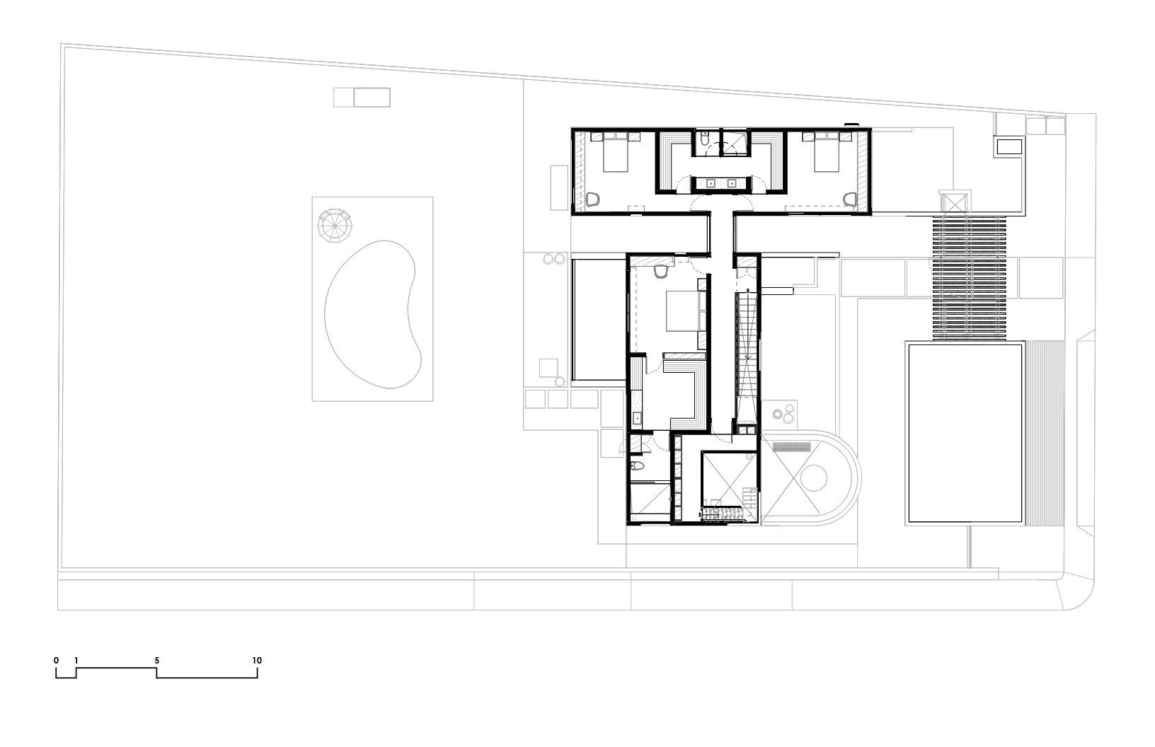
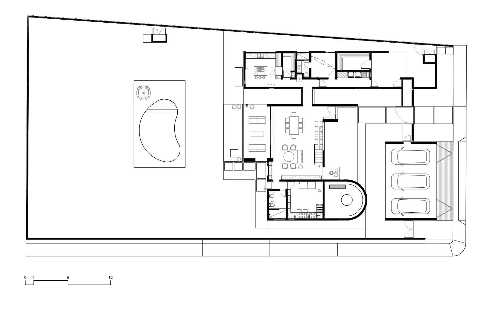
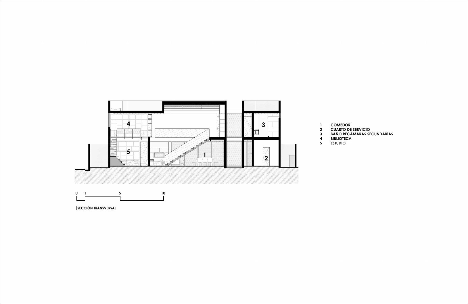
K’ab House, Located in the north and on the outskirts of Mérida, Yucatán, this family residence is a refuge of tranquility, designed on a plot of 1,226.35 m2 to take advantage of the connection with the natural environment and the serenity that comes from being away from urban hustle and bustle.
The house employs materials from the region, not only to strengthen the connection with the natural surroundings but also to respect the local climate and construction tradition.
The combination of materials that age naturally with contemporary details reflects a balance between tradition and modernity, turning each space into a sensory experience that is constantly changing. The project, in its essence, is a residence of authentic character that evolves over time, organically adapting to its context and providing a unique experience for its inhabitants.
The volumetry, inspired by the textures and colors of the Yucatecan soil, is constructed with rustic-finished concrete blocks in muted terracotta tones. This color not only adds character but also evokes the red dirt paths of the region, contrasting allusively with the vibrant green of the lush vegetation and the deep emerald cenotes.
The volumes create a play of light and shadow that transforms each space into an area of contemplation, contributing to an experience of warmth and serenity.
The use of bone and pane glass in specific exterior windows adds a contemporary and refined touch to the design, allowing for direct visual interaction with the outside and maximizing the entry of natural light. These glass details offer wide and clear views of the surroundings, contributing to an atmosphere of openness and transparency that aligns with modern concepts of openness and visual connection.
The project bets on architecture in constant transformation; the carefully selected materials will change over time, giving the design an evolving and vibrant aesthetic. The facades and structural elements use materials that acquire natural patinas, making the residence visually transform in harmony with the environment and local climatic conditions.
In tune with sustainability, the residence employs solar panels for electrical power, promoting sustainable development and harnessing clean energy.
The result is an architectural project that integrates nature, technology, and culture to offer a living experience in harmony with the environment.
Project Info
Architects:Lessmore Group
Country: Mexico, Mérida
Area: 421 m²
Year: 2023
Photographs: Eduardo Loeza
Design Team: Joel Ordoñez
General Construction: Taller de Construcción




































