John M. Harper Branch Library & Stork Family YMCA | Teeple Architects
John M. Harper Branch Library & Stork Family YMCA, This mixed-use Library and Community Recreational facility posed the challenge of bringing together two diverse programs – and the needs of two diverse clients – to create an enhanced community experience. The desire was to create a single integrated facility in which the program elements interact and elevate each other through a series of strategic architectural gestures.
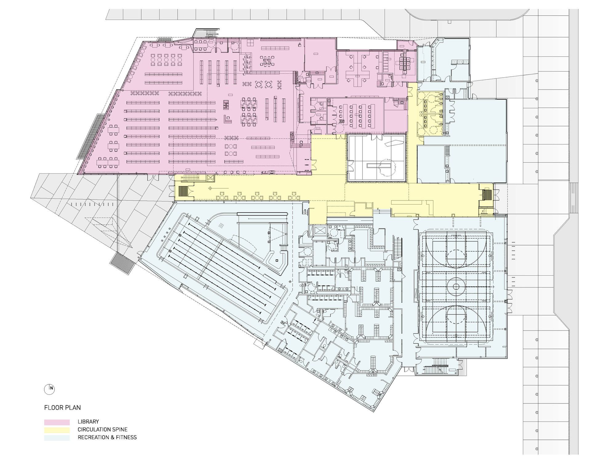
The library interior includes children’s, teen and adult study spaces and stacks as well as flexible group learning and community areas. A large computer research area allows for both recreational and advanced academic study to take place.
The design incorporates the latest ideas in pro-active customer service, with a small circulation desk and service points located within the service area itself. A diagonal ‘street’ through the customer service space creates the natural path of traffic from the entrance to each service area. An enclosed courtyard brings natural light into the interior and provides an alternative study space.
The LEED Silver-targeted project sought to minimize environmental impact, especially in order to mitigate the high-energy demands of the pool. Extensive daylighting was central to the design concept, creating an efficient, bright and interconnected space. Among many strategies, the building employs displacement ventilation, green and white roofs, local, recycled and low-VOC materials, on-site storm water management, and waste diversion strategies.
Project Info:
Architects: Teeple Architects
Location: Ontario, Canada
Area: 60000.0 ft2
Year: 2011
Type:Â Cultural Center
Photographs: Shai Gil , Scott Norsworthy
Structural Engineers:Â Halcrow Yolles
Landscape Architects:Â Fleisher Ridout Partnership Inc.
Civil Engineers:Â Planning and Engineering Initiatives Ltd.
Mechanical Engineers:Â Smith + Andersen
Electrical Engineers:Â Smith + Andersen
Project Team:Â Stephen Teeple, Eric Boelling, Maryam Mohajer, Christian Joakim, Robert Cheung
Associate Architect:Â Garwood-Jones & Hanham Architects
Exhibit Consultant:Â Reich + Petch Design International
Leed Consultant:Â Enermodal Engineering
LEED:Â Silver (certified)

























Tags: 2011CanadaConcreteCultural CenterFSJohn M. Harper Branch Library & Stork Family YMCALibraryOntarioScott Norsworthy PhotographySteelTeeple Architects





