Designed by BAK Architects, The 20m x 30m plot of land in the coastal Mar Azul forest in Buenos Aires, Argentina is the site for BAK Architects’ JD House, a residence designed in concrete, wood, and glass and blended into the topography and vegetation on the site. The preliminary specifications for the house required two bedrooms, two bathrooms, and a large, flexible social area, integrated into the kitchen, that could accommodate different activities for the guests that are expected to visit. The client also specified that generous outdoor expansions were available on the site.
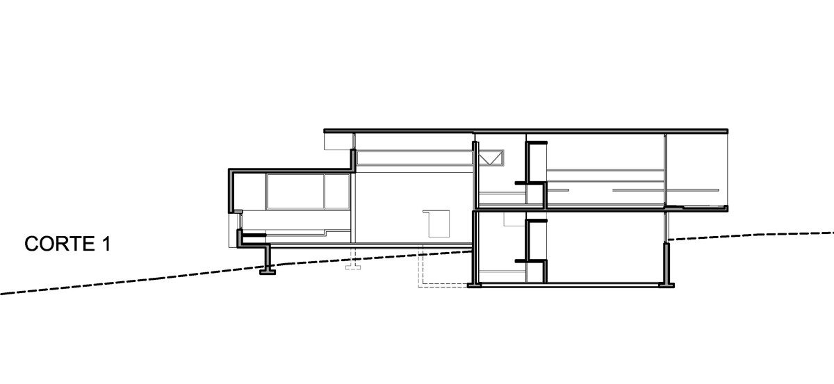
The land on which the house is situated follows a gentle slope that provided a welcome challenge for the design of the house. In relationship to the street level, the house sits very high above the ground in order to adjust to the level changes on the site. This provides a heightened condition of privacy, as passersby are less able to see into the house from the street, and a vantage point from which the inhabitants can view out onto the landscape over neighboring houses.
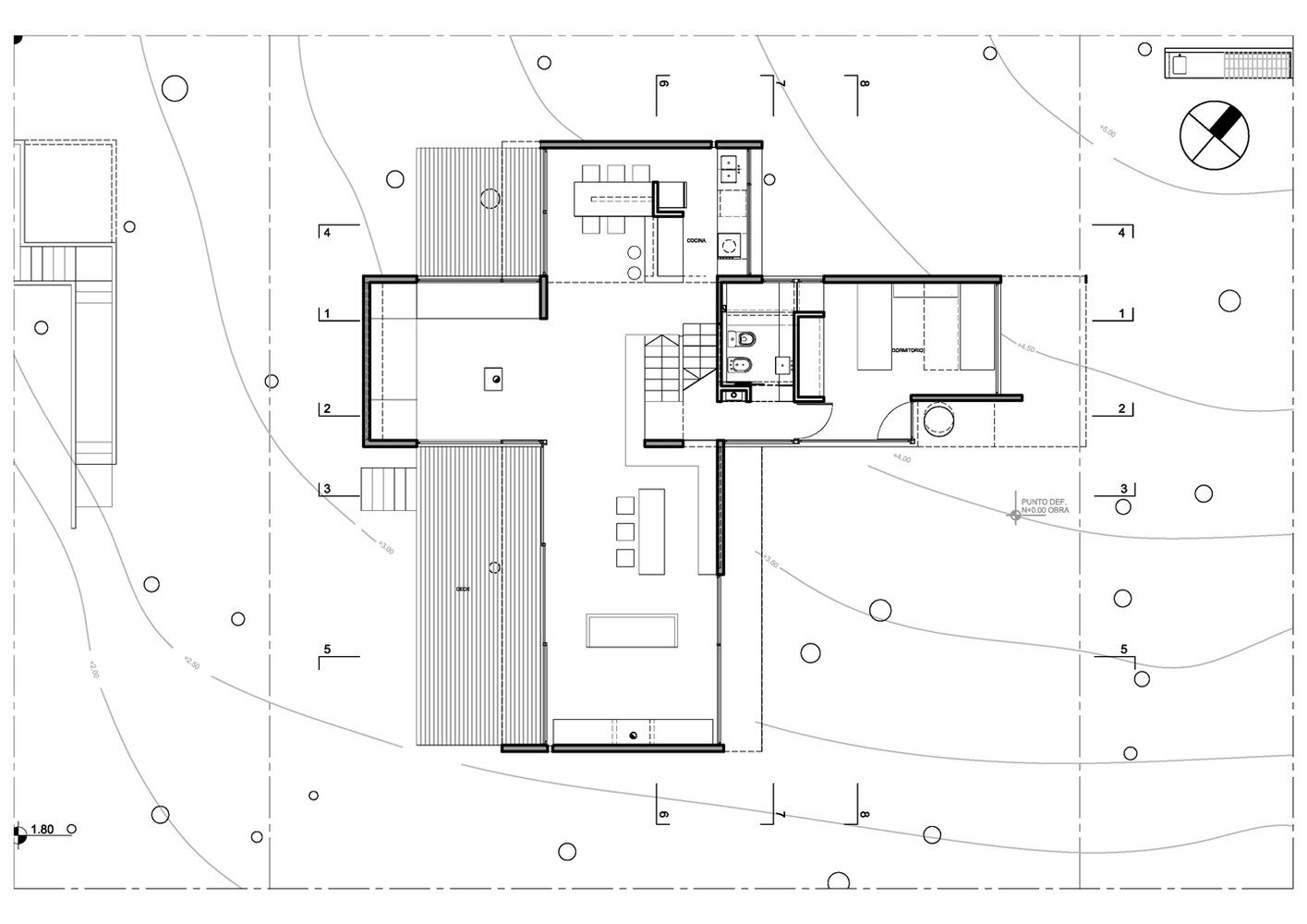
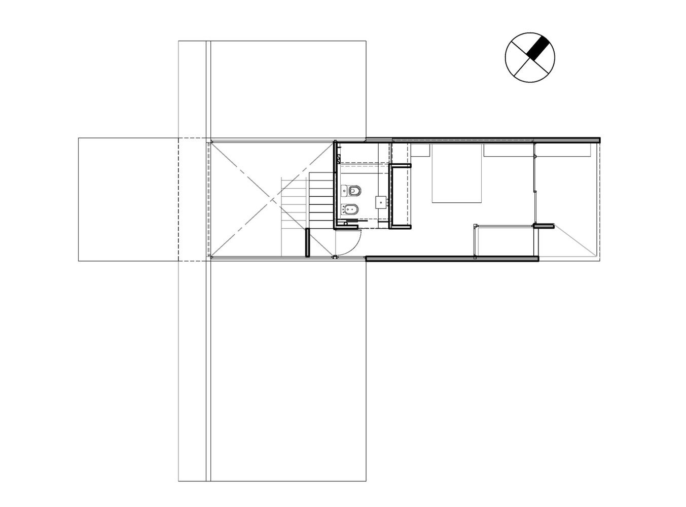
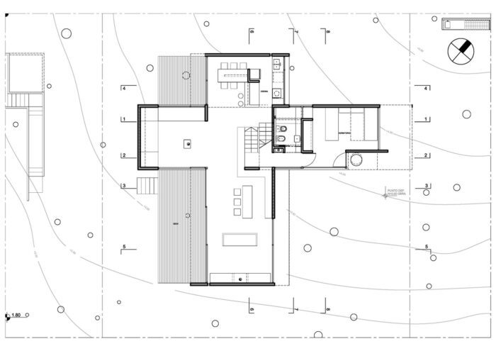
The house was conceived as two pure prisms, located in a clearing among trees of various heights, as intersecting perpendicular forms that joined at half levels. The slope was once again used to the advantage of the proposal to hide parts of the program, thereby reducing the presence of the building on the site. The form that developed from the conjoining of the volumes resulted in programs that were substantially independent of one another, but united through large openings in the social gathering spaces as well as through outdoor terraces and wooden decks that extended the living space out into the forest.
The house is accessed along the longest side through a deck that is raised above the natural terrain. By stepping the deck into a complete volume of the house and creating a corner as the entrance, BAK Architects simulated an interior condition in the exterior of the residence, where already the material and spatial organization is felt. The height difference perceived in the entry intentionally signify the different uses of the spaces caused by the intersections of the prisms.
The architects play with the volumes, alternating between high and low ceilings and depressed floors to provide a dynamic space of a variety of functions. The level of transparency through the house is equally as important as the opacity of the gray concrete walls. The views through the house direct its users’ eyes onto the landscape beyond the house, whereas the concrete walls direct light and provide organized views within the house. While the house is visually open, the architects took great care to create private areas, such as bedrooms and bathrooms, that are nestled and buried under the general “ground level” of the house. The architects were careful to leave as many salvageable trees on the site as possible allowing them to pierce through several of the outdoor decks that are an extension of the house.
The three basic materials of the house are exposed concrete, glass, and wood, as well as the natural decorative elements of the surrounding forest. H21 concrete was used with the addition of a plasticizer to the mix with little amounts of water used to harden, resulting in a very compact material that does not require sealing. The few hollow brick interior walls are finished in smoothing cement. The heating system, since there is no natural gas in the area, was resolved with a system that combines salamander, bottled gas stoves and electric heaters.
Project Info:
Architects: BAK Architects
Location: Villa Gesell, Argentina
Floor Area: 149 m2
Area: 600.0 m2
Project Year: 2009
Photographs: Gustavo Sosa Pinilla
Project Name: JD House

































Tags: 2009ArgentinaBAK ArchitectsBrickBuenos AiresConcreteGlassGustavo Sosa PinillainhabitantJD HouseVilla GesellWood






