James Cook University | Wilson Architects + Architects North
Designed by Wilson Architects + Architects North, James Cook University identified a need to upgrade its Townsville Campus to provide improved student services and to support contemporary methods of teaching and learning. In so doing, it had the opportunity to create an environment that better reflected JCU’s tropical identity and to build a stronger sense of community among the staff and students.
How can we begin to rethink a university campus based on community and its places particular climate of its place?
Authentically talking with students and staff really helps. The first step was a comprehensive research program including staff and student interviews, and area and use studies of the whole university campus.
The research covered all areas of the student experience including how they wanted to interact with each other, what kinds of learning support they preferred, what kinds of services they needed and how they wanted to access them, right down to how they wanted to feel when they are on campus. These insights became the basis of a plan to revitalize the campus with the James Cook University Education Central at its heart.
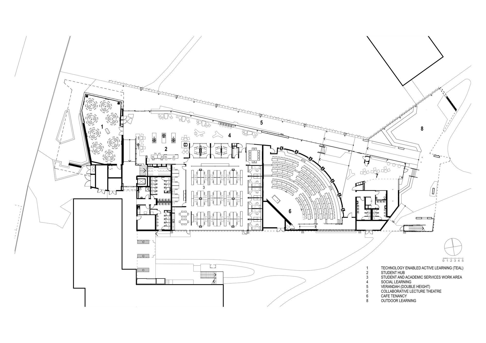
The Student Hub is the new front door to the James Cook University. It follows a student-led / staff-assisted model of service that was developed specifically for JCU. Based on the latest retail service models, students have a choice of service points (from self-service to fully assisted), and access to interview rooms and pods, and flexible furniture. Staff moves around the space providing help as needed.
As well as the student services center, the building contains large-scale active learning spaces, including technology, Enabled Active Learning (TEAL) room, collaborative lecture theatre, wet and dry teaching spaces, peer-to-peer learning area, outdoor learning area, coffee shop and diverse social learning areas. These larger, more flexible spaces, encourage peer-to-peer learning and extend learning beyond the traditional classroom environment.
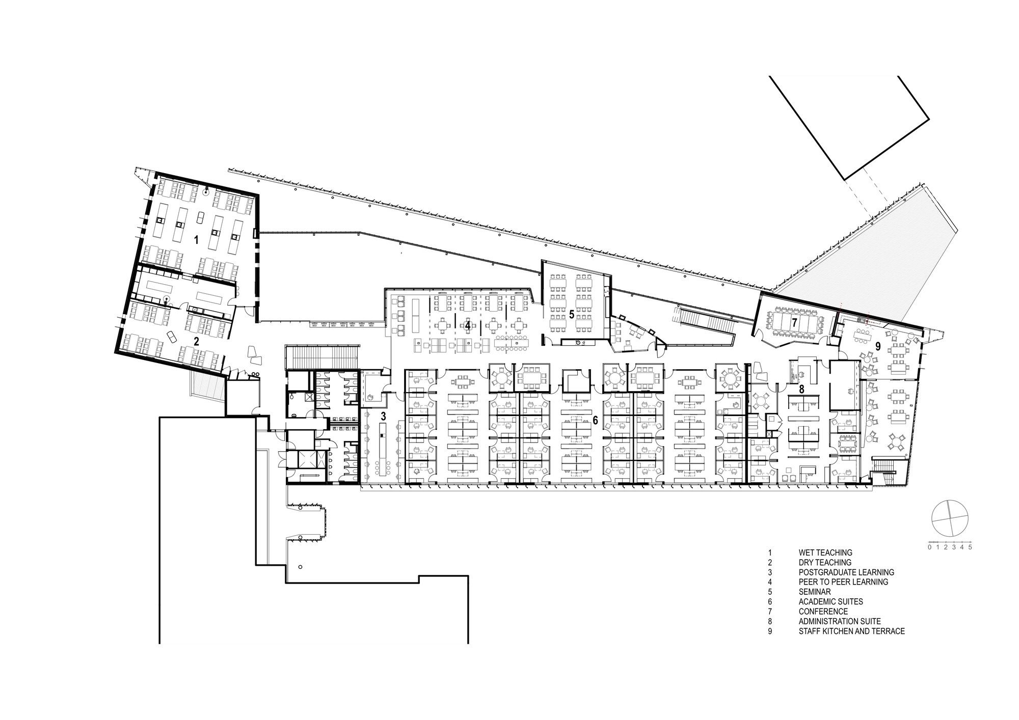
Dedicated School of Education zones also includes academic and postgraduate suites and administration work areas. A staff lounge/lunch area is included on the Eastern end of the building and is accessible by all Student Services and School of Education staff. This adjoins an outdoor terrace, with views back across the creek to the Library.
Project Info:
Architects: Wilson Architects, Architects North
Location: Townsville QLD, Australia
Wilson Architects Team: Hamilton Wilson, Shaun Purcell, Sarah Russell, Boon Tan, Janelle Gildea, Alisha Renton, Sasha Hakimian, John Thong
Architects North Team: David Stefanovic, Selma Okanovic, Amanda Kempthorne
Project Year: 2013
Photographs: Christopher Frederick-Jones
Project Name: James Cook University



































Tags: Architects NorthChristopher Frederick-JonesConcreteJames Cook UniversitySteelTownsville QLDUniversityWilson ArchitectsWood
Ruba Ahmed, a senior project editor at Arch2O and an Alexandria University graduate, has reviewed hundreds of architectural projects with precision and insight. Specializing in architecture and urban design, she excels in project curation, topic selection, and interdepartmental collaboration. Her dedication and expertise make her a pivotal asset to Arch2O.







