Intergenerational Housing Coop Milieu de l’Île | Pivot coopérative d’architecture

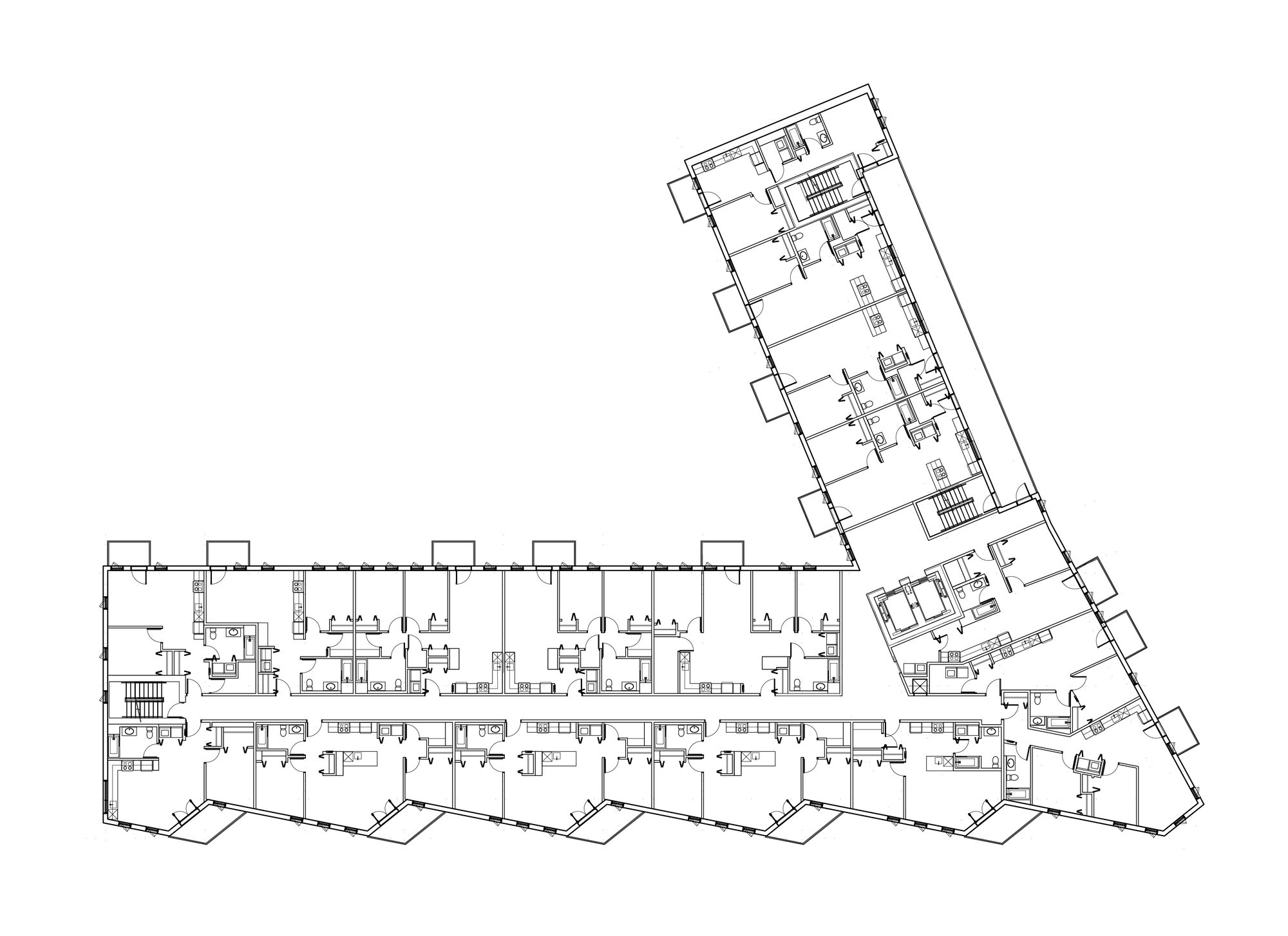
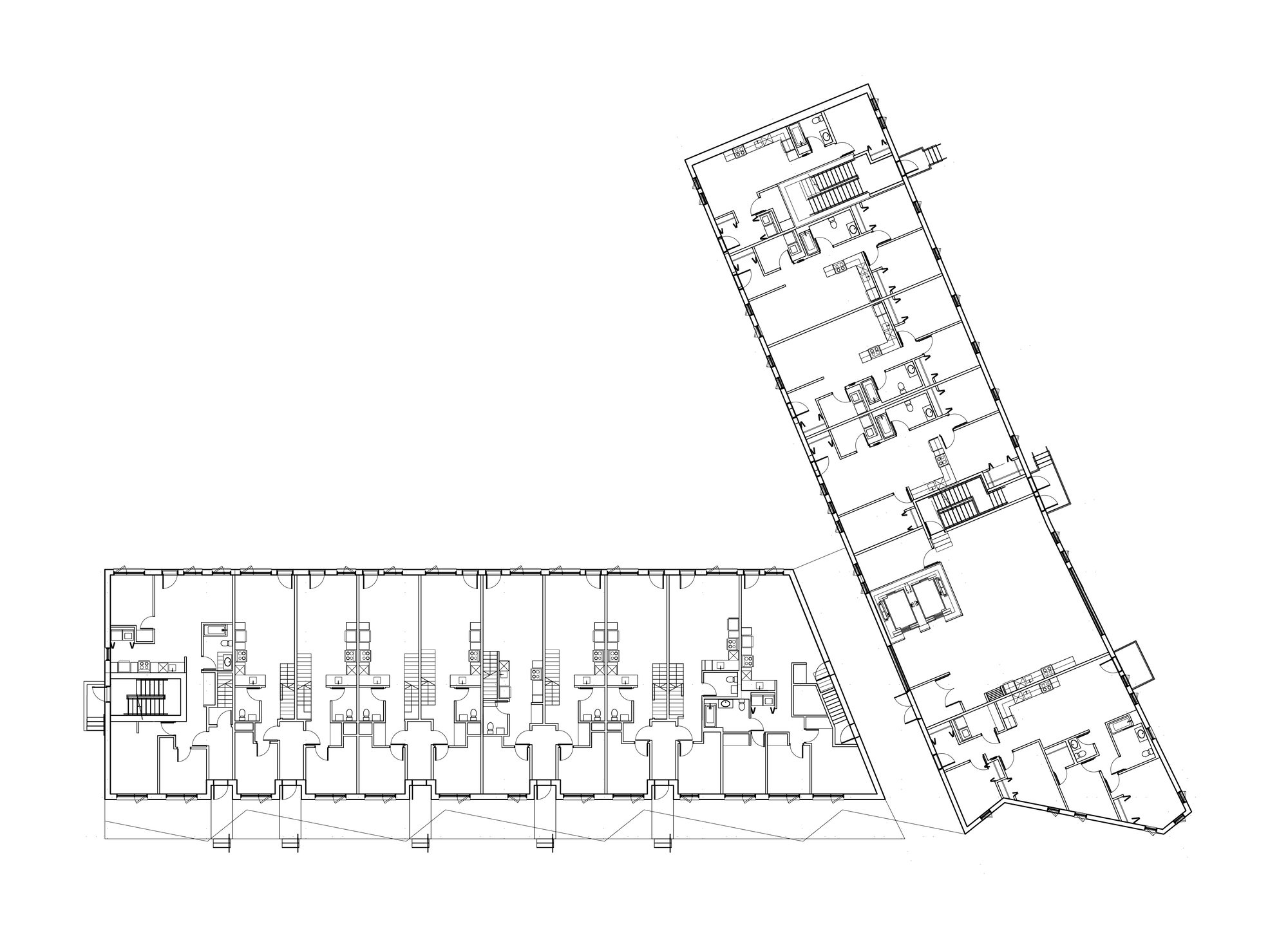
Intergenerational Housing Coop Milieu de l’Île, Located in a newly developed Montreal district, Coop Milieu de l’Île is a 91-unit intergenerational housing cooperative, born from a group of committed citizens seeking to address the city’s housing crisis by creating affordable, off-market housing.

© Annie Fafard

The design process was informed by a series of workshops with the coop’s founding members and future residents. These codesign workshops helped to determine the future residents’ priorities and desires while beginning to establish a sense of community.

© Annie Fafard

The project combines residents’ aspirations with an architectural approach consistent with the urban fabric, interacting with the neighboring buildings’ various scales. The project consists of two interlocking volumes: a two-story brick section of family units maintains the human scale of the surrounding residential areas, while a white six-story metal section evokes the scale of nearby university campus buildings. This combination mirrors the additive logic of neighboring industrial buildings, constructed through successive extensions, often with different materials and building technologies.

© Annie Fafard

The sculpted metal facades envelop the building’s balconies, maximizing views while protecting privacy and optimizing solar orientation. The resulting angles are reminiscent of rhythmic industrial elements: factory roofs, silos. The brick volume feels like a pre-existing foundation, from a different time, to which the metal volume has been added later. At the heart of the project, copper surfaces emerge where sections of the volumes have been hollowed out to accommodate common areas. This symbol of the coop’s collective energy spills out into the neighborhood through a porte-cochere.

© Annie Fafard

Located right in the center of a LEED AQ-certified neighborhood, Coop MIL exceeds energy performance standards. Bioclimatic strategies were put in place to improve residents’ well-being. Cross-ventilation was maximized, and a Canadian well was installed under the courtyard floor to preheat the building’s air supply.

© Annie Fafard

This project not only establishes a sustainable community, but it also provides stability, acting as an antidote to the speculative real estate market that fuels the housing crisis. It brings residential construction back to its original purpose: creating places to live and inhabit.

Project Info
Architects: Pivot coopérative d’architecture
Country: Canada, Montréal
Area: 1525 m²
Year: 2024
Photographs: Annie Fafard
Design Team: Pivot coopérative d’architecture
Engineering & Consulting > Structural: Poincaré
Engineering & Consulting > Mechanical: Groupe CÉMEC
Engineering & Consulting > Electrical: Groupe CÉMEC
Landscape Architecture: Fauteux et associés
General Constructing: Consortium M.R.

Pivot coopérative d’architecture
Arch2O.com
Logo