Indoor Rock Climbing | W. Meraner – M. Mutschlechner
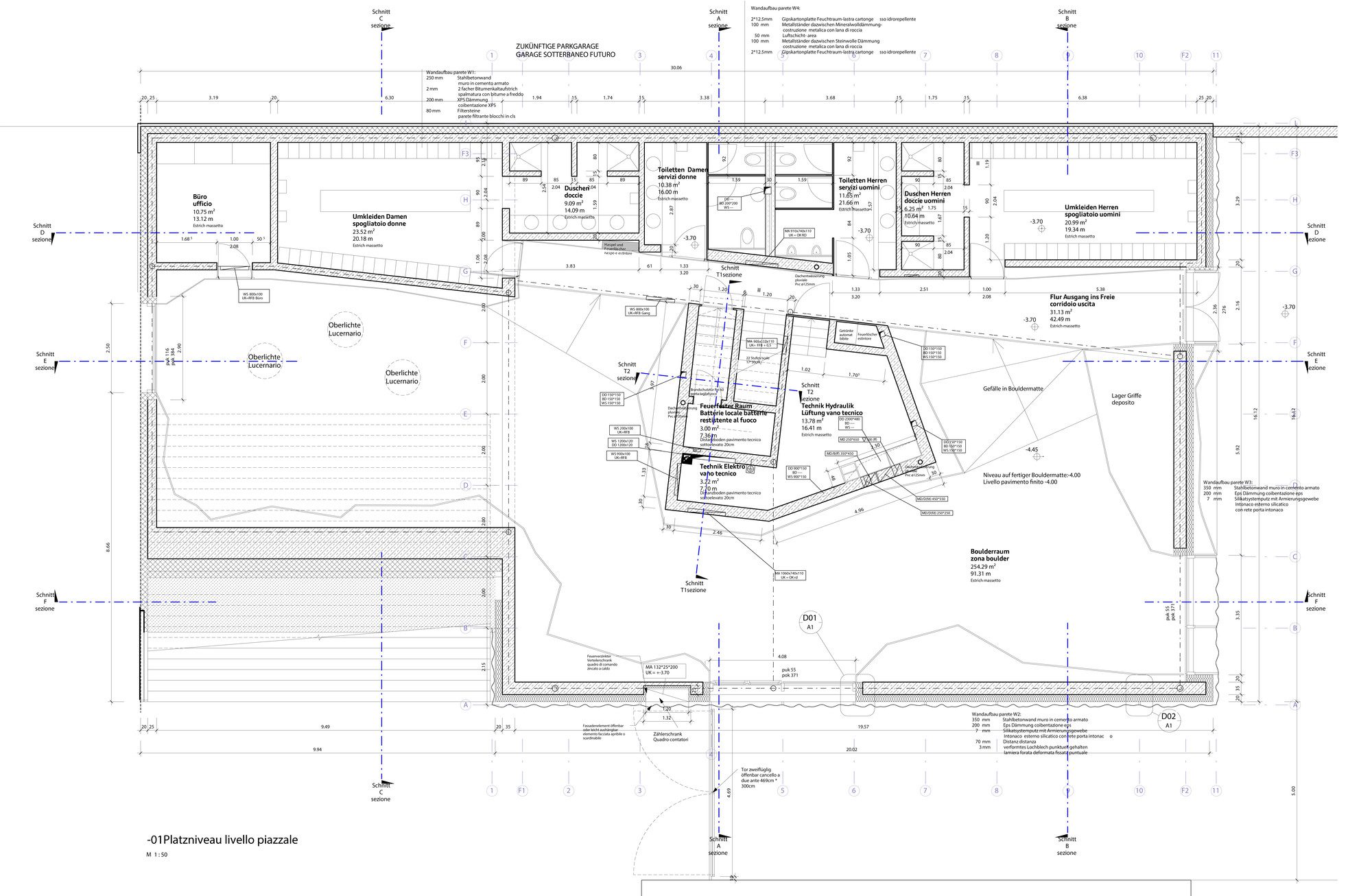
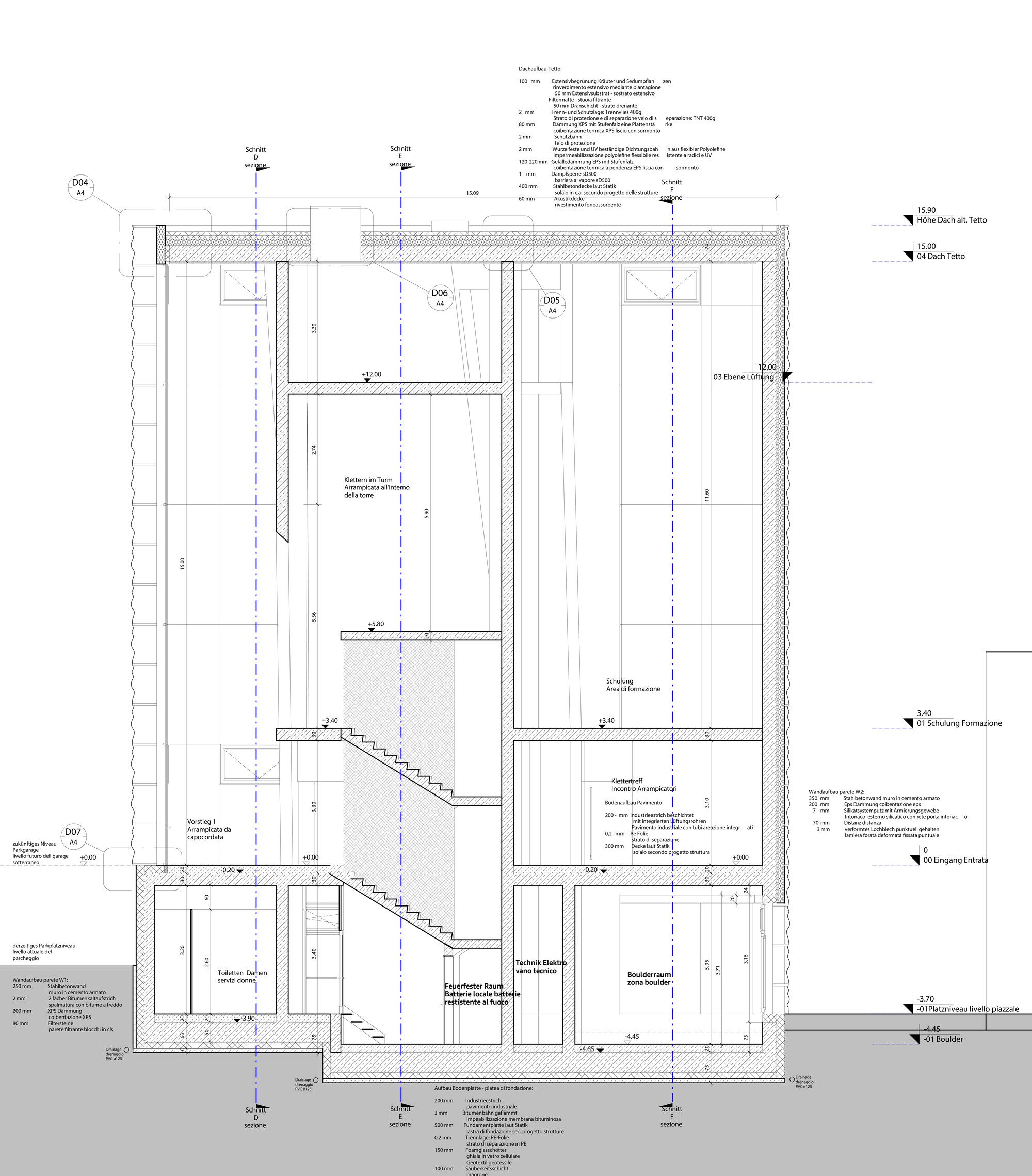
The indoor rock climbing hall in Brixen arises close to the historic center and is therefore – compared to other similar sport infrastructures – designed with a high aesthetical and artistical claim. Nature and landscape are transported into the building through a transparent façade design; at the same time, the inside remains visible to the outside. The multi-layer facade creates a moiré effect, generating always new impressions for the moving observer and both the users inside as also the viewer outside in a dynamic relationship to the climbing gym provides. In the planning of the climbing Hall, ecological aspects and sustainability were essential.
Be due a detailed planning and a sophisticated climate concept with multi-layer assembled façade, ventilation or heat storage by intermediate zones in the facade construction, as well as creation of mass storage in the building.
With the use of solar energy, the seasonal changing façade envelope and natural ventilation and exhaust, a mechanical cooling is not necessary and results in a significant cost savings for construction and operating costs. Tapping into the climbing hall is South-facing from the new town square, facing north from the upper City Park a connection to the new underground car park is provided; the disabled access guarantees also the use for therapeutic purposes.
The open design of the climbing hall with free allows the look outwards on Park and square, as well as inward on the entire Hall standing climbing towers. The climbing technical concept makes the Hall suitable for sport climbers and recreational climbers, for training and competition.“
Project Info
Architects: W. Meraner – M. Mutschlechner
Country: Brixen, Italy
Year: 2012
Photographs: G.R. Wett












































Sophie Tremblay is a Montreal-based architectural editor and designer with a focus on sustainable urban development. A McGill University architecture graduate, she began her career in adaptive reuse, blending modern design with historical structures. As a Project Editor at Arch2O, she curates stories that connect traditional practice with forward-thinking design. Her writing highlights architecture's role in community engagement and social impact. Sophie has contributed to Canadian Architect and continues to collaborate with local studios on community-driven projects throughout Quebec, maintaining a hands-on approach that informs both her design sensibility and editorial perspective.




