iHouse Dormitory
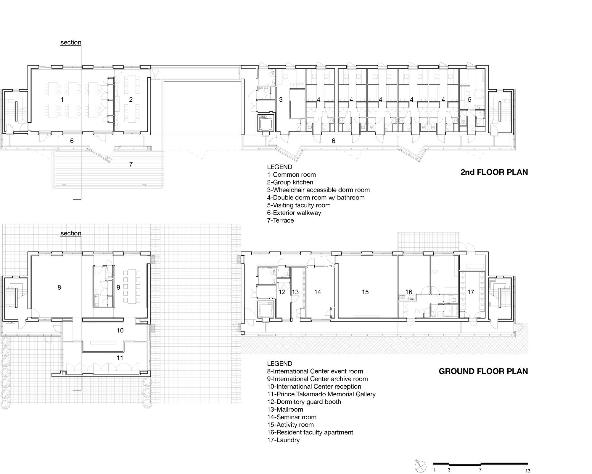
As Japan copes with a declining population, universities are trying to attract an increasingly international student body for both long and short term stays. This dormitory and International Center for approximately 140 international students efficiently houses, educates, and integrates a population that is both culturally and economically diverse through a collection of shared public spaces and rooms that range from singles and doubles with private baths, to rooms sleeping four with shared bathing facilities. These shared rooms allow JIU to offer accommodations for as little as $80/month and are particularly geared towards students of modest means from emerging Asian and Eastern European countries. The building is sited along the main access road to the university on the edge of an expanse of rice fields. It is comprised of a 9-meter wide dormitory bar that hovers over the International Center that projects out to engage the landscape.
The International Center is comprised of a gallery, archive room, and event space in memory of the late Prince Takamado who helped broker the Japan/Korea partnership that hosted the 2002 World Cup. JIU maintains a close relationship with the Takamado family. One enters the building off the campus road through a void in the bar that separates the two programs on the ground level.
A louvered surface interspersed with projecting balconies masks exterior walkways that serve the dormitory rooms facing out over the rice fields beyond. Multiple sliding glass doors open onto the walkways, recalling the ‘engawa’ space of traditional Japanese houses. The provision of shared spaces, the walkway, and balcony system expand the compressed living space into the outdoors.
The most conspicuous material is the aluminum louver the makes up the south façade. We used horizontal louvers with three different dimensions. They are attached each with the maximum cantilever from the vertical support to create a woven pattern to comprise a unified façade to the public, and shaded walkways with a dynamic play of light for the inhabitants.
Project Info
Architects : Studio SUMO
Location : Chiba Prefecture, Japan
Year : 2016
Type : Residential/ Mixed use/ Educational
Photographs : Kawasami Kobayashi Photograph Office, Kudoh Photography Ltd.



























