Hydrothermal Center ‘Aquavox’ | Otxotorena
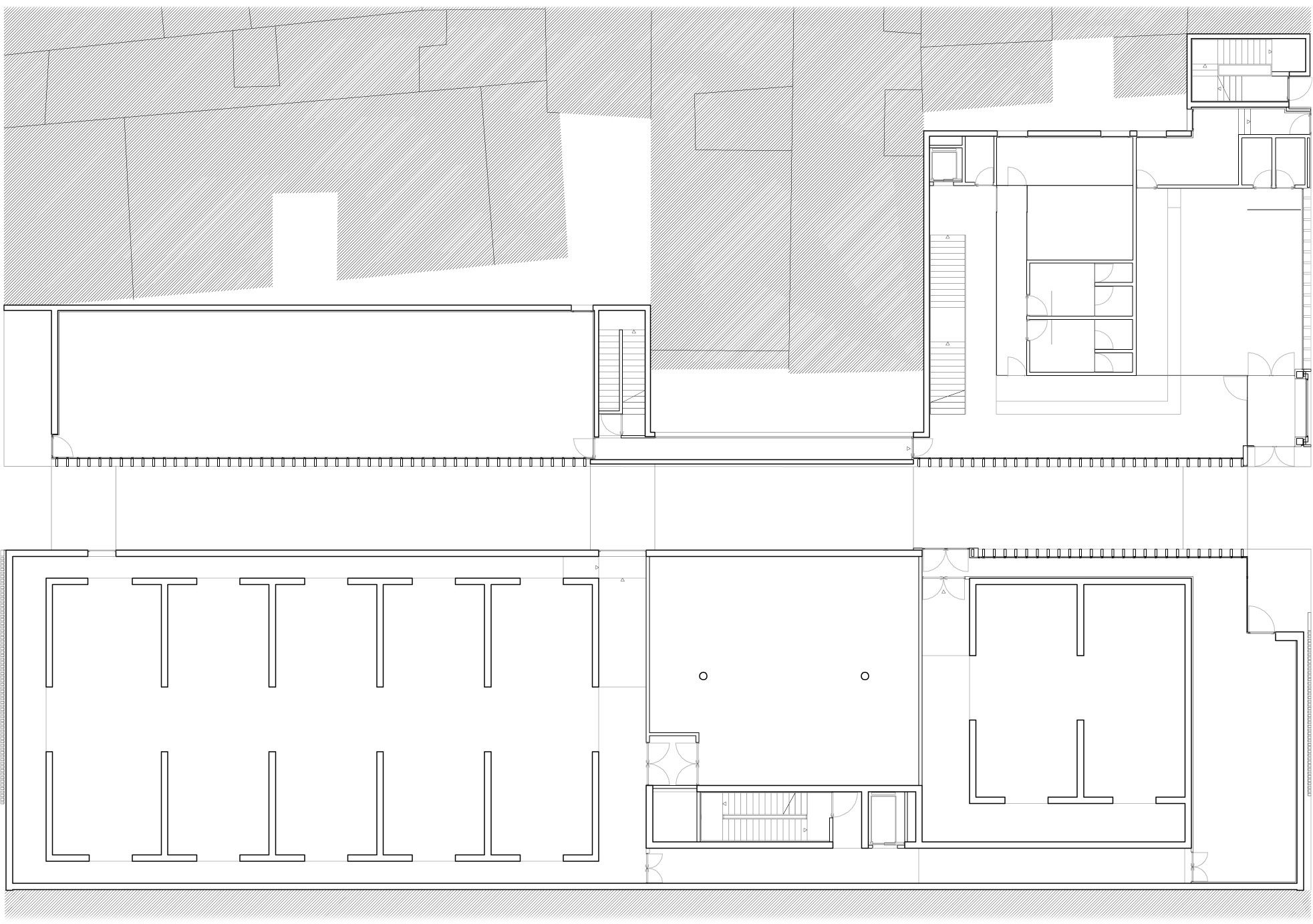
Hydrothermal Center ‘Aquavox’ is located in the old town of Pamplona. It is initiative and municipally owned. And the charge of the project occurs once the team of architects who was awarded the corresponding supports public competition, in January 2005. The site is located on San Agustin street, and had been emptied during the demolition of the old pediment ‘Euskal Jai’, after its acquisition by the Town Hall for the construction of this building. The plot crosses one of the blocks built the Old Town, so it has: two facades opposing parallel streets and two mediator sides, consisting of a straight side wall of the old pediment, and a more irregular one with different volumes that breaks into patios of adjoining buildings. Beyond the general determinations concerning the alignment and flights of the plot, the Special Plan of Protection and Internal Reform of the Old City prescribed for it the introduction of a passage or an inside lane of longitudinal development, perpendicular to both streets. The project obviously follows these guidelines, while it tries to be sensitive to the way in which the construction affects the neighbouring buildings, responding with the opening of patios or possible setbacks to some of the most committed situations arising in the scope of the implantation.
In this framework, in short, the project relies on two main arguments. First, the design revolves around the effort to obtain sufficient and attractive natural light for all the spaces inside the building, trying to make a virtue out of necessity, given the difficulties and constraints of the site. And secondly, it starts from a principle of sectoring of the volume according to longitudinal batches perpendicular to the streets, trying to follow the guidelines issued by the PEPRI, it follows the idea that governs the approach of the section of the main block building as a compact section that brings together and relates those areas of greatest significance and size.
The idea entails, in fact, the provision of a large linear container that evokes the volume of the old pediment itself, crosses the plot from side to side and accumulates the spaces of biggest entity of the necessity program, and especially the general pools related to thermal applications, to which it wants to provide an extraordinary degree of attractiveness and comfort. She can give these spaces not necessarily uniform heights and, where appropriate, higher than the minimum set for a conventional plant. It also facilitates the functional, spatial and visual intercommunication. The scheme, in any case, rests on the existence of the huge dividing wall emerged with the demise of the old pediment: it seemed advisable to support against it real entity’s spaces, able to dispense with natural lighting and ventilation of the front and views lateral that makes impossible.
It is, after all, a building divided into two parts by an interior road, crossed in upper bounds by overpasses that communicate both parts. The two sides of the volume are defined by the alignment of the interior road, in line with the elementarism of the guidelines to generate volumes of the historical city itself, which in turn facilitates their reading, comprehension and control. The facades of the two parts of the building to the inside lane that crosses it consistently open to it through holes and extensive treatments of an ambitious level of transparency on the one hand, try to solve the needs of natural lighting and ventilation of interior spaces, and secondly, are intended to provide amenity, interest and attraction to passengers.
Moreover, the design is governed by the aim of achieving maximum clarity and efficiency in the organization of the circulation, within the difficulties arising from the peculiarity of implantation: it highlights perhaps, in this regard, the versatility and flexibility of operation of the changing area of the building, that can aptly respond to the demands of order and comfort of users that go to each of the two key functional areas of the building, hydrothermal and gyms, located on the best possible way regarding the path of their travels.
Project Info
Architects: Otxotorena
Country: Pamplona, Spain
Area: 4454 m²
Year: 2009
Photographs: Courtesy of Otxotorena









































Madeline Brooks is a Projects Editor at Arch2O, where she has been shaping and refining architectural content since March 2024. With over a decade of experience in editorial work, she has curated, revised, and published an array of projects covering architecture, urbanism, and public space design. A graduate of the Harvard University Graduate School of Design, Madeline brings a strong academic foundation and a discerning editorial eye to each piece she oversees. Since joining Arch2O, she has played a pivotal role in shaping the platform’s editorial direction, with a focus on sustainability, social relevance, and cutting-edge design. Madeline excels at translating complex architectural ideas into clear, engaging stories that resonate with both industry professionals and general readers. She works closely with architects, designers, and global contributors to ensure every project is presented with clarity, depth, and compelling visual narrative. Her editorial leadership continues to elevate Arch2O’s role in global architectural dialogue.





