Huilongguan Sports and Cultural Center | DAQI ARCHITECTS, China Architecture Design & Research Group
The project is located in the large urban residential area of Huilongguan in Beijing and includes two functional sections: a sports and fitness center and a cultural and arts center. The completion of the project addresses the lack of cultural and sports facilities in the high-density residential area of Huilongguan and is one of the key projects of Beijing’s “Huitian Action Plan.” The project serves 55 surrounding communities, benefiting over 400000 people. In conjunction with the sports park to the north, it aims to create an “open and inclusive” indoor and outdoor activity space for citizens. The project integrates the concept of development into the venue planning, providing a high-quality space for cultural and sports activities for the regional residents.
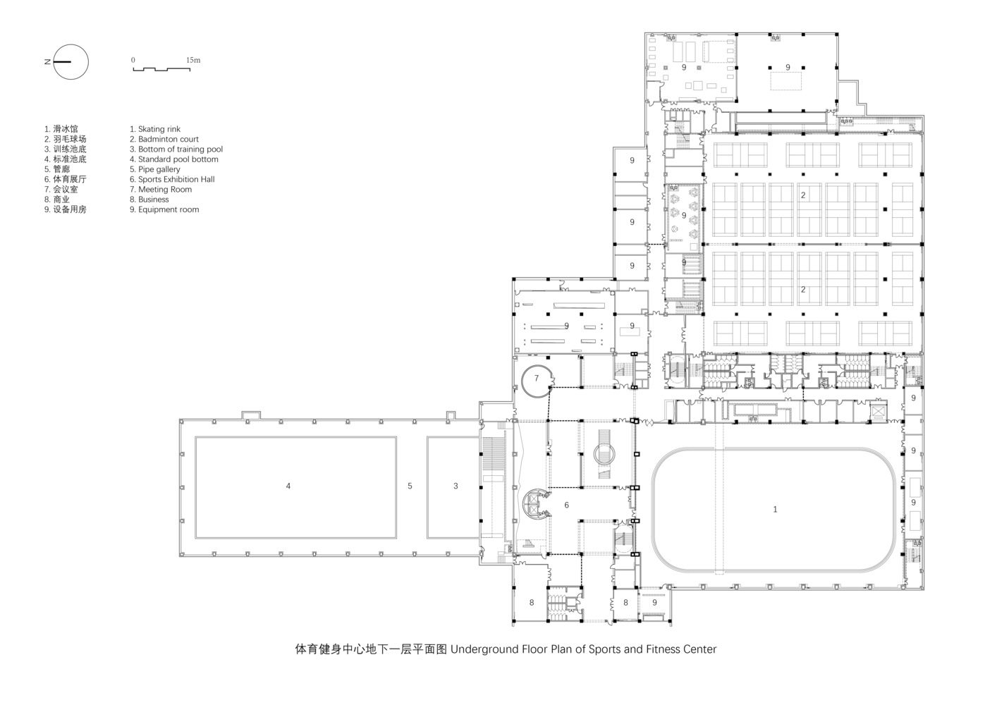
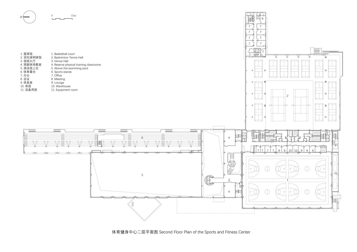
The total construction area of the project is 95842 ㎡, with 44314 ㎡ above ground and 51528 ㎡ underground. The sports and fitness center covers about 38,000 ㎡ and includes 11 types of sports facilities such as badminton halls, ice skating rinks, climbing gyms, swimming pools, table tennis halls, basketball courts, tennis courts, gyms, boxing gyms, archery ranges, and athletics fields, as well as digital exhibition halls like the “cockpit.” The cultural and arts center covers about 25000 ㎡, encompassing a grand theater, a small theater, a cultural center, a library, a bookstore, dining and entertainment, and a third space, among other formats. Additionally, it is designed with a 400-meter standard outdoor sports field, creating a comprehensive sports and cultural park that is fully equipped, ecologically green, and smart.
The library integrates exhibition, reading, cultural creation, and social functions. The four-story atrium space introduces the greenery of the northern sports park indoors, creating a comfortable and lush atmosphere. At night, the tall glass curtain wall resembles a giant lantern, illuminating the city’s cultural life.
The theater area includes a grand theater with 816 seats and a small theater with 288 seats, capable of hosting concerts, musicals, dramas, and conferences. The interior of the grand theater features a white pleated decorative style for acoustic and visual unity, with an immersive three-dimensional listening experience achieved through acoustic design. The red seats and white walls complement each other.
The buildings on the site are of moderate size, with multi-level indoor and outdoor corridors, platform squares, and slope greening organically connecting the multi-functional architecture. The integration of indoor and outdoor spaces fills the venue with vitality, achieving a harmonious coexistence of architecture and nature. The buildings are oriented towards different functional entrances, facing the public with an open attitude.
The project uses a steel structure frame, large-span steel trusses, and a double-layer grid system. The library area features a 18-meter-high cable curtain wall, with the upper truss cantilever reaching 7 meters. The innovative structural system ensures safety and reliability while achieving spectacular spatial effects. The project has an assembly rate of 100%, with the mechanical and electrical system using a system separate from the structural body. BIM technology is applied throughout the design, production, and construction processes.
The architectural planning and design adhere to the principles of simplicity, practicality, and economy, in line with the concept of green building in the new era. The design widely adopts passive green building design methods, setting up skylights, high side windows, and strip windows for lighting, as well as various ventilation facilities for the transition season, effectively improving the building’s lighting and ventilation efficiency, enhancing indoor environmental quality, reducing building energy consumption, and realizing the design concept of green buildings. The exterior walls of the building use light gray, wood-like concrete panels, combined with large areas of glass curtain walls at key points, to create an open and elegant venue for civic activities in the new era.
The total construction area of the project is 95842 ㎡, with 44314 ㎡ above ground and 51528 ㎡ underground. The sports and fitness center covers about 38,000 ㎡ and includes 11 types of sports facilities such as badminton halls, ice skating rinks, climbing gyms, swimming pools, table tennis halls, basketball courts, tennis courts, gyms, boxing gyms, archery ranges, and athletics fields, as well as digital exhibition halls like the “cockpit.” The cultural and arts center covers about 25000 ㎡, encompassing a grand theater, a small theater, a cultural center, a library, a bookstore, dining and entertainment, and a third space, among other formats. Additionally, it is designed with a 400-meter standard outdoor sports field, creating a comprehensive sports and cultural park that is fully equipped, ecologically green, and smart.
The library integrates exhibition, reading, cultural creation, and social functions. The four-story atrium space introduces the greenery of the northern sports park indoors, creating a comfortable and lush atmosphere. At night, the tall glass curtain wall resembles a giant lantern, illuminating the city’s cultural life.
The theater area includes a grand theater with 816 seats and a small theater with 288 seats, capable of hosting concerts, musicals, dramas, and conferences. The interior of the grand theater features a white pleated decorative style for acoustic and visual unity, with an immersive three-dimensional listening experience achieved through acoustic design. The red seats and white walls complement each other.
The buildings on the site are of moderate size, with multi-level indoor and outdoor corridors, platform squares, and slope greening organically connecting the multi-functional architecture. The integration of indoor and outdoor spaces fills the venue with vitality, achieving a harmonious coexistence of architecture and nature. The buildings are oriented towards different functional entrances, facing the public with an open attitude.
The project uses a steel structure frame, large-span steel trusses, and a double-layer grid system. The library area features a 18-meter-high cable curtain wall, with the upper truss cantilever reaching 7 meters. The innovative structural system ensures safety and reliability while achieving spectacular spatial effects. The project has an assembly rate of 100%, with the mechanical and electrical system using a system separate from the structural body. BIM technology is applied throughout the design, production, and construction processes.
The architectural planning and design adhere to the principles of simplicity, practicality, and economy, in line with the concept of green building in the new era. The design widely adopts passive green building design methods, setting up skylights, high side windows, and strip windows for lighting, as well as various ventilation facilities for the transition season, effectively improving the building’s lighting and ventilation efficiency, enhancing indoor environmental quality, reducing building energy consumption, and realizing the design concept of green buildings. The exterior walls of the building use light gray, wood-like concrete panels, combined with large areas of glass curtain walls at key points, to create an open and elegant venue for civic activities in the new era.
Project Info:
-
Architects:Â DAQI ARCHITECTS, China Architecture Design & Research Group
- Country: China
- Area: 95842 m²
- Year:Â 2023
-
Photographs: Ji Li


















































