Houthaven Blok 0 – Plots 8 & 9 | Marcel Lok_Architect
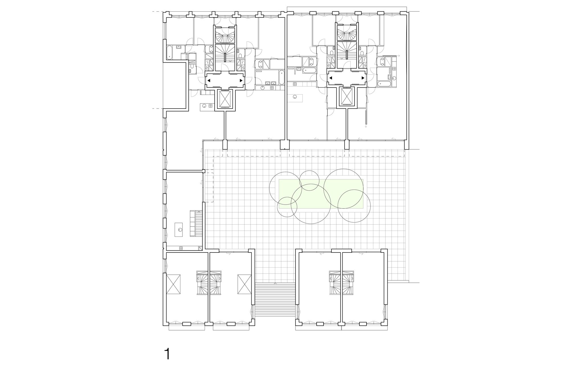
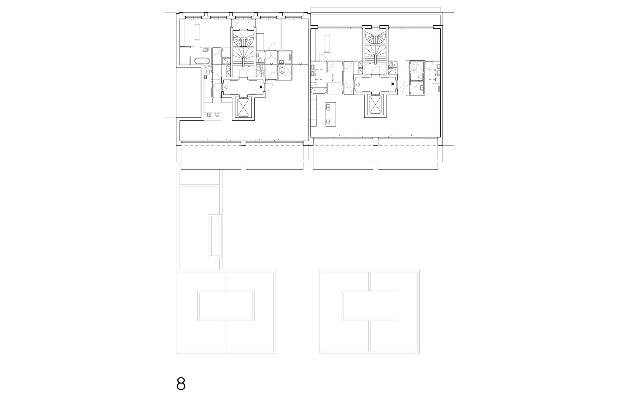
Houthaven Blok 0 in the Amsterdam western harbour area is the final piece of the long-term development of the southern side of the river IJ in the Dutch capital. The completion of blok0 (block 0) yields the first phase of developing the Houthaven. As part of blok0 the project IJ4you covers the final plots 8 and 9, the southern end part of this ‘superblock’. The complex consists of a 9-layered building with apartments at the Haparandaweg and a 4 to 5-layered building part with apartments to the quay of the future Houthavenkade. In developing this project, the future residents have maximum impact on the layout and the final elaboration of the houses. Each apartment is tailored differently and individually designed for its residents.
The building encloses a double layered parking garage with a collective roof garden on top. Because of the wide and open surroundings of the location at the IJ and the industrial character of the port area, the choice was made for a robust materializing of the façades and a restrained detailing. The corner block is designed in an industrially manufactured brick with a clear brick grid of vertical and horizontal layers with an apparent depth. The block attached is designed in a natural limestone with horizontal cantilevered edges. On the city side façade, floor-to-ceiling aluminium sliding window frames and wide balconies give a terrific view over the city and the river IJ.
The quay apartments include a private roof terrace and are directly orientated towards the street because of floor-to-ceiling folding window frames on the ground floor level. The roof garden is accomodated with a wide variety of trees, such as the ‘Prunus dulcis’. This communal inner court is accessible from the attached apartments, as well as from the Houthavenkade by a broad stairway. The inner court is a representation of the inner courts with the connected traditional neighbourhood of the adjecent Spaarndammerbuurt, famous for its monumental Amsterdam School social housing complexes.
Project Info
Architects: Marcel Lok_Architect
Country: The Netherlands, Amsterdam
Area: 20971 m²
Year: 2015
Photographs: Luuk Kramer
Engineer: Pieters Bouwtechniek
Client: Building4you Developments
Gross Floor Area: 6.762 sqm
Usable Floor Area: 4.186 sqm
Design Team: Marcel Lok, Freddy Koelemeijer, Coen Smit, Niels Westmeijer, Nadine der Kinderen


































Isabelle Laurent is a Built Projects Editor at Arch2O, recognized for her editorial insight and passion for contemporary architecture. She holds a Master’s in Architectural Theory from École Nationale Supérieure d’Architecture de Paris-Belleville. Before joining Arch2O in 2016, she worked in a Paris-based architectural office and taught as a faculty adjunct at the École Spéciale d’Architecture in Paris. Isabelle focuses on curating projects around sustainability, adaptive reuse, and urban resilience. With a background in design and communication, she brings clarity to complex ideas and plays a key role in shaping Arch2O’s editorial



