House of Music II|Coop himmelb(l)au
The house of music by Coophimmelblau is organized on the concept of synergy and exchange while recognizing the independence of the individual blocks within the complex. It was designed in 2008 as part of a master plan by the same architects. As a cultural complex it groups together a number of spaces that will make the center a hotspot for cultural activity among artists,students and educators.
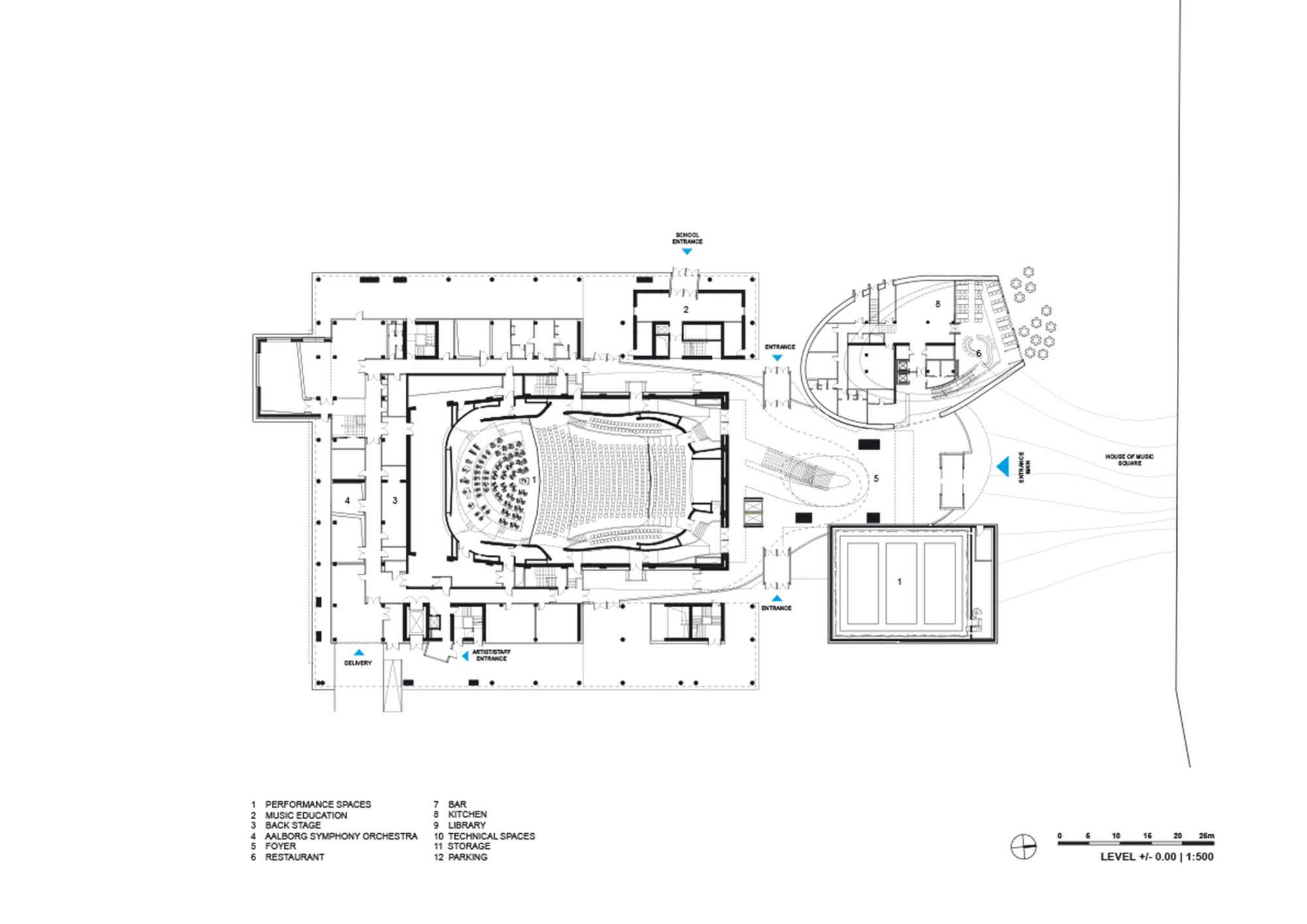
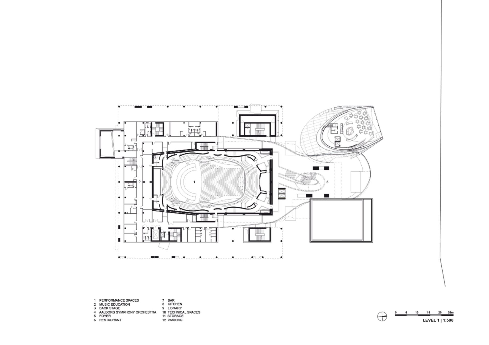
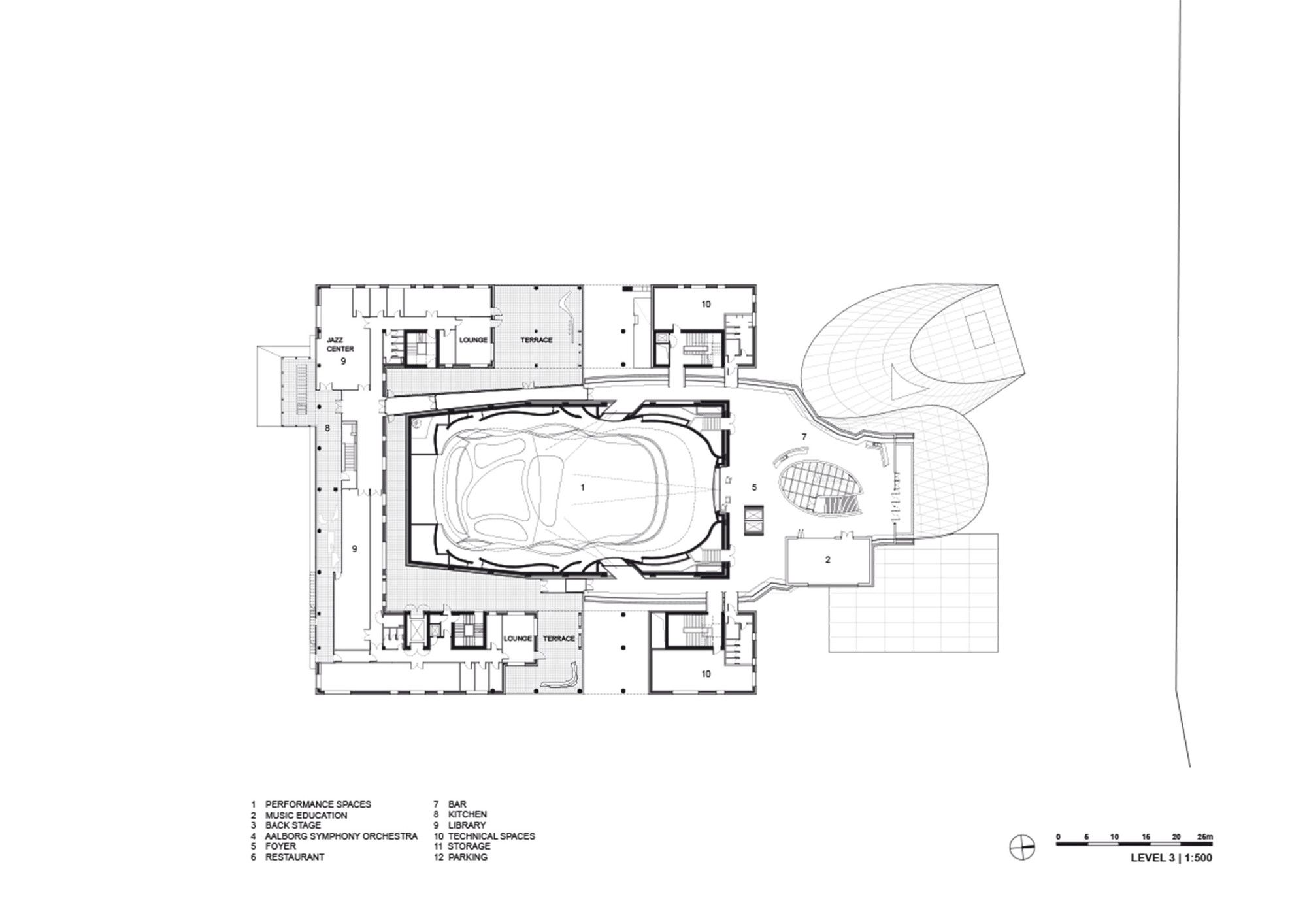
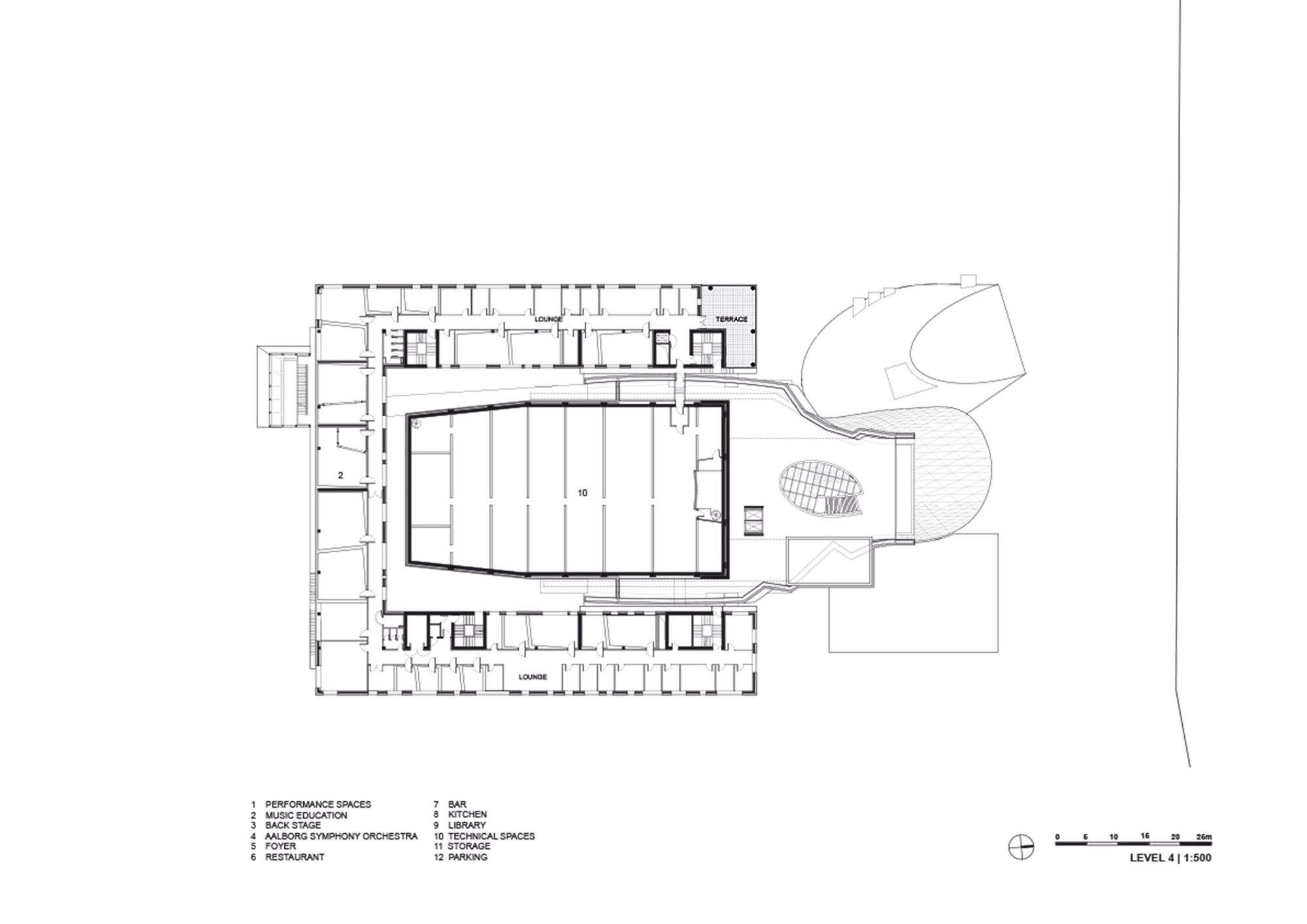
The core of the complex is occupied by the 1,300 seats concert hall that has additional rooms for practice and education. Three adjacent halls of different sizes add up to space for practice.
Interior spatial organization has the central concert hall as core connected by the foyer to a U-shaped educational complex placed over the backstage facilitate a courtyard scheme. This arrangement allows for maximizing natural light and views. This also allows for each of the institutions to have separate entrances and circulations thus maintaining their independence.
This complex, the House of Music defines the eastern edge of the cultural plaza of the master plan which is linked to the city center by a number of buildings and opens along the promenade down to the fjord. The House of Music is set to be a cultural icon in Aalborg.



























Madeline Brooks is a Projects Editor at Arch2O, where she has been shaping and refining architectural content since March 2024. With over a decade of experience in editorial work, she has curated, revised, and published an array of projects covering architecture, urbanism, and public space design. A graduate of the Harvard University Graduate School of Design, Madeline brings a strong academic foundation and a discerning editorial eye to each piece she oversees. Since joining Arch2O, she has played a pivotal role in shaping the platform’s editorial direction, with a focus on sustainability, social relevance, and cutting-edge design. Madeline excels at translating complex architectural ideas into clear, engaging stories that resonate with both industry professionals and general readers. She works closely with architects, designers, and global contributors to ensure every project is presented with clarity, depth, and compelling visual narrative. Her editorial leadership continues to elevate Arch2O’s role in global architectural dialogue.
