House J is located in the western part of Beijing, perched high in the mountains. To the north lies Fragrant Hills Park (Xiangshan Park), while to the east, the view opens toward Yuquan Mountain, offering broad and expansive vistas. The owner of the residence spent more than a decade living abroad. The flowers and trees planted in the courtyard years ago remain lush and vibrant. Alongside them, untended wild grass has grown freely, while the red brick exterior walls and the weathered metal surfaces of the sunroom are fragments of a bygone era.
The original house sat on the north side of the garden. An oversized central hall dominated the interior space, compressing the bedroom and living spaces on the second and third floors. The protruding balcony had been turned into a enclosed sunroom, which blocked a significant amount of natural light. The excessive depth of the building trapped much of its floor area in shadow.
The structure of the owner’s family changed over the past ten years. The children have grown and started their adult lives. The old layout no longer suits their current lifestyle. Family members now live scattered across different countries, while the desire for togetherness across generations has grown stronger. The owner longs for a space that is bathed in light, offers a sense of enclosure, yet remains relatively independent. In the meantime, they also dream of”dwelling among mountains with just a slice of garden to call their own.”
The northern edge of the site faces the road, with a height difference of up to 1.5 meters from the southern side. The east-facing side garden gently slopes down by over half a meter from north to south. The overall design strategy takes advantage of these subtle yet continuous elevation changes. By corresponding to different shapes, scales, light conditions, and dynamics of human life, they become a source of differentiated spatial expressions in the new design.
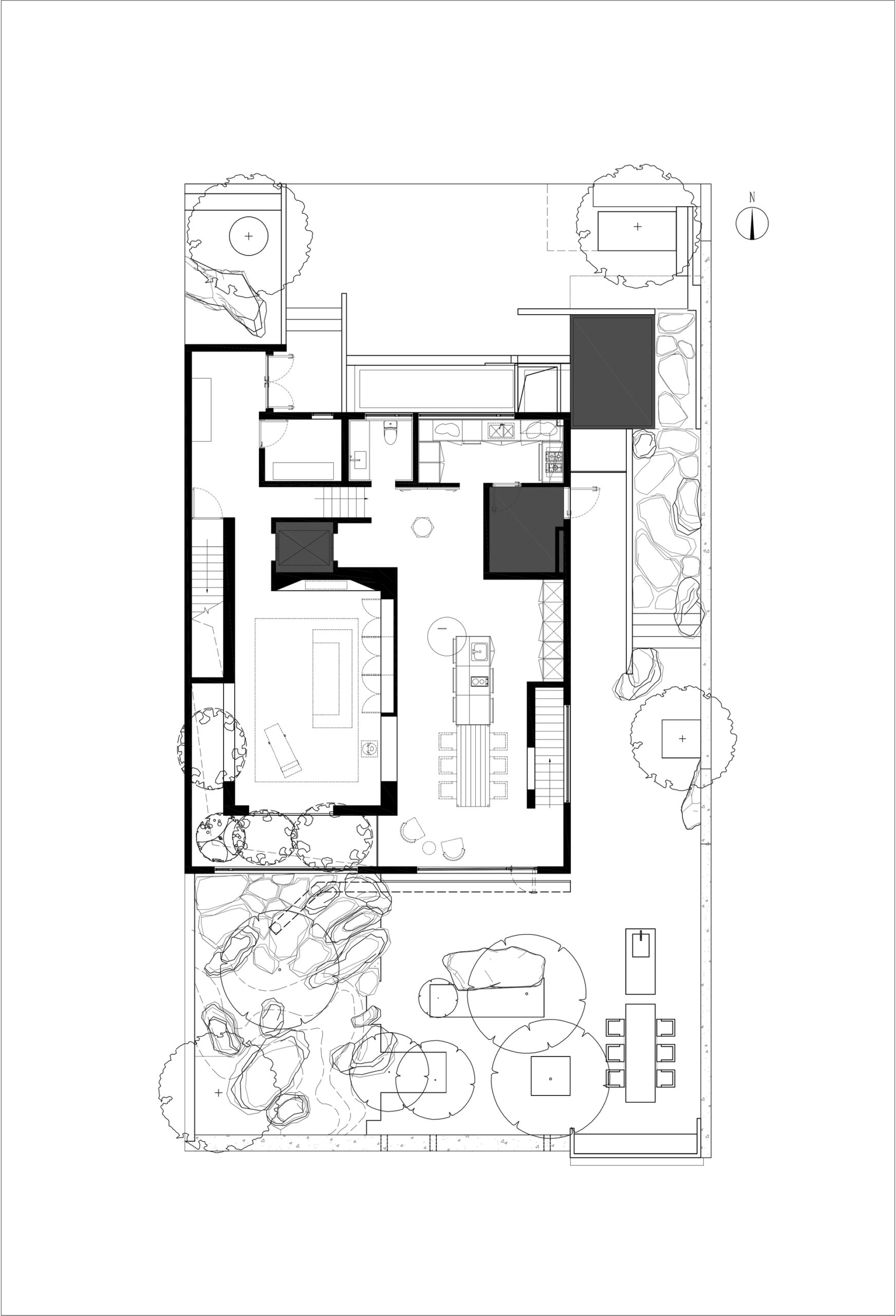
The protruding balcony and sunroom were removed. The original structure was resized—some parts expanded, others reduced—and the floor heights were reset to create a cohesive sense of scale. Sunlight pours in through skylights into the double-height entrance hall, flows through a transitional space, and reaches a living room enclosed by inward-facing plants. Due to structural adjustments, the living room now occupies a cantilevered box at the very heart of the house, looking out toward the slightly offset dining area and sunken garden. By raising the concrete structural beams, a column-free indoor garden space was created beneath the floating living room.
The resulting void allows sunlight to flow naturally through. As various plants thrive, the floating box of the living room will eventually be embraced by tree canopies, echoing the courtyard’s greenery both inside and outside. The double-height central atrium on the second floor becomes a passage leading to three bedrooms. A corridor wraps around the floating living room. Due to the spatial shifts, the path to each bedroom differs. As one walks through the space, views cut through both interior and exterior, revealing a garden within a garden, wrapped in greenery over two levels.
In this reconfiguration of space, an open kitchen facing both the living room and the indoor-outdoor garden was designed for the owners, who excel in culinary arts. Their food preparation and reading activities remain separated in space, yet communication takes place through silent visual interaction. The dining area, in both layout and materials, connects seamlessly with the outdoor garden. The original plants remain in their original spots. Guided by stones, the east garden serves as an independent entrance, allowing visitors to arrive directly at the overlapping interior spaces from a courtyard embraced by distant mountains.
This is a multidimensional, overlapping garden space: sunlight flows in along the paths of human activities—indoors, outdoors, and semi-outdoors—illuminating every corner. These corners shaped by different spatial conditions offer a richness of spatial information. Physically or spiritually, everyone has their own garden. It is the overlap between not only indoor and outdoor, but also reality and imagination. What matters is not where these spaces lead to externally, but how they open a path inward to our memory, spirit, and soul.
Project Info
Architects:Atelier About Architecture
Country: China, Beijing
Area: 650 m²
Year: 2025
Photographs: Yumeng Zhu
Design Team: Liu Xiaoxin, Jiang Wanchun, Dong Ning, Li Yang, Liao Hongxing, Kexia
Landscape Team: Li Xin, Liu Shuai, Cao Jixue, Wu Ziying










































Anastasia Andreieva is an accomplished Architectural Projects Editor at Arch2O, bringing a unique blend of linguistic expertise and design enthusiasm to the team. Born and raised in Ukraine, she holds a Master’s degree in Languages from Taras Shevchenko National University of Kyiv. Her deep passion for architecture and visual storytelling led her to transition from translation and editorial roles into the world of design media. With a keen eye for conceptual clarity and narrative structure, Anastasia curates and presents global architectural projects with precision and flair. She is particularly drawn to parametric and digital design, cultural context, and emerging voices in architecture. When I’m not analyzing the latest architectural trends, you’ll probably find me searching for hidden gems in cityscapes or appreciating the beauty of well-crafted spaces. After all, great design—like great connections—can be found in the most unexpected places. Speaking of connections, because architecture isn’t the only thing that brings people together.








