House in Samambaia | Rodrigo Simão Arquitetura

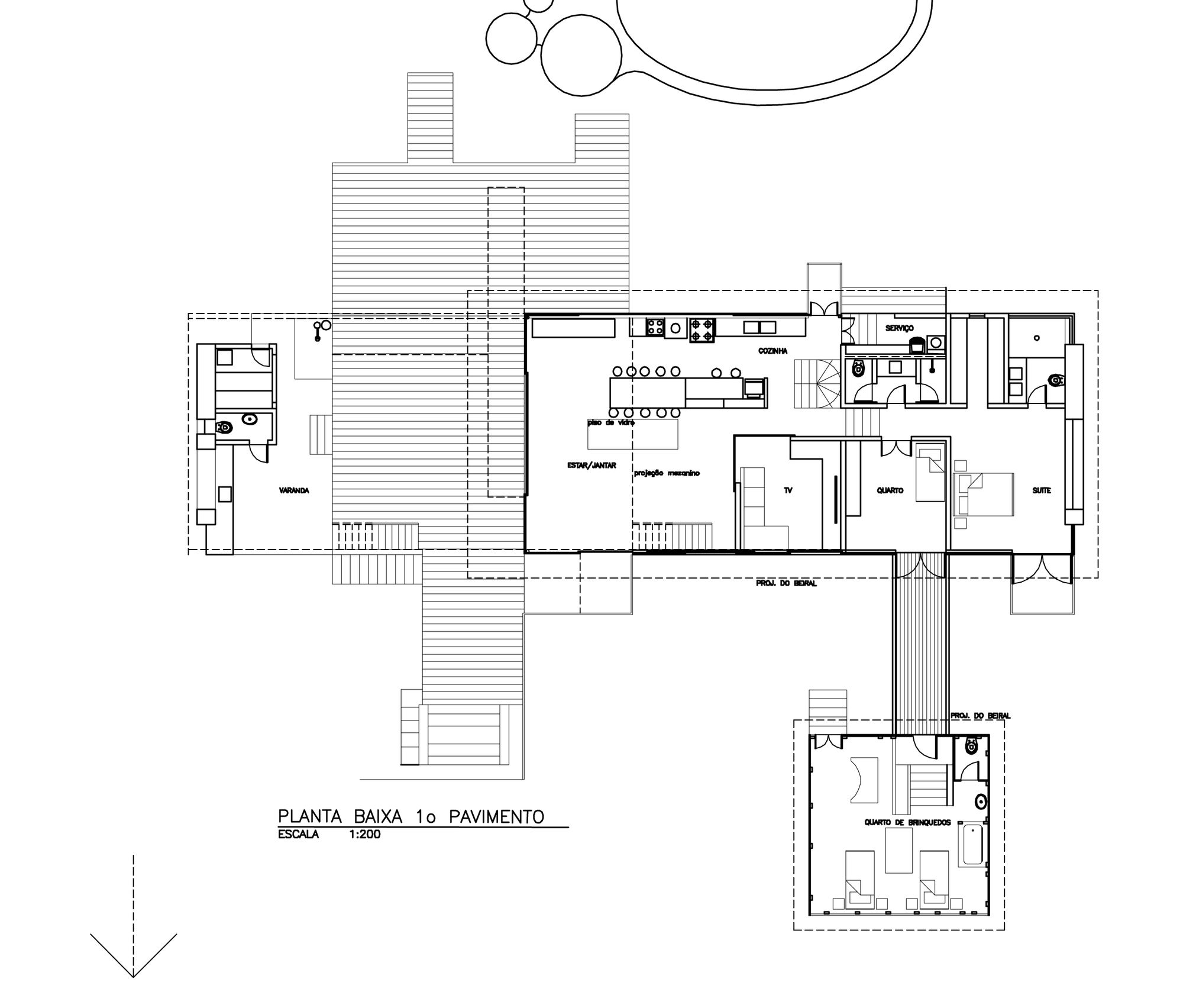
Designed by Rodrigo Simão Arquitetura, The house was built for the architect and his family, preserving relief, stones, and native trees, creating functional spaces that integrate domestic life with the nature of the place. The entrance of the house is done through a deck of 7cm thick wooden planks of demolition. This space doubles as an outdoor living room and is where the family spends most of the time.
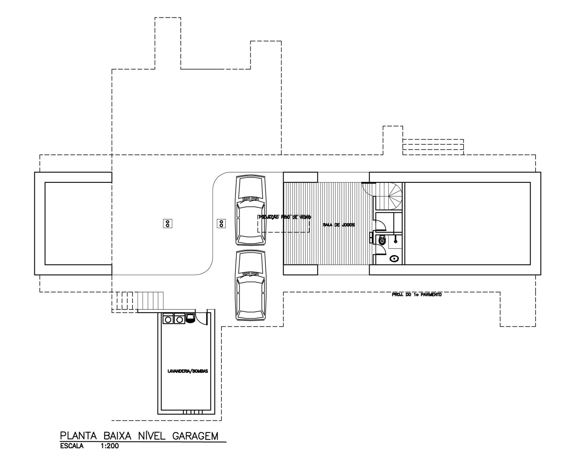
The carbon steel structure used in most of the building made possible large spans with spares of reduced sections, allowing large window openings and creating open spaces in dialogue with the garden and the beautiful landscape of the region. The flooring in most of the house is the concrete slab itself that was polished in the act of concreting – usually used in industries and gas stations because of its high impact resistance, abrasion, and its smooth and hygienic finish.

Photography by © André Nazareth

This option results in: fine finish, considerable economy, and thin slabs – polishing was the only waterproofing of the floors of balconies and terraces. The concrete is also exposed in walls and slabs, molded in the formwork with 10cm battens, thus exploiting its properties, eliminating human labor and material stages and integrating the building with nature.
The access stairs to the mezzanine and terraces are made of profiles of recycled steel and pink peroba planks on the steps. Old doors made of solid hardwood, hardwood ladders used, a cover system employing wooden floors, bathroom countertops, wooden furniture, and yellow-colored luminaires, made exclusively for the project, contribute with domesticity for the construction with industrial materials.
The roof is composed of a metal structure and hardwood floor, covered by asphalt blanket and lined with “shingle roof”. The pillars are made of steel pipes filled with “auto adensável” concrete and are recessed against the glass edges contributing to the lightness and dematerialization of the structure.

This house, full of traces of the brazilian modernism, such as the “raw” concrete in its façade and the curvilineous shape of the roof, is a transparent box. The owners, the architect Rodrigo Simão and the artist Katharina Welper, have planned an open space, where their family live in total dialogue with the beautiful landscape of the mountains near Rio de Janeiro.

The lightweight structural set of the house rests on masonry stone walls that compose the foundation by lifting it off the floor in order to avoid moisture and animals. The stones were dismantled from a wall over a hundred years old and redone by a local craftsman. Landscaping was done intuitively by residents, seeking to incorporate pre-existing native species that at some points cross the slabs.
The curved roof rises in the direction of the rising sun, which during the day runs through the house through iron-fixed fixed glass panels and sliding aluminum and clear glass sliding doors. Especially in the rooms facing north, the incidence of sunshine is vital to health in a mountainous city like Petropolis.
The house has gained attachments as a playroom and an atelier for the artist Katharina Welper, architect’s wife, complementing the integration between architecture and landscaping. The concepts of open space, the use of materials in their natural form and integration with nature seek to inspire in the family simplicity and a functional and integrated lifestyle.

Main Facade

Project Info:
Architects: Rodrigo Simão Arquitetura
Location: Petrópolis, Brazil
Lead Architect: Rodrigo Simão
Area: 375.0 m2
Project Year: 2014
Photographs: André Nazareth
Manufacturers: FRANKE, Metais, Gerdau, Deca
Project Name: House in Samambaia

Rodrigo Simão
Arch2O.com
Logo