House in Nakano | HOAA | Hiroyuki Oinuma Architect and Associates

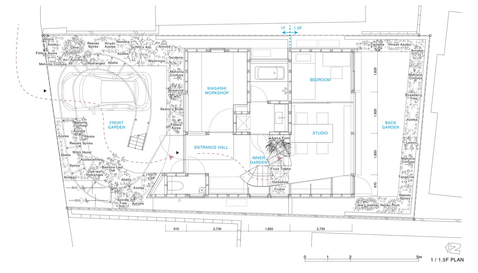
House in Nakano is an architect’s home and office located in a densely populated residential area of Tokyo. As there were other houses adjacent to the boundary of the site on all sides except for the north side, where the road is located, it was decided to install a large window facing the road, but the challenge was how to create a bright garden view through the north-facing window.

House in Nakano / HOAA / Hiroyuki Oinuma Architect & Associates

© Takuya Seki

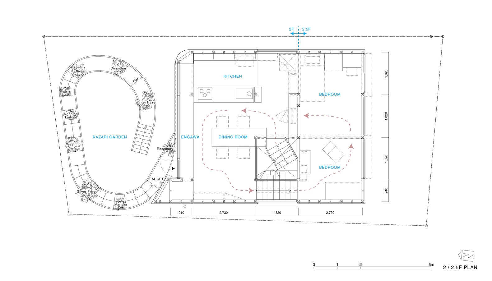
Therefore, a curved terrace called the “Kazari Garden” was extended from the large second-floor window, circling the air along the road in search of sunlight. The Kazari Garden’s smooth curves escape the shadow of the building, adding a sparkle to the view from the north-facing dining room window, creating a buffer zone between the city and the residence.

House in Nakano / HOAA / Hiroyuki Oinuma Architect & Associates

© Takuya Seki

The interior features a split-floor design that takes advantage of the site’s elevation difference. Views to the Kazari Garden and Back Garden are generated throughout the building, and a spiral circulation system was planned that alternates between these gardens. Furthermore, we considered cherished vessels, books, photographs, plants, etc. to be representations of our lives up to now, and by surrounding the flow of movement with shelves on which to display these items, we thought that we could create just the right amount of tension in the home, like a small art museum, and foster the motivation to live mindfully in the future.

House in Nakano / HOAA / Hiroyuki Oinuma Architect & Associates

© Hiroyuki Oinuma

Stepping out through the second-floor door into the Kazari Garden and watering the plants sparks conversations with passersby, and children can be seen delighted. “Kazari” (= ornament, decoration), including the plants, creates a psychological connection between people, house, and city, and the house behaves as a public entity open to the city.

House in Nakano / HOAA / Hiroyuki Oinuma Architect & Associates

© Takuya Seki

Rather than applying decorative expression to the architecture itself, as in Art Nouveau and Postmodernism, this work demonstrates a new form and role for decoration in architecture, a style that was once called crime and is often criticized in the modern world, making life in urban homes more fulfilling.

Country: Nakano City, Japan
Area: 96 m²
Year: 2025
Lead Architects: Hiroyuki OinumaLead Team: Hiroyuki Oinuma
Engineering & Consulting > Structural: Yuta Mino / MSE
General Contractor: Yamashita Construction
Hiroyuki OinumaLead Team: Hiroyuki Oinuma
Arch2O.com
Logo
Send this to a friend