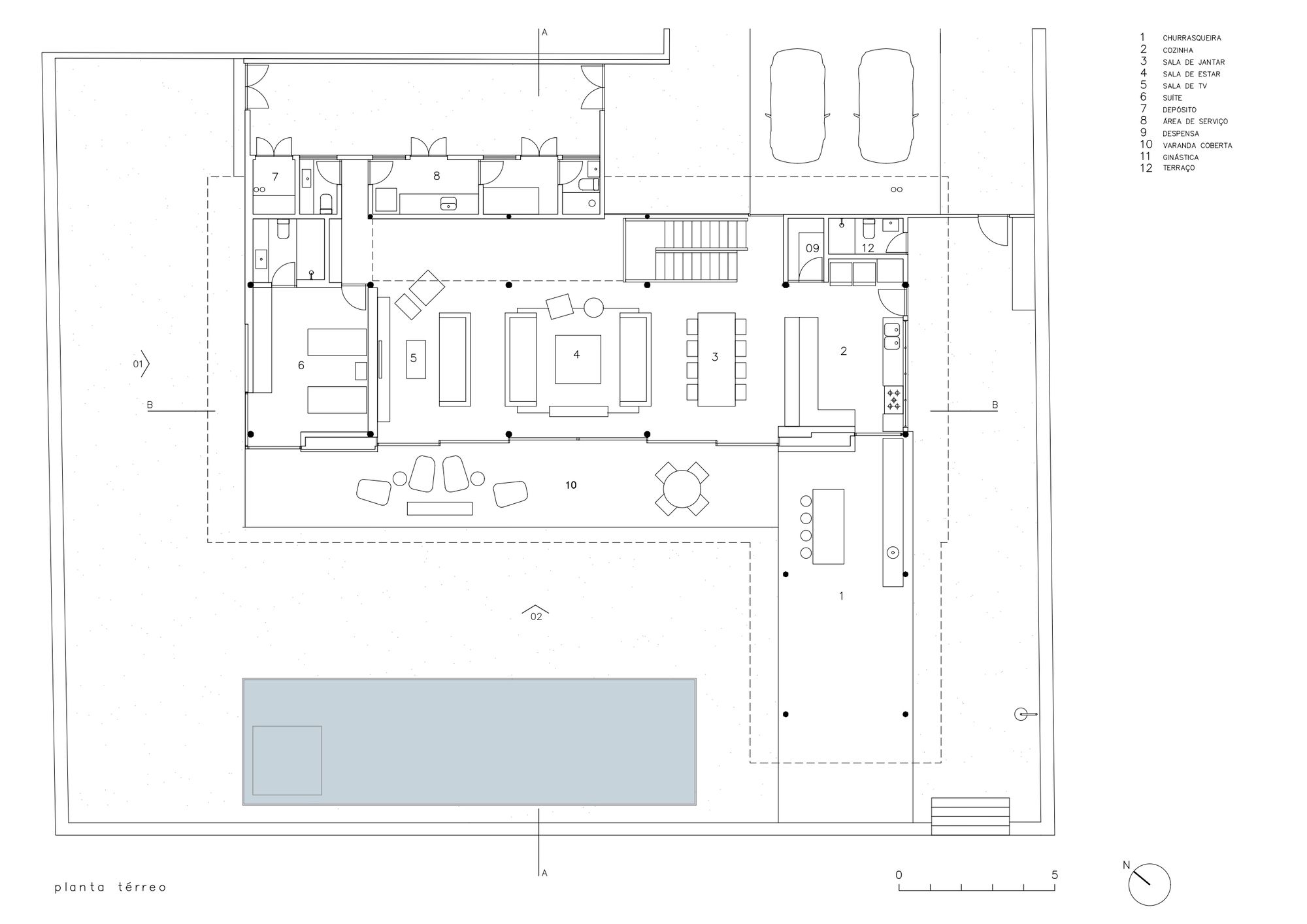
Designed by AMZ Arquitetos, Guaecá House is located in a housing complex overlooking the ocean on the coast of the state of São Paulo, Brazil. The lower floor is composed of a single living and dining space surrounded by sliding glass doors that limit the outdoors. They provide an uninterrupted view towards the ocean and when pulled aside create one expansive terrace space connecting the social area to the pool and garden area.
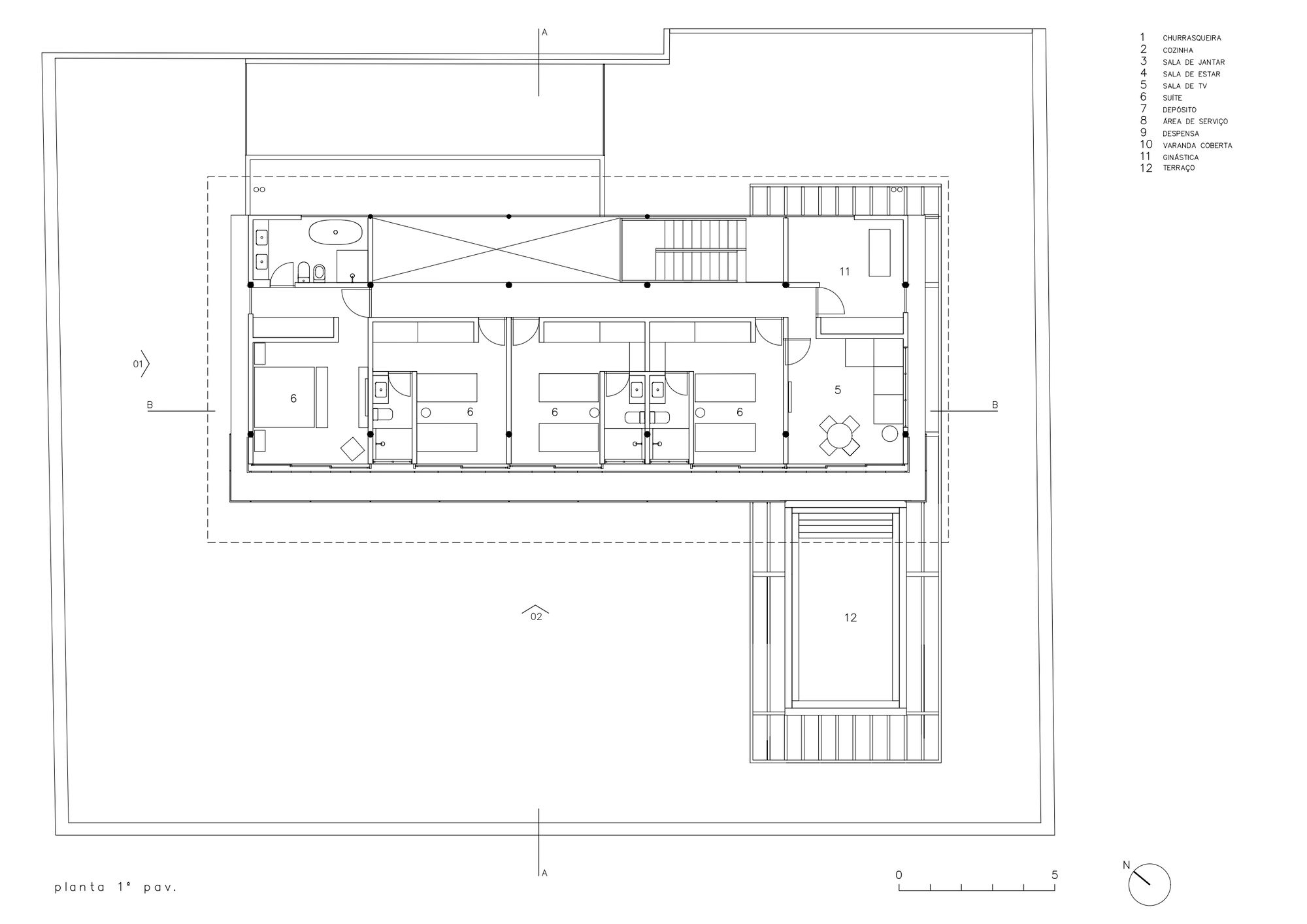
The laundry area is located opposite the sea view in a closed and more reserved area. Its walls help to ensure privacy to the rest of the house separating it from the street and neighbors nearby. On one side, on the upper floor, are located side-hung windows that provide natural light and ventilation into the living room. And on the other side, are located the bedrooms covered by sliding slatted wooden panels. When slid open, they extend the rooms to a small deck facing the ocean and surrounding landscape.
Prefabricated wooden structure (CLT – cross-laminated timber) measuring 4.45 x 4.80m, from ITA Construtora, was used for the structuring of the house.
Project Info:
Architects: AMZ Arquitetos
Area: 475 m²
Year: 2018
Photographs: Pedro Napolitano Prata
