The House CO, located in Santo Domingo, Chile, was born out of the necessity of a couple looking to settle on the coast with a versatile and flexible home. The design aimed to balance the comfort for the daily use of two people with the ability to comfortably accommodate ten occupants during certain periods of the year, prioritizing functional flexibility.
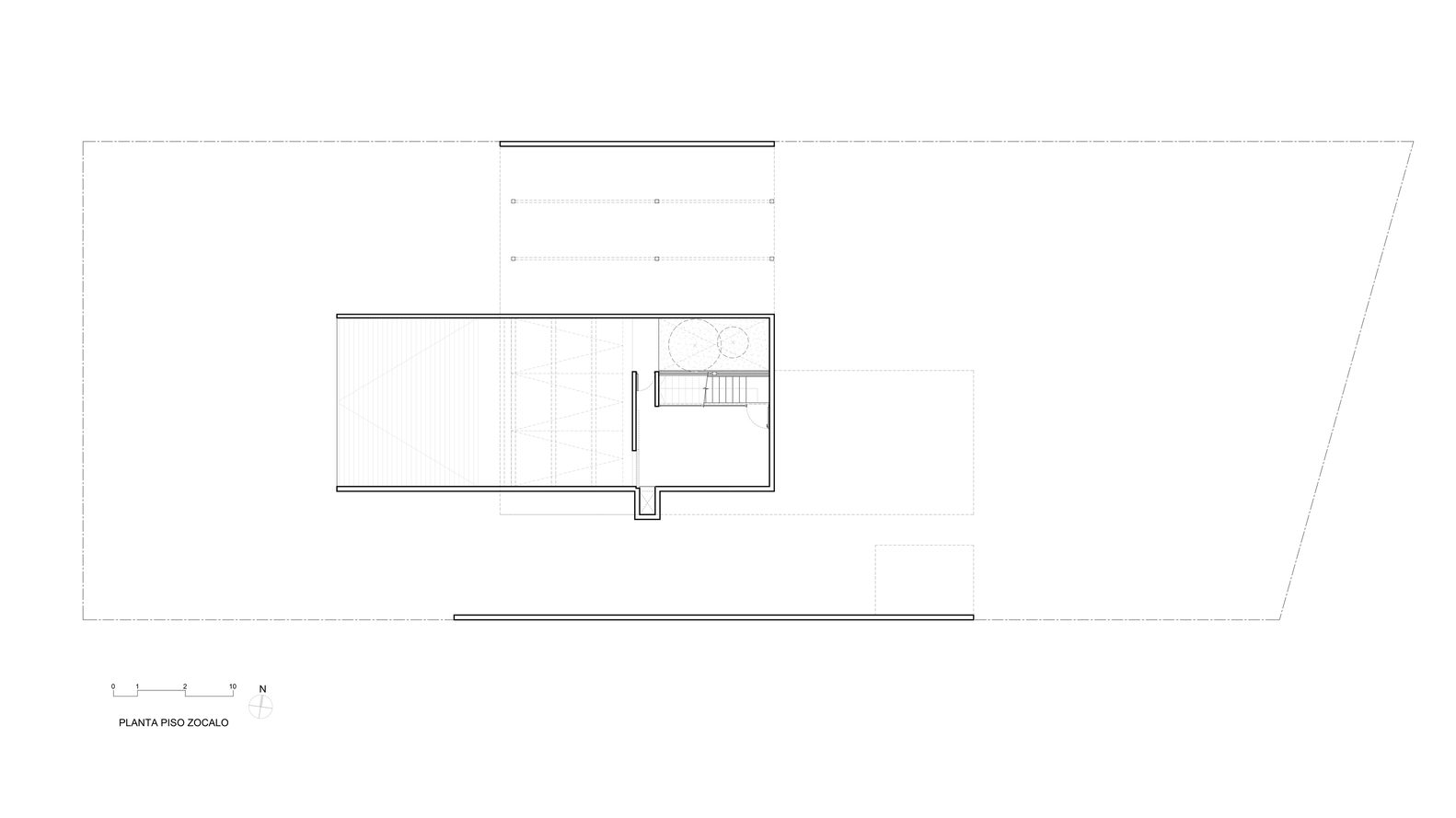
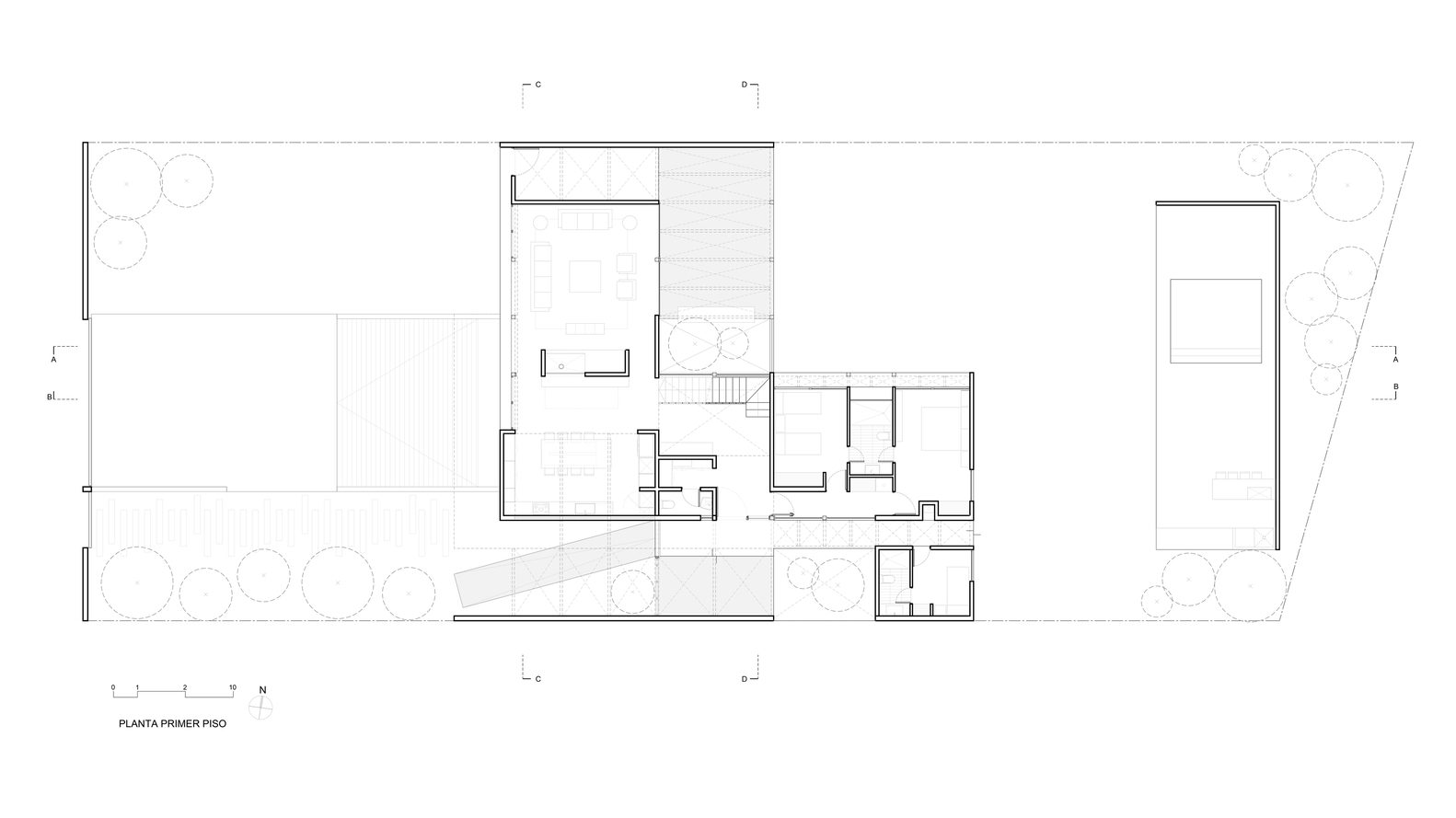
One of the main challenges was the terrain: a long, narrow, and practically flat plot, the task was to capture the sea views despite the distance from the coast. The solution was to semi-bury the house halfway and attach it to the sides, allowing for the addition of an extra floor. This strategy increased the use of space, provided protection from coastal winds, and utilized the maximum height allowed on the plot, while also enabling the creation of interior patios, crucial for ensuring natural light enters all areas and rooms of the house.
An architectural element that stands out inside the project is the stair box, which transcends its basic function to become a “light box.” This structure visually and programmatically connects all levels, from the underground parking to the second floor, serving as a central axis for the home.
The second level appears as a clean and lightweight compact volume, seeming to float above the glass and concrete base of the first floor. This level projects outward with a large window that frames the sea views and its surroundings, making them the main focus of this space.
The distribution of the program is organized across three levels: the underground houses the parking and service areas; the first floor is dedicated to common areas and connection to the patio, encouraging interaction and recreation; and the second floor is exclusively for the master bedroom, offering privacy and the best sea views.
Regarding materials, the CO House combines the solidity of concrete, used in the underground and first floor, with the lightness of the metal structure clad in wood on the second floor. This choice creates a harmonious contrast and contemporary aesthetic in a very traditional setting. The large glass facades are a distinctive feature, designed to maximize natural light during the day. As evening falls, these glazed surfaces transform into true mirrors, reflecting the natural surroundings and nearby vegetation, further integrating the house with its coastal landscape.
Project Info:
-
Architects: Estudio Base Arquitectos
- Country: Santo Domingo, Chile
- Area: 310 m²
- Year: 2024
- Photographs: Marcos Zegers
























Isabelle Laurent is a Built Projects Editor at Arch2O, recognized for her editorial insight and passion for contemporary architecture. She holds a Master’s in Architectural Theory from École Nationale Supérieure d’Architecture de Paris-Belleville. Before joining Arch2O in 2016, she worked in a Paris-based architectural office and taught as a faculty adjunct at the École Spéciale d’Architecture in Paris. Isabelle focuses on curating projects around sustainability, adaptive reuse, and urban resilience. With a background in design and communication, she brings clarity to complex ideas and plays a key role in shaping Arch2O’s editorial







