HOUJIE TIMES Commercial Complex | TurtleHill Architecture and Design
HOUJIE TIMES Commercial Complex’s Location:
HOUJIE TIMES Commercial Complex was located in Houjie Town, Dongguan City, the First Industrial Zone in the Liaoxia district. We are dedicated to preserving and renovating the original industrial buildings into a cultural and creative zone called “Houjie Times.” This new neighborhood will glorify the spirit of industrial heritage and the throbbing viability of urban betterment.
The architectural complex is a shot of the history of modern economic development in the Pearl River Delta. This was a factory site in the town center, faced with increased consumer demand by the local population and evolving consumption trends. There was a dire need for diversified contemporary consumer spaces; thus, it became the ideal location for the new “Houjie Times” project. With this background, it is intended to respect as much as possible the construction logic of the original building while renovating it to express a new spirit of Houjie.
We adopt a restrained and precise approach of addition and subtraction on the original building’s skeletal framework. The design strategy primarily involves the removal of the aging outer decorative layers, exposing the structural framework to highlight the distinctive construction features of the industrial factory buildings from that era. This approach is not only rooted in the protection and utilization of industrial architecture but also in the inheritance and continuation of its era-specific memories and characteristics.
Building upon this spatial foundation, we then employ an “addition” strategy by incorporating scaffolding as a featuring element of facade installation which is commonly seen in construction sites. This not only introduces a sense of high innovation to the space but also shapes the project’s unique overall image, creating memorable points and enhancing recognition. More importantly, the lightweight nature of these materials and the flexible construction method align perfectly with Houjie’s continuous development process of adapting to changing times. Even in the face of the rapid iteration of the current commercial market, this adaptable and changeable design can respond to subsequent project operational changes swiftly and efficiently.
-
Architects: TurtleHill Architecture and Design
- City: Dongguan, China
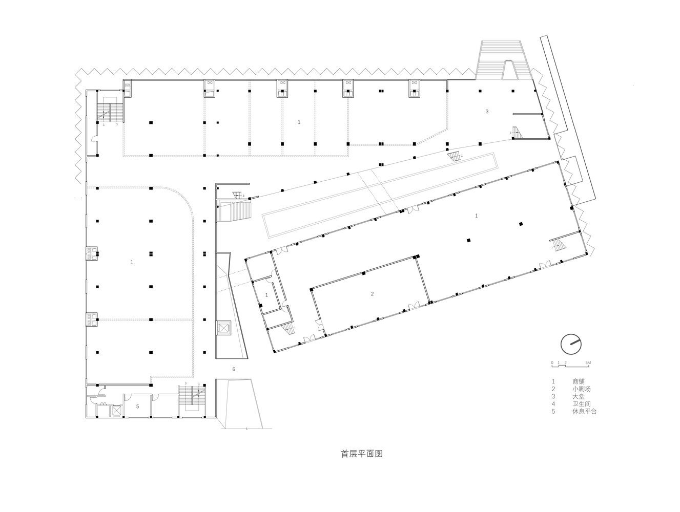
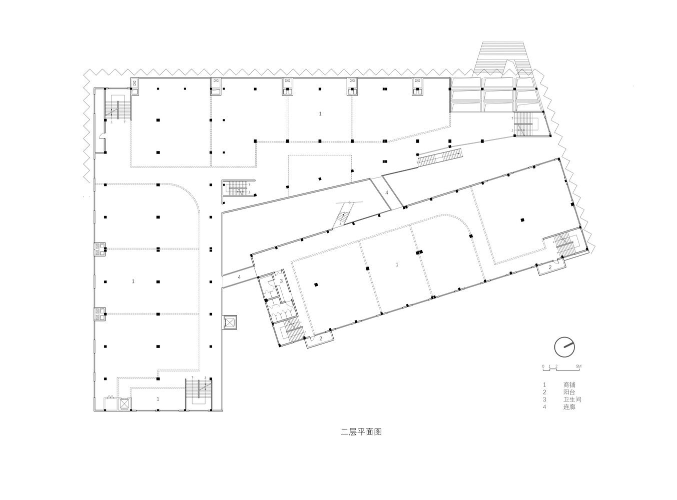
- Area: 10350 m²
- Year: 2023
-
Photography: Cat-Optogram Studio
-
Manufacturers: FSL, QILV ALUMINUM, YOUFA STAINLESS STEEL
-
Construction Team: Dongguan Lifeng Construction
-
Lighting Design: Visual Interaction of AURA
-
Interior Design: Dongguan winner create design

























