Hôpital Vétérinaire du Parc | Thomas Balaban Architect
Hôpital Vétérinaire du Parc, A mixed-use renovation and extension, HVdP squeezes a state-of-the-art veterinarian hospital, SPCA emergency clinic, and four residential units in and on top of a small abandoned photo studio.
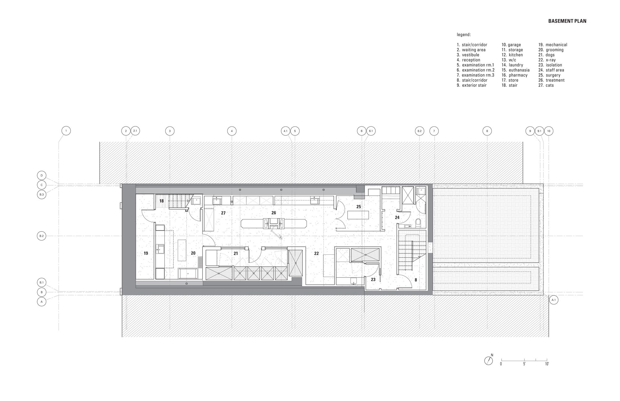
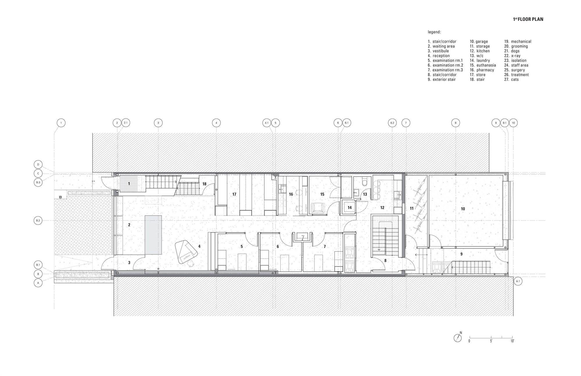
Redefining the veterinary experience for the Mile End neighbourhood, the dilapidated storefront space and dark basement are brought to life with a calming minimal palette juxtaposed against existing raw surfaces and generous glazed partitions. Utilitarian materials work within the neighbourhood’s aesthetic and the specific needs of a veterinary clinic. Stone foundations, concrete wainscoting and ceramic tiling protect the lower part of the walls required to be resistant to animal wear and tear, whereas milky polycarbonate ceiling panels hide a complex mechanical system revealing only modest graphic lighting.
Technical spaces are efficiently organized around a central circulation spine, allowing for a spacious reception where animals and owners alike can circulate freely. Friendly custom furniture in Corian and orchestrated glimpses through glazed partitions seek to ease anxiety and subvert traditional doctor/client/patient formality.
Building renovation and extension
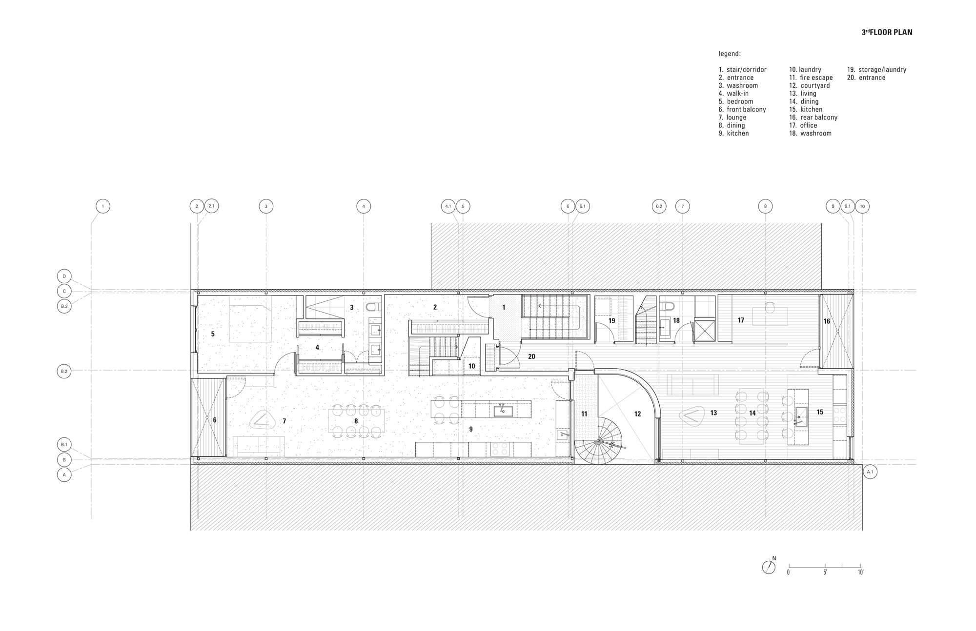
An economical and environmentally sound intervention, the contemporary four storey mixed use building extends and renovates an existing two storey structure. The new rooftop and rear extensions maintain a commercial storefront typical of the Mile End neighbourhood while adding four residential units above. The new structure delicately inserts itself into the existing steel frame, using the building perimeter as a guideline for the new form.
Integral to the design is a central courtyard that funnels natural light into the center of the structure and provides efficient access and ventilation for all of the residential units. The upper units occupy two floors, with the front giving onto a large private roof top terrace overlooking Montreal’s Mount Royal.
On the exterior, the building is restrained and monochromatic. The façade is clad in a single material, a grid of local limestone quarried 50 km away. A tripartite stacking plays on the city’s layered façades, delineating the residential units through tiered setbacks over a generous glass storefront. Subtle aluminum details surround windows and doors, and finely perforated guardrails fade into the monochromatic background. Fully glazed balconies are punched into the façade giving tenants’ added privacy while streamlining the building’s form.
Project Info
Architects: Thomas Balaban Architect
Country: Canada, Montreal
Area: 750 m²
Year: 2018
Photographs:Adrien Williams / T B A






























