Homeless World Cup Legacy Center | Architecture For Humanity
The Homeless World Cup Legacy Center in Santa Cruz, Brazil is a prototype facility utilizing football as a tool for empowerment and social change for women and youth. With the Homeless World Cup arriving in Rio de Janeiro, Brazil in fall 2010, Architecture for Humanity, Homeless World Cup, and Nike teamed up with local partners Organização Civil de Ação Social (OCAS), and Instituto Bola Pra Frente (BPF) to establish a Legacy Center that would implement the Homeless World Cup influence beyond the week-long Tournament and Leadership Conference.
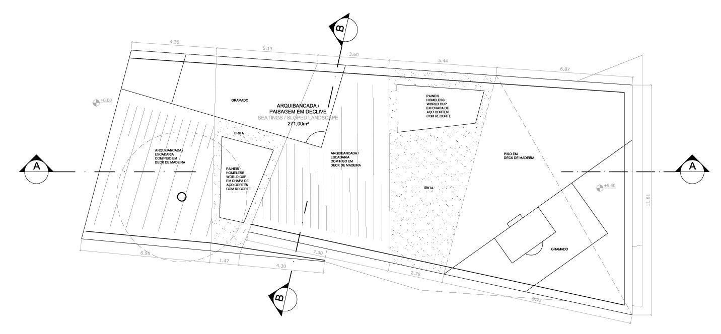
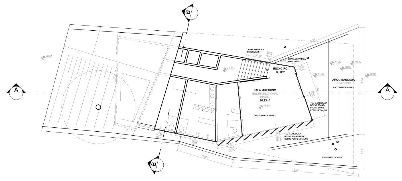
The Youth and Women’s Leadership center in Santa Cruz is the new home for Instituto Bola Pra Frente in Santa Cruz modeled after the non-profit’s successful program in Guadalupe, Rio de Janeiro. While the center in Guadalupe focuses services for youth and their families, the new center in Santa Cruz extends specific services to the greater community as well as providing meeting and classroom space available for OCAS and other community organizations. With the broad spectrum of services and users on site, the project layout is based on a gradation of public to private access, including strict access filters to achieve the ideal secure learning environment for the youth at Instituto Bola pra Frente.
The site features a community street football pitch measuring 22m x 16m (donated by Greenfields), the new home for Homeless World Cup Brazil (OCAS) training and tournaments. The pitch acts as a playing and meeting surface and a visual magnet creating a hub for community interaction. Additional building and site space will be identified for retail of enterprise products. Facilities for players and the community include locker rooms, rest rooms, a community gathering space, and access to clean water. In order to reduce operating cost and greater resource impact, the project utilized local materials and methods, natural ventilation, shading, and cooling strategies as well as integrated rainwater collection and UV purification system to provide fresh water to the center and community.
Instituto Bola Pra Frente, an initiative of world champion soccer Jorginho, was inaugurated on June 29, 2000. Situated in an area of 11.570m ², Bola Pra Frente serves children and adolescents in situations of social vulnerability, aged 6 to 17 years. In the search for a just social score, Bola Pra Frente offers the opportunity for social advancement through sports, education, art and culture and professional skills.
Organização Civil de Ação Social (OCAS), or “Civil Organization for Social Action,” aims to bring awareness to social issues through media outlets, including its publication “Hollow,” which is produced by volunteers and sold by people in social risk.
The Homeless World Cup Foundation uses football to encourage and energize people who are homeless to change their own lives. Currently it works with football programs in over 70 nations reaching 40,000 homeless players every year with an ambition to engage one million players with the benefits of football by 2012.
• Social: The Youth and Women’s Leadership Center promotes social sustainability through the implementation of a community center focused on youth and women’s empowerment through leadership training, personal skills development, academic advancement, athletic training through involvement in team sports. The emphasis on education and leadership training uses football as the catalyst for change.
• Design: This center is an inventive, flexible, replicable, and scalable solution for international communities lacking resources for women and youth.
• Resources: The center is an exemplary project exhibiting sustainable principles of energy efficiency, resource collection, and locally sourced materials.
Project Info
Architects: Architecture For Humanity
Country: Brazil
Year: 2009
Photographs: Courtesy ofArchitecture for Humanity
Sponsoring Organization: Nike GameChangers
Project Partners: Bola Pra Frente, Organização Civil de Ação Social, Homeless World Cup
Number Of Beneficiaries: 695
Associated Architects: Lompreta Nolte Arquitetos, Nanda Eskes Arquitetura
Project Coordinator: Michael Jones
Design Fellow: Daniel Feldman
























Sophie Tremblay is a Montreal-based architectural editor and designer with a focus on sustainable urban development. A McGill University architecture graduate, she began her career in adaptive reuse, blending modern design with historical structures. As a Project Editor at Arch2O, she curates stories that connect traditional practice with forward-thinking design. Her writing highlights architecture's role in community engagement and social impact. Sophie has contributed to Canadian Architect and continues to collaborate with local studios on community-driven projects throughout Quebec, maintaining a hands-on approach that informs both her design sensibility and editorial perspective.









