Hilton Hotel Schiphol Airport | Mecanoo
The Hilton Hotel Schiphol Airport is located near Amsterdam’s international airport. With its diagonal patterned facade, curved corners and strategic location, the building is a recognisable icon at the airport and is prominently visible from the motorway.
From its spacious plinth, the cube-shaped hotel is rotated 45 degrees to establish a dynamic position. Rounded corners accentuate this dramatic effect so that the hotel contrasts strikingly with its neighboring, rectilinear buildings.
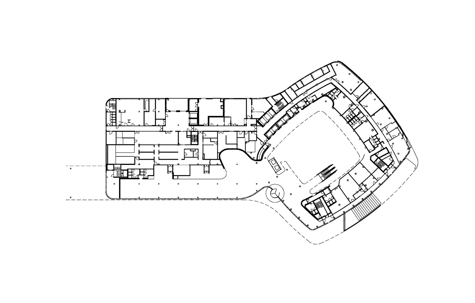
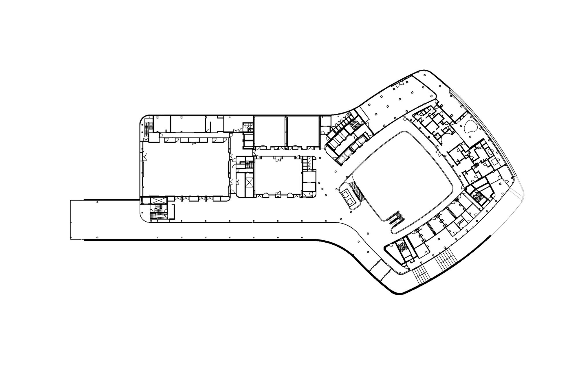
The entrance, reception and restaurant are located on the ground floor, while the conference centre on the first and second floors adjoins a passageway that leads to the airport. As the heart of the hotel, the impressive atrium has a clear identity featuring a 42-metre-high glass ceiling. All the white elements, especially the light horizontal balustrades, bounce daylight deep into the building.
The atrium also serves as an open meeting space and plays an important role in the building’s energy-saving climate concept. Outside air is filtered before being channelled into the atrium, where it is preconditioned for the rooms. Timber used as slats, frames and cladding lends the interior a natural yet luxurious feel.
The facade pattern unites the three elements of the complex – plinth, tower with hotel rooms, Schiphol passageway – and is composed of three forms of prefabricated composite panels : straight, curved and arched.
Their arrangement forms a seemingly random pattern with a subtle gleam and texture. The combination of glass with grey and white panels results in a striking diamond-shaped pattern that is immediately recognisable from a distance.
A welcoming atrium with a 42-metre high glazed roof is the main meeting area and forms the heart of the hotel. The narrative of lace embroidery and crochet, traditional art forms in domestic Dutch life, threads through the design from carpets to laser cut panels. White balconies encircle the vast space like ribbons, reflecting daylight from the glazed roof deep into the building.
The top of the building has three floors dedicated to traveller’s comfort, featuring a lounge, suites and views across the airport runways and piers. The diamond-shaped windows create a distinctive atmosphere in the guest rooms.Wooden slats, frames and lining create refinement and a natural, luxurious appearance. Because of its prominent location on Schiphol Boulevard, the cubic hotel is also easily visible from the A4 highway.
Project Info :
Architects : Mecanoo
Project Year : 2015
Project Area : 43,150 m2
Structural Engineer : ABT
Cost Consultant : BBN Adviseurs
Interior Design : The Gallery HBA
Client : Schiphol Hotel Property Company
Project Management : Schiphol Real Estate/CPO
Contractor : Ballast Nedam Bouw & Ontwikkeling
MEP/transport consultant : Deerns Raadgevende Ingenieurs
Project Location : Schiphol Boulevard, Schiphol,Amsterdam, the Netherlands
Sustainability/Building Physics/Fire Consultant : DGMR Raadgevende ingenieurs

























