High Desert House | Ryan Leidner Architecture

High Desert House, Located on a picturesque, undeveloped parcel in Joshua Tree, the High Desert House celebrates the beauty of the desert in its simplicity while serving as a home and creative space for the owners.

© Joe Fletcher Photography1

© Joe Fletcher Photography

The design process started with the desire to respect the landscape by creating a building that maintains a compact footprint while still enjoying the sense of expansiveness one feels in the desert. From a design perspective, we wanted the house to feel both like a clear sculptural gesture while also being a warm and inviting home.

© Joe Fletcher Photography2

© Joe Fletcher Photography

Inspired by the artists and sculptors working in the Land Art Movement of the 1960s and 70’s, we found inspiration in seeing how the context of the desert landscape can give a unique meaning to a work.

© Joe Fletcher Photography3

© Joe Fletcher Photography

In order to reach the property, you drive several miles down an unpaved, sandy road, seeing the occasional home or trailer along the way. And then you take a final turn, and the house begins to emerge from behind a rock outcropping, as a thin white line in the landscape.

© Joe Fletcher Photography4

© Joe Fletcher Photography

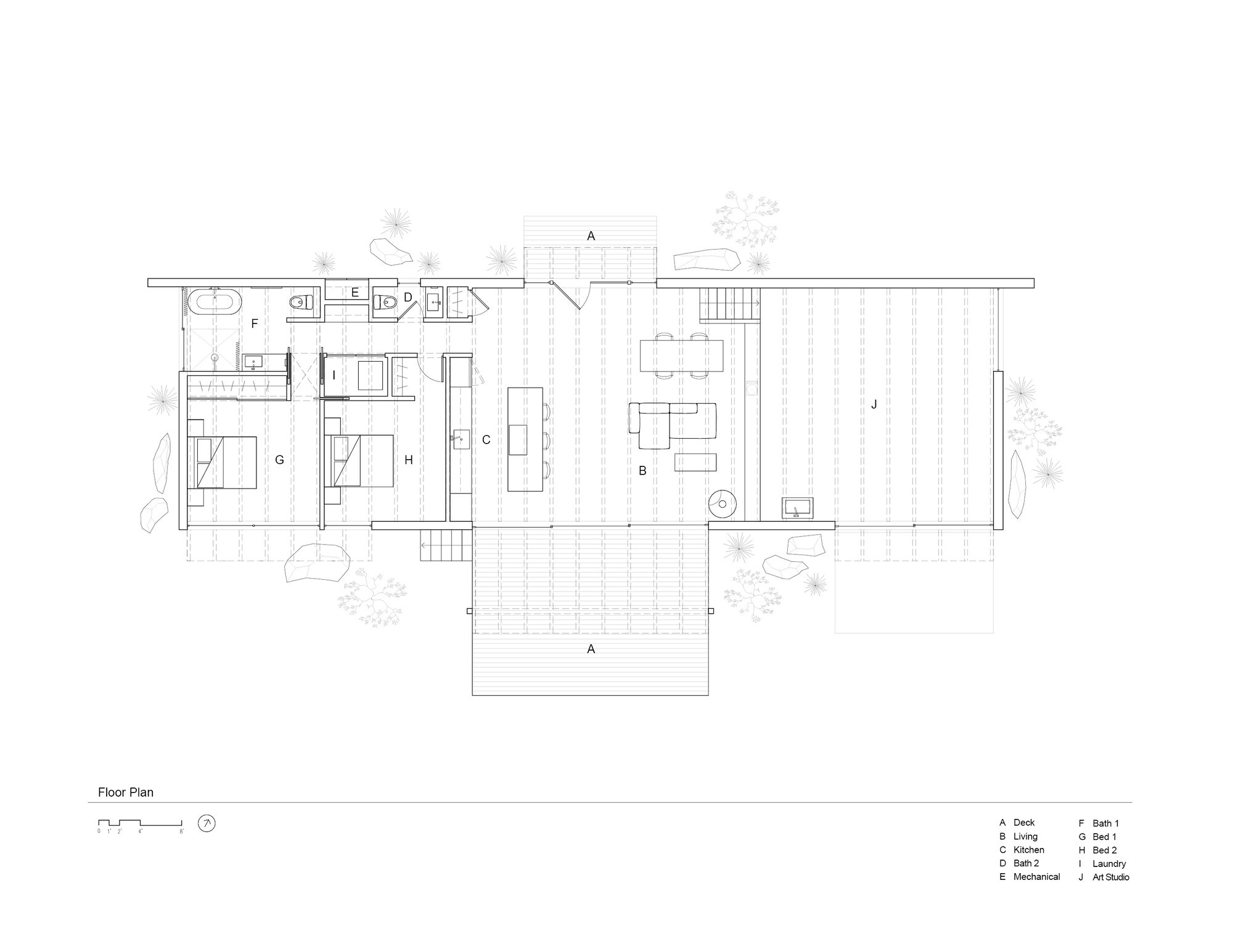
Working in a remote environment necessitates a certain simplicity and economy when it comes to design. For that reason, a straightforward exposed post-and-beam structural system was used, and the regular spacing of those members informed the interior layout of the rooms and spaces.

© Joe Fletcher Photography5

© Joe Fletcher Photography

Being both a home and art studio, the initial design process was guided by the studios of many notable artists from Georgia O’Keeffe and Willem and Elaine de Kooning, as well as the home Luis Barragan designed for himself. In all of these spaces, there is a beautiful commingling of creative work and life that inspired the design.

© Joe Fletcher Photography6

© Joe Fletcher Photography

The house is a wood-framed construction with a plaster stucco exterior, which was chosen because it can withstand the extreme fluctuations of the weather in the desert. One of the more interesting questions faced during the design process was choosing a color for the exterior. We initially explored using a neutral-toned plaster with the thought that it would blend in with the desert landscape. But as we studied that option further, we realized that it actually took away from the landscape and architecture, and that having a stronger contrast in tone helped to highlight the beauty of the surroundings.

© Joe Fletcher Photography7

© Joe Fletcher Photography

The design of the home settles the mind and allows more inward focus while celebrating the beauty of the desert.

Project Info
Architects: Ryan Leidner Architecture
Country: United States, Joshua Tree
Area: 1900 ft²
Year: 2023
Photographs: Joe Fletcher Photography

Sophie Tremblay
Show full profile Sophie Tremblay

Sophie Tremblay is a Montreal-based architectural editor and designer with a focus on sustainable urban development. A McGill University architecture graduate, she began her career in adaptive reuse, blending modern design with historical structures. As a Project Editor at Arch2O, she curates stories that connect traditional practice with forward-thinking design. Her writing highlights architecture's role in community engagement and social impact. Sophie has contributed to Canadian Architect and continues to collaborate with local studios on community-driven projects throughout Quebec, maintaining a hands-on approach that informs both her design sensibility and editorial perspective.

Arch2O.com
Logo
Send this to a friend