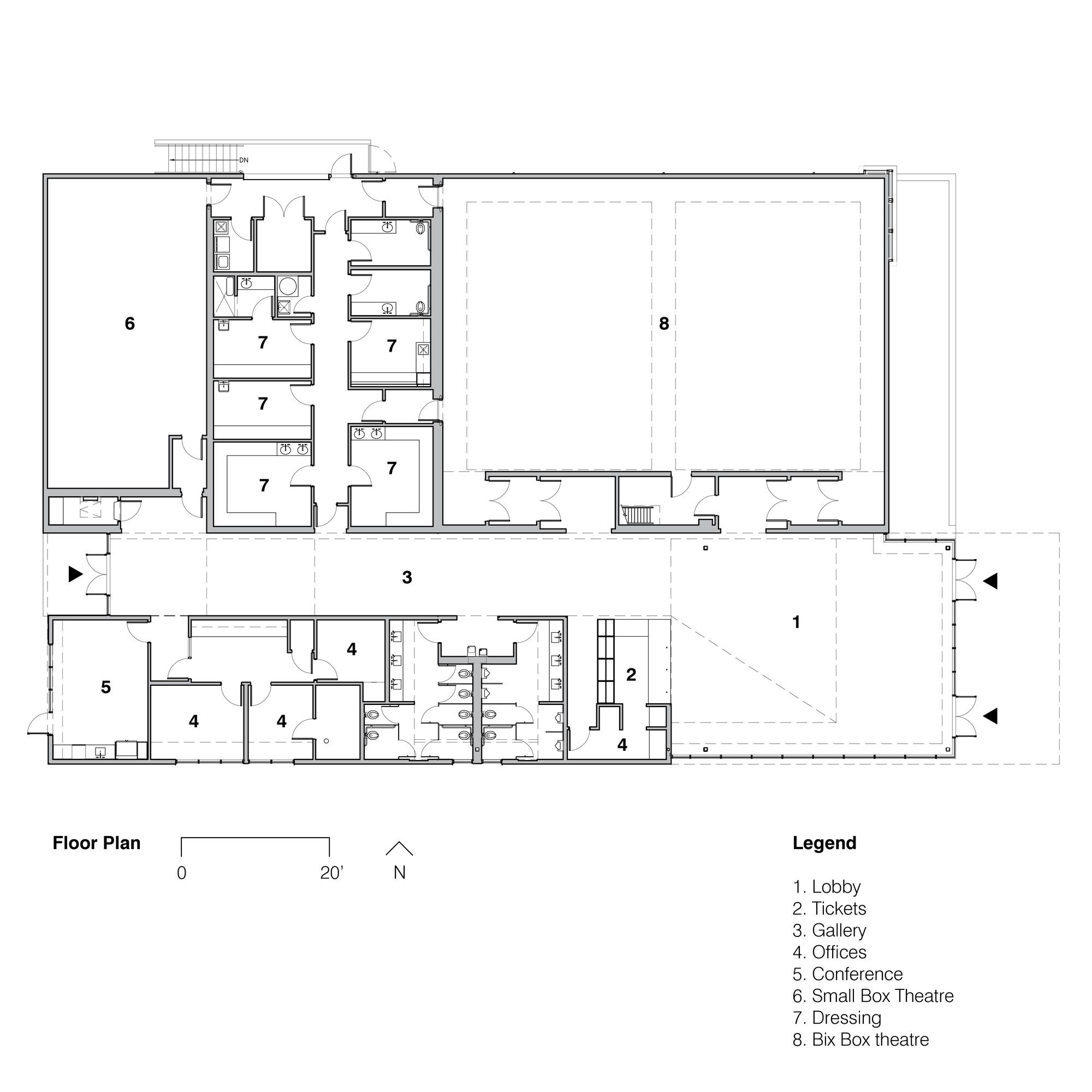
Hattiloo Theatre is the first black repertory theatre in Memphis relocated from their start-up space to an existing parking lot in an urban entertainment district currently undergoing a resurgence.
The new building allows the region’s only black repertory theatre to have its own identity and establish a presence on the corner of a main artery into the district. Cor-Ten cladding was used for its ability to weather and oxidize over time and add to the unique character of the entertainment district while adding a distinct permanence to the building.
Project Info:
Architects: Archimania
Project Location: 37 Cooper Street, Memphis, TN 38103, United States
Project Year: 2014
Owner: Hattiloo Theatre
Project Area : 11041.0 ft2
Interior Design: archimania
Photographs: Hank Mardukas
Consultants: Self Tucker Architects, SSR, JaffeHolden, Schuler Shook, Aye Leigh Projects

















Tags: 2014ArchimaniaConcreteCultural ArchitectureCultural CenterGlassHank MardukasHattiloo TheatreMemphisTheatreUnited StatesWood
