Haruna Innovation Center | Naomi Sato Architects

A project for Haruna Innovation Center as the central hub for product planning and development for Haruna Beverage, whose head office and factory are located at the foot of Mt. Haruna in Gunma Prefecture. Before designing the building, three areas were conceived for this facility, to stimulate communication both inside and outside the company and to promptly produce beverages with a new perspective.

Haruna Innovation Center

© Kazumi Ogata

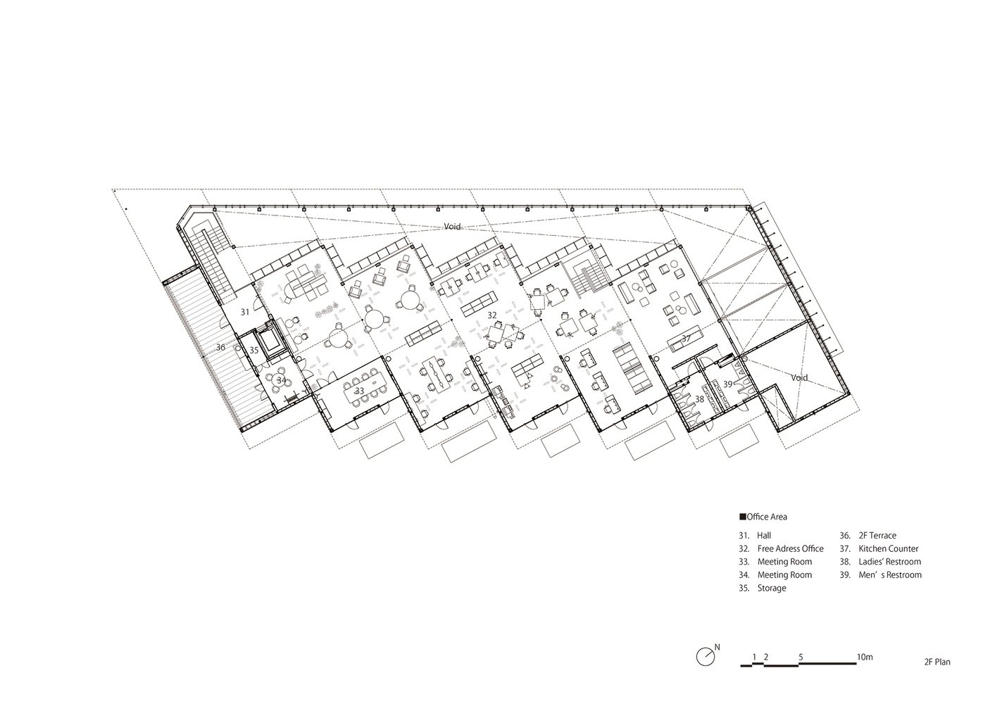
“To Think = Office Area”: A space with a free address working place emphasizes communication and co-creation
“To create = Innovation Area”: A space where scientists can be creative with all five senses
“To spread = Gallery Area”: A space where visitors can learn about the company and its products
while touring the entire building

Haruna Innovation Center

© Kazumi Ogata

To achieve these visions, the following design concepts were developed:

  • In order to create an environment where people can work with refined sensibilities, bright spaces with warm materials such as wood were designed. Natural soft light from Northside shines through the gaps between the roofs, giving a bright and green-filled atmosphere wherever in the building.
  • The Zig-Zag plan layout creates space, both stream and stillness areas in the Gallery area, and gives diversity to the workspace where public and private are adjacent in the office area. It gives a feeling of an open atmosphere similar to a mountain lodge.
  • Considering fire resistance, earthquake resistance, and cost-effectiveness, a fireproof wooden structure is selected. So that the structure appears in the interior and makes it safe and warm.
  • Considering CO2 reduction and comfortability, high-insulation roofs and walls, floor-supply-air-conditioning, and natural light are adopted. It is making an eco-friendly facility.

Project Info:

 Naomi Sato Architects
Arch2O.com
Logo
Send this to a friend