Designed by David Baker Architects, An expansion to the family, the Harmon Guest House joins DBA’s h2hotel and Hotel Healdsburg to complete a trio of boutique eco-hotels adjacent to the square in Healdsburg. The new guest house sits on a narrow lot just to the north of h2hotel, bringing an increased capacity for sustainable accommodations and a needed parking resource for the popular wine-country town.
At ground level, a dramatic glass entry lobby and green stair set the tone of openness and welcome. The transparent façade is screened with redwood sun shading and vine trellises at the street level. A sheltered bus-stop waiting bench is built into the face of the hotel.
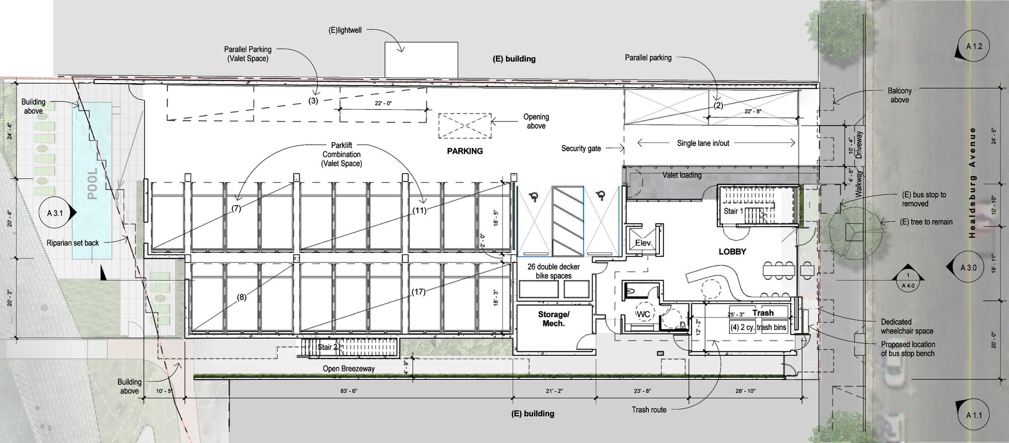
Harmon Guest House features 39 efficient rooms—including six suites—in intimate pods grouped at the front and rear of the site. Between, a central courtyard crossed by glassed-in bridges bring in light and air. To the rear, the hotel overlooks Foss Creek.
As part of its design and construction, the guest house is contributing to the further restoration of this riparian corridor. The property spans the creek, with a footbridge crossing over to a creekside park with preserved and protected trees and native plantings.
Each guest room enjoys private outdoor space by way of a balcony or patio plus a view out toward either the main street and town square or the swimming pool and creek-side park behind. The common spaces and comfortable rooms feature a mix of classic and new furnishings and are warmed by simple, sophisticated local textiles and art.
The fourth-level restaurant offers the only rooftop bar in town that is open to the public. Adjacent to this social space, Merritt Hall—an event room named to honor hotel’s late developer Merritt Sher—is a flexible indoor-outdoor space suited for meetings, banquets, wine tastings, and more.
Project Info:
Architects: David Baker Architects
Location: Healdsburg, United States
Area: 39876.0 ft2
Project Year: 2018
Photographs: Bruce Damonte, Angie Silvy
Project Name:Â Harmon Guest House



















































Tags: 2018Angie SilvyBruce DamonteBruce Damonte PhotographyDavid Baker ArchitectsHarmon Guest HouseHealdsburgSustainableUnited States
