“Habitat ITESM Leon” | SHINE Architecture + TA Arquitectura

SHINE Architcture recently has unveiled some picture of  “Habitat ITESM Leon”,  an  art/design studio workshop for students within Tec de Monterrey’s, Campus in Leon, Mexico. The new design proposal intends to innovative, aesthetics and life test for bioclimatic strategies. The proposal also feature different themes and analysis of sustainable design, just to accommodate to the hot dry climatic conditions in Leon. More from architects after the jump.

Courtesy of SHINE Architecture

Project statement from SHINE Architecture + TA Arquitectura:

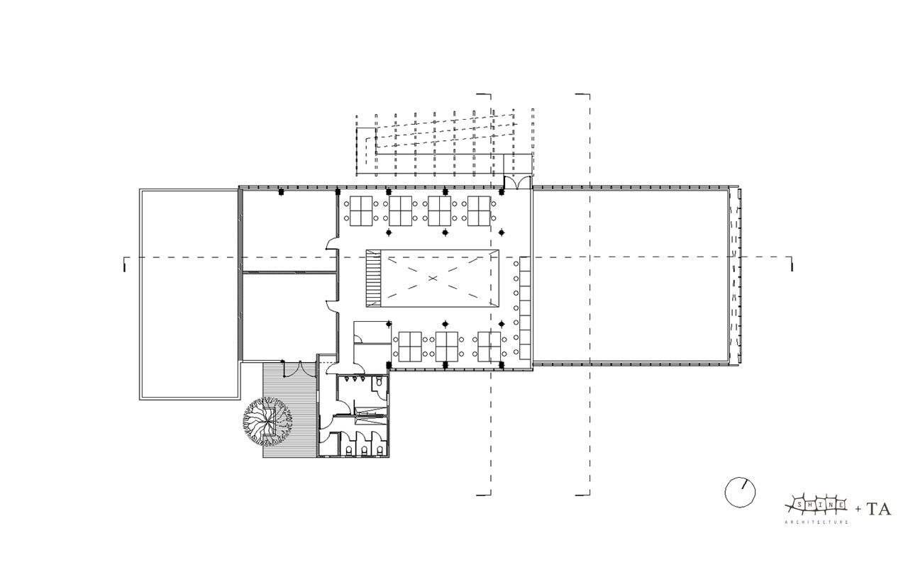
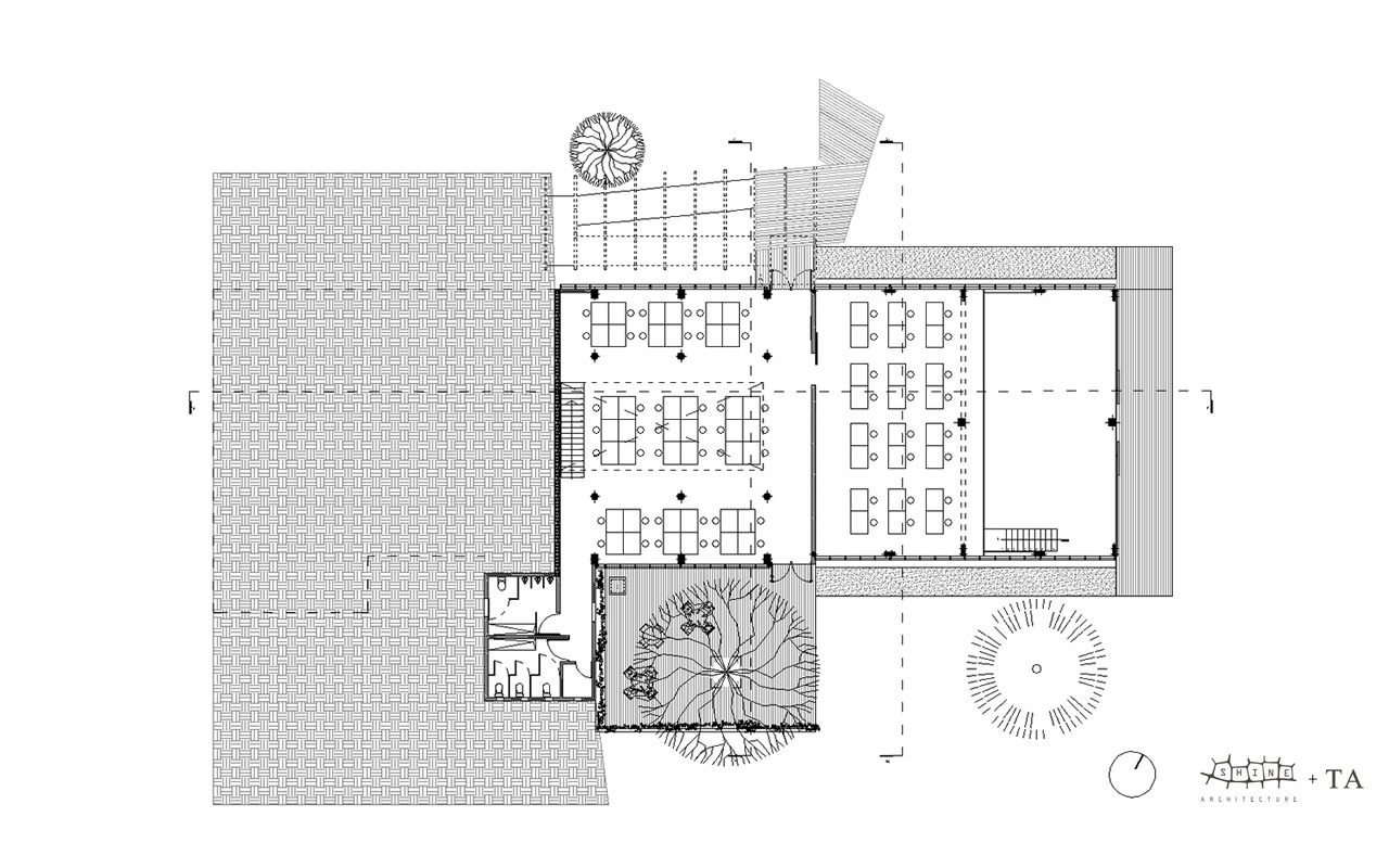
This retrofit project intends to revitalize a underutilized space, into a 1180m2 art/design studio workshop for students within Tec de Monterrey’s, Campus in Leon, Mexico. The intervetion in the old building aimed to be an inovative proposal in use, aesthetics [although in acordance to the existing buildings in campus] and life test for bioclimatic strategies. In terms of use, the intention was to make a spacefor the students, a blank page for them to interveen, with just the basics to start getting space appropiation by the students, the proposal was to make a 24/7 student studio, with no clases in it, thus a creative laboratory. The first floor comprises public spaces such as; studios, exhibit areas and services. Second floor contains semi-public areas for modelling, Photography and specific working areas. Morphologically its inner industrial look like tectonic embracing 3 main parts; a large glazed box in conjunction with a smaller solid volume and external circulation appendix.

Courtesy of SHINE Architecture

As a first approach all non-structural elements within the envelope and interiors: exterior walls, stairs, partitions, windows, among others, where removed in order to achieve a wide-open-integrated space for multi functional design activities. In addition, the structural analysis oriented all “clean-up” decisions for a stand-alone main structure with new programmatic requirements. Moreover an appendicular transitional space was proposed along northwest façade, by unfolding external circulations and generating an aesthetical anomaly upon the main body access. An important bioclimatic design concern was Leon’s hot dry climatic conditions, where in summer temperatures easily reach 38°C [100°F], with low relative humidity (almost 10%) and very high solar radiation impinges. Thus thermal, visual and acoustic comfort targets were established to define passive design systems for all educational spaces and reduce energy consumption. Software based tests were executed to prove the hypotesis.

Courtesy of SHINE Architecture

All main facades comprise glass ‘flakes’ which allow diffuse daylight penetration, and natural ventilation in-between gaps. Flake’s glazing properties varied as a function of its solar orientation from translucent to transparent. Additionally the project comprises an atrium that achieves the same effects with roof lights for diffuse zenith daylight and upper vents for any given adiabatic air effect. Qualitative speaking a uniform daylight performance was achieved regardless external sky conditions for visual comfort.

Courtesy of SHINE Architecture

As complement artificial lamps were costume designed for both: optimum visual performance and uncomfortable noise absorption. Furthermore, daylight quality was not merely a statutory requirement but spatial perception. Hence architectural intentions embarked on sketching and physical modelling of the intended effect, and within principles revision. Materials, proportions and sources of light where evaluated and translated into the overall concept. In terms of general aesthetic, the purpose was to look as part of a context, respecting existing materials, but be different and recognizable as an experimental-design building. also thinking in a reproduzable module for other facades.

Courtesy of SHINE Architecture

Thermal comfort targets were assessed upon maximum occupation and average daily hot conditions, for calculating minimum air exchanges per hour. The latter informed the façade’s apertures ratios for any given fresh air provision required and heat gain dissipation. Also the appendicular external space offers a spatial transition indoors-outdoors. Form and materiality atheistically intentions: glass facades…wood, parametric and gradients Predesign studies with simulations and parametric models helped to understand the building performance, which was finally validated on site. The building outcome brought environmental solutions to achieve a desirable performance upon comfort targets and building requirements. Conceptually the morphological synthesis of the project starts taking shape into an informed model with aesthetical, physical and analytical design methods. Parametric studies made in Grasshopper (with a formely Rhino Base) were made to understand how to reduce material consumptions.

Courtesy of SHINE Architecture

Project info :

Architects: SHINE Architecture + TAarquitectura
Location: León, México
Design Team: Salvador Ferreiro, Minche Mena, Michael Smith, Rubén Vázquez, José Zermeño
Photographs: Courtesy of SHINE Architecture
Project Area: 1,180 m²
Structural Engineer: Jorge Gallardo
Civil Works: Jorge González
Facade Works: Josué Rincón

SHINE Architecture + TAarquitectura
Arch2O.com
Logo
Send this to a friend