Gunawarman 35 | WOFF

Gunawarman 35 stands at a corner in the heart of Jakarta’s Gunawarman district — a meeting point of residential calm and urban vibrancy, of heritage textures and contemporary life. The design embraces this duality, creating a dialogue between scale, material, and light.

Gunawarman 35

© Arti Pictures – William Sutanto

The building turns the corner with a gentle radial curve, softening the hard geometry of the street and guiding the eye inward, away from the city’s bustle, toward a quieter, more intimate interior realm. This fluid gesture is anchored by a cantilevered staircase, its exposed brick wall in deliberate contrast to the smooth, translucent façade — a moment where craft meets precision.

Gunawarman 35

© Arti Pictures – William Sutanto

The façade is composed of 20×20 cm locally produced glass blocks, custom sandblasted on the interior side to diffuse daylight while reducing heat gain. By day, the surface shimmers like a lantern veiled in mist, filtering light into the spaces within. By night, it glows softly, casting a warm presence onto the street.

Gunawarman 35

© Arti Pictures – William Sutanto

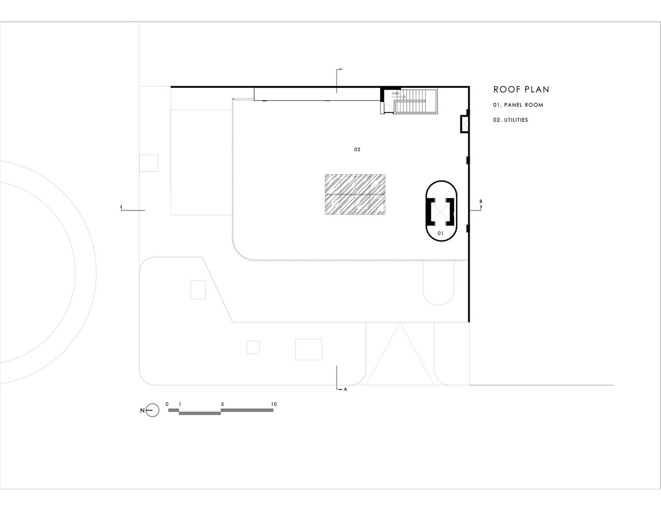
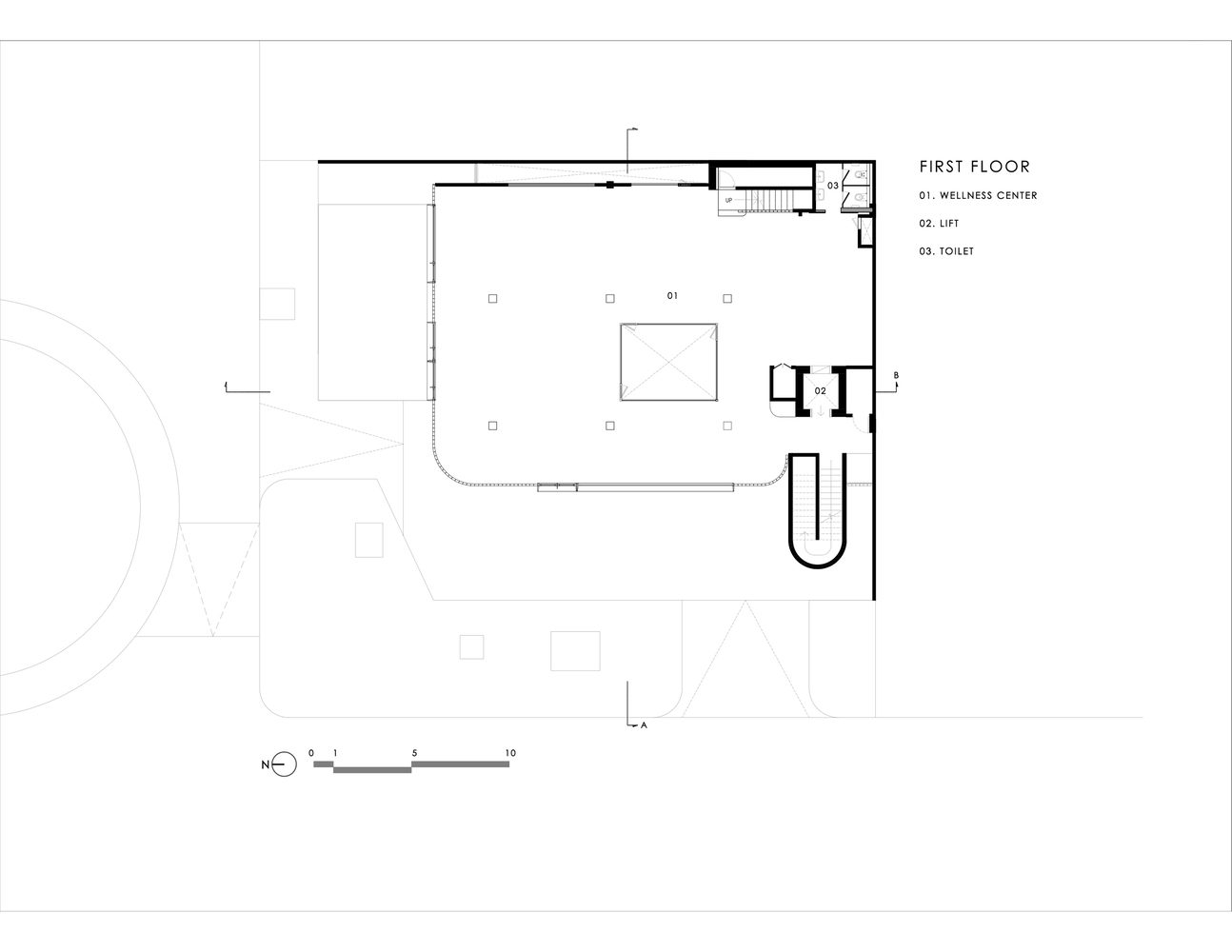
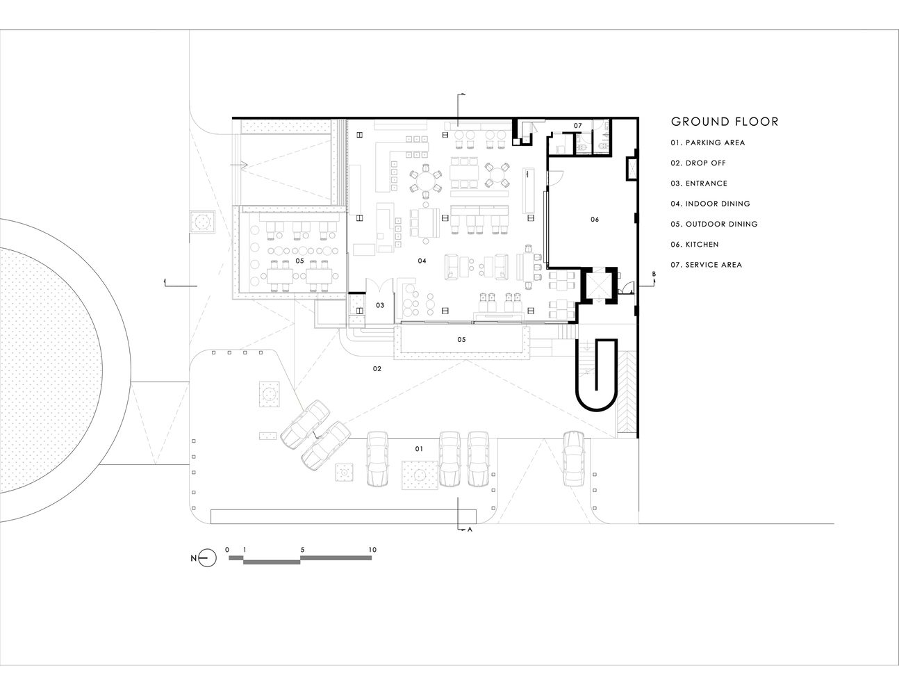
Within, each level offers a distinct yet connected experience. The ground floor houses an urban chic restaurant, where the lifted façade reveals the lively street life and dining atmosphere. The second floor is dedicated to wellness and Pilates, a light-filled sanctuary where the diffused glow of glass blocks enhances a sense of calm. The third floor serves as a private office, elevated both physically and atmospherically, with filtered views of the city providing focus and retreat.

Gunawarman 35

© Arti Pictures – William Sutanto

Gunawarman 35 is not a singular statement but a living surface — one that shifts with the day, the season, and the life around it. It is an exploration of how architecture can stand both apart from and within its context, balancing strength and softness, permanence and permeability. In this balance, it offers a luminous threshold between the city outside and the worlds within.

Gunawarman 35

© Arti Pictures – William Sutanto

Project Info:

  • ArchitectsWOFF
  • Country: Jakarta ,Indonesia
  • Area450 m²
  • Year2023
  • Manufacturers:  Teras Bata Serpongmulia glass
  • Lead ArchitectsJoe Willendra
  • Lead TeamJoe Willendra
  • Design TeamStevanus Halim, Emilia Yustiana
  • Engineering & Consulting > LightingLelco Group
  • General ContractorPT. KANG
Sophie Tremblay
Show full profile Sophie Tremblay

Sophie Tremblay is a Montreal-based architectural editor and designer with a focus on sustainable urban development. A McGill University architecture graduate, she began her career in adaptive reuse, blending modern design with historical structures. As a Project Editor at Arch2O, she curates stories that connect traditional practice with forward-thinking design. Her writing highlights architecture's role in community engagement and social impact. Sophie has contributed to Canadian Architect and continues to collaborate with local studios on community-driven projects throughout Quebec, maintaining a hands-on approach that informs both her design sensibility and editorial perspective.

Arch2O.com
Logo
Send this to a friend