Grande Armée L1ve Office Building | Baumschlager Eberle Architekten

After intervention by the city of Paris against the demolition, the former headquarters of Peugeot Citroën, an iconic “International Style” building from the 1970s, was transformed into a renovation project based on the principles of the circular economy. Grande Armée aimed to give the area a new identity, create a public gathering point, preserve the distinctive façade structure, and emphasize the importance of reuse.
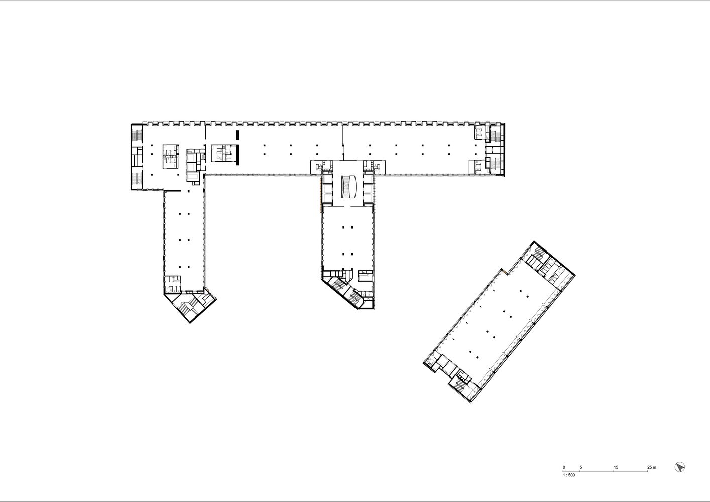
The existing volumes are being retained, with the courtyards transformed into a publicly accessible garden and a covered plaza, while the gallery along the avenue is redesigned into a roughly 100-meter-long transparent lobby. Where technical equipment once dominated the rooftops, walkable terraces and rooftop gardens are being created for the office employees.Grande Armée
The facade along the avenue will be updated to meet current construction standards, while its structure will be preserved. The existing concrete frames will be complemented by cantilevered bronze boxes that add depth and dynamism to the grid. Bronze, with vertical slats, also introduces new accents in the renovated spaces and on the courtyard facade. A white brick facade on the rear building creates a connection to the former industrial site and the residential street.Grande Armée

Restaurants, cafés, an open “Agora,” shopping centers, and a 200-seat auditorium—these features open the building to the public on the ground floor and parts of the first basement level. A unique recycling detail: granite stones from the facade of the original building are used in the flooring of the gallery, which boasts striking concrete columns and the height of a church nave. Most of the access cores are redesigned for future needs, with panoramic elevators and a monumental staircase marking the main access points.Grande Armée

Flexible Office Spaces, Stylish Rooms, Abundant Greenery

Nine floors facing the avenue and five floors on Rue Pergolèse are designated for offices, with highly flexible spaces allowing division among up to three tenants. The original concrete structure is exposed, with only a few materials defining the interior design—various types of concrete, bronze, and wood for the flooring, along with different metal ceilings that add diversity to the details. l1ve – Grande Armée offers greenery on all levels: spacious gardens, a sun garden on the roof, and a rooftop terrace on the ninth floor, connected to panoramic rooms. The project’s environmental goals are ambitious, aiming for top results in certifications.

Project Info:

Baumschlager Eberle Architekten
Arch2O.com
Logo