The Grand Theater occupies the key position in the newly built Culture Park of Tianjin. The circular shape of the roof construction corresponds with the existing Museum of Natural History so that an architectural dialogue of an earth-bound and a ‘floating’ circular volume is created at both ends of the park. Earth and sky represent a fundamental thinking in Chinese philosophy.
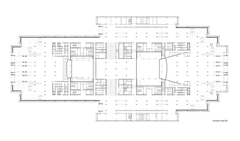
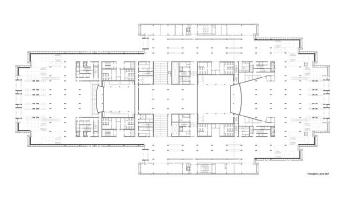
The roof volume of the Grand Theatre opens up toward the broad water surface like an open sea shell. Opera hall, concert hall and the small multifunctional hall are exposed to the water surface like pearls inside this shell. The three venues are conceived as free standing volumes on a stone base. Broad stairways connect the stone base with the raised plaza creating a kind of stage for urban life which overlooks the lake and the Culture Park.
Vehicular traffic is avoided on the water side. Drop-offs are located to the north and south whilst bus stops are situated along a dwelling mound to the east of the building. All internal areas are located within the base so that an unobstructed internal circulation is achieved.
The roof construction is a transformation of the traditional Chinese element of multiple eaves and thus defines a system of common horizontal layers, which creates an architectural entity of roof, facade and stone base.









Photography by Christian Gahl
Ibrahim Abdelhady is an architect, academic, and media entrepreneur with over two decades of experience in architecture and digital publishing. He is the Founder and CEO of Arch2O.com, a leading platform in architectural media, renowned for showcasing innovative projects, student work, and critical discourse in design. Holding dual PhDs in Architecture, Dr. Abdelhady combines academic rigor with industry insight, shaping both future architects and architectural thought. He actively teaches, conducts research, and contributes to the global architecture community through his writing, lectures, and media ventures. His work bridges the gap between practice and academia, pushing the boundaries of how architecture is communicated in the digital age.
