The feeling of flying and floating in the air is incredibly magical! Gea House is located at the base of Cerro de la Silla, in the municipality of Monterrey, Nuevo León. The property covers an area of 900 square meters and boasts a 430-square-meter construction, where the city’s hustle and bustle successfully disconnect to create a space radiating peace and harmony with its surroundings.
A solid concrete monolith with cantilevers that appear to be suspended, as if they were soaring in the air, was proposed. Through transparency, we find this sense of tranquillity and connection with the surroundings. The design incorporates open and linear spaces with floor-to-ceiling openings to frame landscape views and allows natural light to flood the interior of the house.
By using exposed solid concrete and materials such as wood and natural stone, we managed to seamlessly integrate Casa Gea with its surroundings, creating a palette of neutral colours and grey tones to maintain a natural aesthetic, reflecting the elegance and personality of the user.
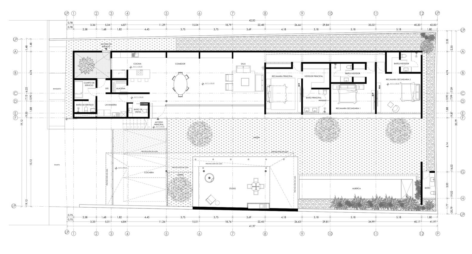
GEA maximizes the use of spaces and minimizes the use of walls, using visual elements to delineate each area. In this project, our goal was for all areas, both social and intimate, to have a direct connection to the outdoors, promoting a sense of companionship and interaction with the garden. This design strategy effectively expands the perception of open space, providing unique views, natural light, and ventilation.
The overall result is a residence that not only captures the stunning feeling of floating but also harmonizes with the beauty of its natural surroundings. Casa Gea’s architectural foundations are based on the use of clean, linear, and orthogonal elements to create coherent structures that integrate with the space. This home is tranquillity, silence, and harmony.
Project Info:
Architects: Studio AM11
Country: Monterrey, Mexico
Area: 420 m²
Year: 2023
Photography: Mavix + Pepe Mora
Manufacturers: Concretos Tepeyac, Gante, Gilsa, Grupo Lite, LUM Soluciones
Lead Architect: Alejandro Macias













Tags: 2023Gea HouseMavix + Pepe MoraMexicoMonterreyNatural StoneSolid Concrete MonolithStudio AM11Wood
Isabelle Laurent is a Built Projects Editor at Arch2O, recognized for her editorial insight and passion for contemporary architecture. She holds a Master’s in Architectural Theory from École Nationale Supérieure d’Architecture de Paris-Belleville. Before joining Arch2O in 2016, she worked in a Paris-based architectural office and taught as a faculty adjunct at the École Spéciale d’Architecture in Paris. Isabelle focuses on curating projects around sustainability, adaptive reuse, and urban resilience. With a background in design and communication, she brings clarity to complex ideas and plays a key role in shaping Arch2O’s editorial






