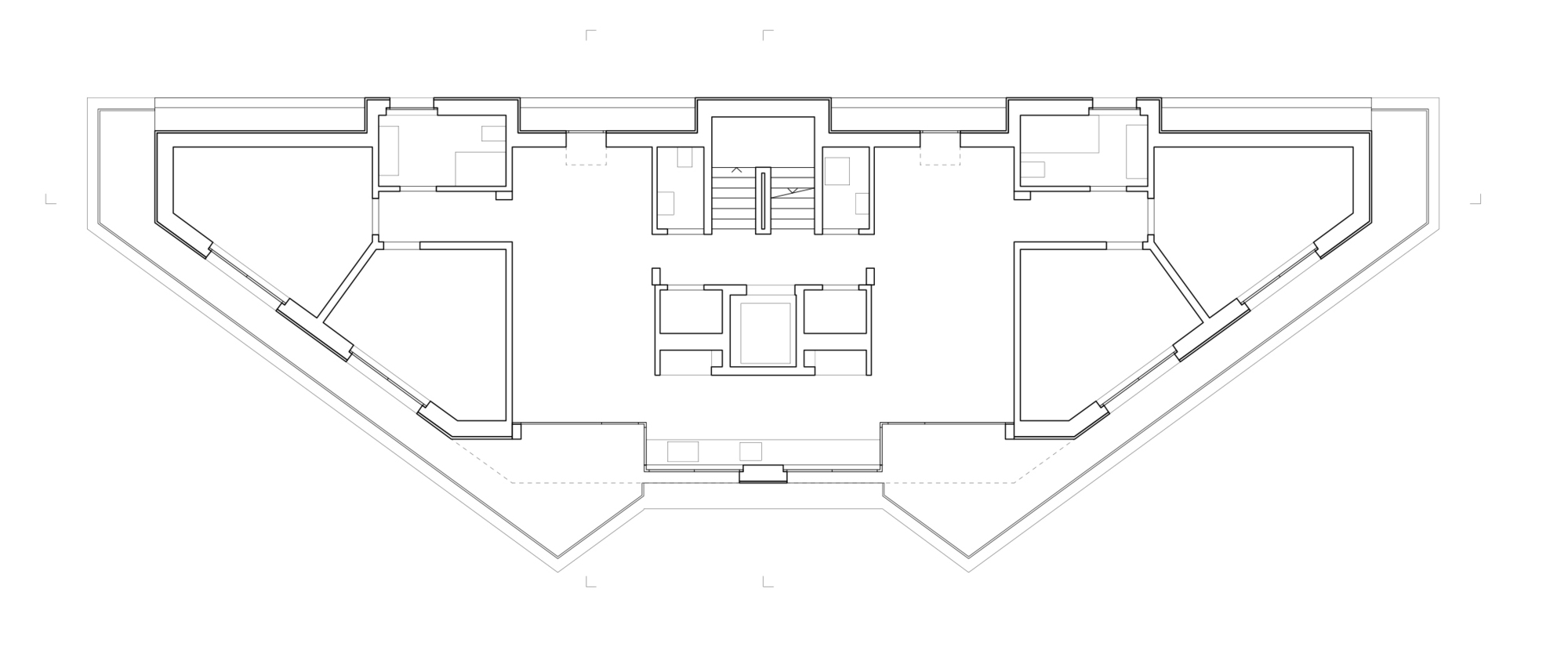
GDH Apartment Building, In the triangle between Gossauerstrasse and Heuweidlistrasse a multi-family house with low-cost apartments were realized in 7 units of 4.5 and 6.5 room flats.
The building is aligned parallel to the Heuweidlistrasse and is based on the scale of the opposite buildings. The diversification of the volume against the garden ensures an approach to the smaller-sized district structure south of the Heuweidlistrasse.
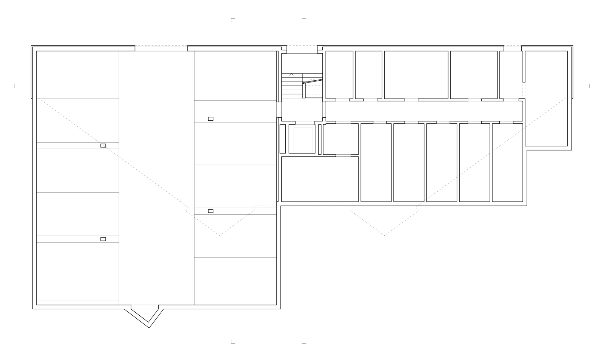
The floor plan internalizes the geometry of urban planning.
On the one hand, the play with the angles leads to generous, flowing spatial sequences in the area of living, dining, cooking and on the level of the closed room structure, creates chambers with a specific character.
The facade was carried out in Duripanel gold and silver.
Project Info
Architects: idA buehrer wuest architekten sia ag
Country: Switzerland, Hinwil
Area: 1388 m²
Year: 2018
Photographs: Valentin Jeck
Manufacturers Swisspearl, Schenker Storen, EGOKIEFER, MPV Handels AG, Photovoltaic Module: Swisspearl
Electro Engineer: fm elektro engineering ag
Structural Facing: Salm Fassadenbau AG
Heating, Ventilation, Sanitary Facilities And Photovoltaic: Felix & Co. AG
Client: Private
Building Physics: 3-Plan Haustechnik AG
Construction Engineer: Frei Ingenieurbüro

























